Ackerman Farmhouse Renovation by Fuller/Overby Architecture: A Historic Home Reimagined
Ackerman Farmhouse renovation blends history and modernity, transforming an 18th-century homestead into a functional, light-filled contemporary home.
The Ackerman Farmhouse in Teaneck, New Jersey, offers a profound connection to history, architecture, and modern living. Originally built in 1734 by Dutch settlers, this farmhouse has undergone a stunning renovation by Fuller/Overby Architecture, completed in 2023. The transformation preserved its historical integrity while introducing modern functionality, creating a harmonious blend of the old and the new.




Historical Significance of the Farmhouse
The Ackerman Farmhouse was established by the Dutch Ackerman family, early immigrants to New Amsterdam in the 17th century. By 1734, the family had moved to New Jersey, where farmland along the Hackensack River was more abundant. Constructed with locally quarried New Jersey sandstone, the two-foot-thick walls echo the same materials that formed New York City’s iconic brownstones.


Through the centuries, the farmhouse passed through various owners, but its historical essence remained intact. Listed on the National Register of Historic Places, it faced modern challenges, such as limited natural light and poorly executed renovations, which deterred buyers until it was rediscovered by new owners in 2021.


The Renovation Process
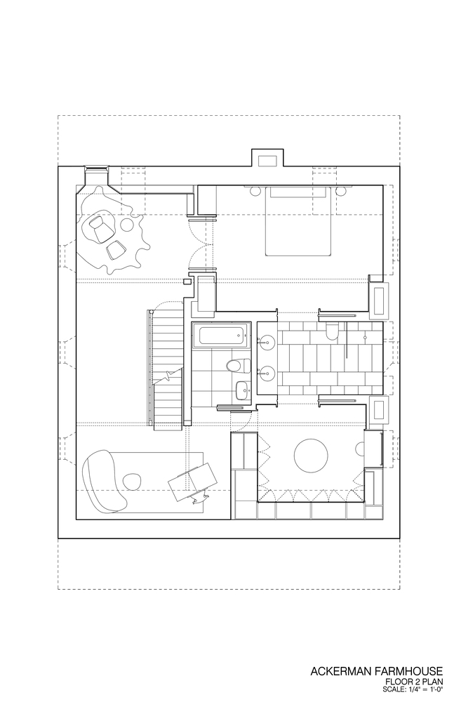
Fuller/Overby Architecture undertook a meticulous renovation that stripped away years of infill partitions and muddled finishes, unveiling the original craftsmanship. The second floor now features an open plan design, with exposed hand-hewn timbers and the gambrel roof resting upon the stone walls.


The new layout incorporates finely crafted cabinetry and perimeter millwork, creating distinct programmatic spaces while maintaining an open and airy flow. These spaces are connected through sliding and pivoting panels, allowing for flexibility and adaptability based on the needs of the moment.


Architectural Highlights
Central Stair Core and Double-Height Hall
A central stair core serves as the vertical spine of the farmhouse, connecting all levels and symbolizing the fusion of historic and modern elements. The removal of the third-floor section created a double-height hall that floods the space with natural light.


The main bedroom suite offers a seamless sequence of interconnected chambers. The bedroom leads into a serene bathing suite, featuring tadelakt and field stone finishes, which then transitions to a waxed wood dressing room. This circular layout reflects the thoughtful planning of Fuller/Overby Architecture, emphasizing both functionality and aesthetic continuity.


Enhanced Natural Light and Views
To address the lack of natural light, the architects resized small 18th-century windows with angled apertures that allow generous light to filter through. On the ground floor, a steel-framed glazing system was introduced to open the rear facade, offering breathtaking views of the Hackensack River and the rolling landscape beyond.


Cantilevered Steel Staircase
The uppermost level features a cantilevered steel staircase, a lightweight structure of perforated and expanded metal, that ascends to a second bedroom and playroom. The staircase hovers above an open void that spans the entire height of the house, allowing light to cascade to the lower levels and adding a sculptural element to the design.


Preservation Meets Modernity
The ground floor retains its historical essence, with the living room located in the original 1734 volume of the house. The architects enhanced this space by introducing contemporary elements, such as the rear facade glazing, while maintaining the charm of the thick sandstone walls.



Outside, the landscape remains largely untouched, preserving its connection to the past. Double doors open onto this natural expanse, providing a tranquil connection between the interior and the surrounding environment.




The Ackerman Farmhouse Renovation by Fuller/Overby Architecture exemplifies a respectful yet innovative approach to historic preservation. By embracing the house’s past while addressing modern needs, the architects have created a timeless home that bridges centuries of design.


All Photographs are work of Paul Warchol
Popular Articles
Popular articles from the community
Flamboyant House by Juliana Camargo + Prumo Projetos
Modern Brazilian house integrating existing tree, pool, and volumes with glass, wood, and transitional spaces blending interior, exterior, and landscape seamlessly.
The Ken Roberts Memorial Delineation Competition (Krob)
As the most senior architectural drawing competition currently in operation anywhere in the world, it draws hundreds of entries each year, awarding the very best submissions in a series of medium-based categories.
Treehouse Apartment: A Warm Timber Interior Blending Craft, Play, and Contemporary Living
Warm timber apartment with integrated treehouse, combining natural materials, craftsmanship, and playful design to create a flexible, family-oriented living environment.
Inverted Architecture Installation by Studio Link-Arc: Exploring the Intersection of Architecture and Living Organisms
Inverted Architecture Installation by Studio Link-Arc blends mycelium, sustainability, inverted design, ecological cycles, and urban adaptive architecture in Shenzhen.
Similar Reads
You might also enjoy these articles
The Ken Roberts Memorial Delineation Competition (Krob)
As the most senior architectural drawing competition currently in operation anywhere in the world, it draws hundreds of entries each year, awarding the very best submissions in a series of medium-based categories.
Waterfront Redevelopment and Urban Revitalization in Mumbai: Forging a New Dawn for Darukhana
A transformative waterfront redevelopment project reimagining Darukhana’s shipbreaking heritage into an inclusive urban future.
OUT-OF-MAP: A Call for Postcards on Feminist Narratives of Public Space
Rhizoma Design and Research Lab invites artists, designers, architects, researchers, and students to reflect on how feminist perspectives can reshape public space. Selected works will be exhibited in Barcelona, October 2026. Submissions open until 15 April 2026.
Documentation Work on Buddhist Wooden Temple
Architectural syncretism and cultural hybridity: A comparative study of the Buddhist temples in Chattogram Hill tracks
Explore Architecture Competitions
Discover active competitions in this discipline
The International Standard for Design Portfolios
The Global Benchmark for Architecture Dissertation Awards
The Global Benchmark for Graduation Excellence
Challenge to reimagine the Iron Throne
Comments (0)
Please login or sign up to add comments
No comments yet. Be the first to comment!