Adaptive Reuse Interior Design: Transforming the Wentz Furniture Studio
This article explores the Wentz Furniture Studio's transformation in Brazil, showcasing adaptive reuse interior design by Marina Miot Arquitetura.
In the heart of Caxias do Sul, Brazil, the Wentz Furniture Studio stands as a testament to the power of adaptive reuse interior design. Spearheaded by Marina Miot Arquitetura, this project breathes new life into a 1940s industrial pavilion, marrying historical charm with contemporary living.

The Vision Behind Wentz Furniture Studio
Wentz, a Brazilian brand renowned for its furniture, lighting, and accessories, aims to infuse naturalness and simplicity into everyday living. Their products, characterized by a harmonious blend of simplicity and functionality, reflect a contemporary aesthetic with tropical vibes. The restoration of the Wentz Furniture Studio by Marina Miot from Rio Grande do Sul encapsulates this ethos, transforming a piece of industrial heritage into a vibrant hub for creativity and design.



Preserving the Essence of History
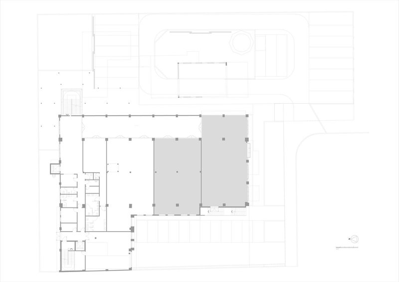
The architectural intervention preserved the original essence of the pavilion while introducing modern elements. The pre-existing walls and facades were maintained, respecting the building's historical significance. Large white volumes and glass walls now define the interior, enhancing fluidity and the use of natural light. This seamless integration of old and new underpins the adaptive reuse interior design approach, highlighting the studio's silent, natural, simple, and casual contemporary essence.




A Masterclass in Adaptive Reuse Interior Design
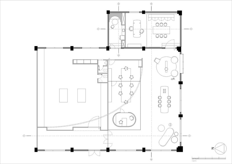
The heart of the studio features a glass volume housing workstations, surrounded by spaces that serve various functions - from stock and assembly areas to offices, a creative room, and a showroom. A striking gypsum curve connects these areas, exemplifying fluid spatial distribution. The preservation of the building's original trusses and the introduction of indirect lighting celebrate the structure's industrial past while adapting it for modern use.





Showcasing Iconic Design
The showroom area, a focal point of the studio, displays Wentz's most iconic products. Large windows flood the space with natural light, connecting the interior with the outdoors and enhancing the displayed furniture. This area exemplifies the essence of adaptive reuse interior design, where the integration of natural light and nature plays a pivotal role in showcasing design.



A Blueprint for the Future
The Wentz Furniture Studio, through its adaptive reuse, sets a benchmark for sustainable and innovative design. By preserving the historical integrity of the original pavilion while infusing it with modern aesthetics and functionality, Marina Miot Arquitetura has created a space that not only serves as a workplace and showroom but also as an inspiration for future adaptive reuse projects.








Select an Image Select an Image Select an Image Select an Image Select an Image Select an Image Select an Image
All photographs are work of Fran Parente
Popular Articles
Popular articles from the community
The Ken Roberts Memorial Delineation Competition (Krob)
As the most senior architectural drawing competition currently in operation anywhere in the world, it draws hundreds of entries each year, awarding the very best submissions in a series of medium-based categories.
Atelier Macri Concept Store Interior Design by CASE-REAL
Atelier Macri store features a "ko" counter, walnut wood details, cork displays, blending retail, gallery, and seamless customer experiences.
Treehouse Apartment: A Warm Timber Interior Blending Craft, Play, and Contemporary Living
Warm timber apartment with integrated treehouse, combining natural materials, craftsmanship, and playful design to create a flexible, family-oriented living environment.
A Contemporary Take on Iranian Residential Architecture
A modern interior design in Mashhad that reinterprets brick, light, and spatial flow to create a warm, contemporary residential architecture.
Similar Reads
You might also enjoy these articles
The Ken Roberts Memorial Delineation Competition (Krob)
As the most senior architectural drawing competition currently in operation anywhere in the world, it draws hundreds of entries each year, awarding the very best submissions in a series of medium-based categories.
Waterfront Redevelopment and Urban Revitalization in Mumbai: Forging a New Dawn for Darukhana
A transformative waterfront redevelopment project reimagining Darukhana’s shipbreaking heritage into an inclusive urban future.
OUT-OF-MAP: A Call for Postcards on Feminist Narratives of Public Space
Rhizoma Design and Research Lab invites artists, designers, architects, researchers, and students to reflect on how feminist perspectives can reshape public space. Selected works will be exhibited in Barcelona, October 2026. Submissions open until 15 April 2026.
Documentation Work on Buddhist Wooden Temple
Architectural syncretism and cultural hybridity: A comparative study of the Buddhist temples in Chattogram Hill tracks
Explore Architecture Competitions
Discover active competitions in this discipline
The International Standard for Design Portfolios
The Global Benchmark for Architecture Dissertation Awards
The Global Benchmark for Graduation Excellence
Challenge to reimagine the Iron Throne
Comments (0)
Please login or sign up to add comments
No comments yet. Be the first to comment!