Architectural Brilliance Unveiled: O&O Baukunst's Astonishing Contributions to Daimler AG in Stuttgart
Are O&O Baukunst's Dazzling Projects for Daimler AG in Stuttgart Redefining Architectural Excellence?

In a remarkable feat of modular construction, O&O Baukunst has successfully completed two major projects for Daimler AG and Daimler Truck AG in Stuttgart, providing state-of-the-art building workspaces for approximately 6,400 employees. Despite the distinct requirements of the Vaihingen and Leinfelden-Echterdingen sites, both projects showcase the innovative use of a shared building kit designed by O&O Baukunst.
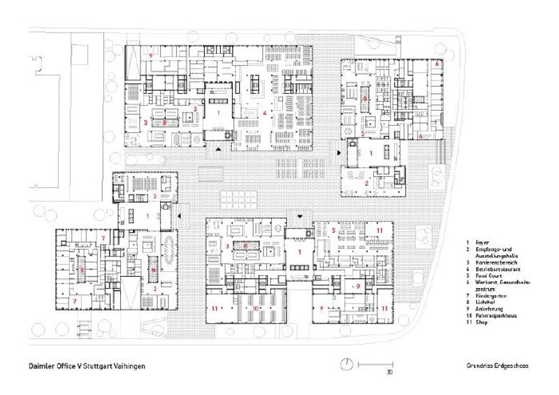
At the heart of these architectural marvels lies a ground floor base that houses various shared and public areas, including foyers, exhibition spaces, food courts, cafes, restaurants, conference rooms, health centres, a bicycle parking garage, and even a kindergarten. This foundational base not only shapes the surrounding urban space but also serves as a platform for the modular office floors that rise above it in an H-shaped configuration.
Abundant natural light floods the expansive office spaces, thanks to large window elements that eliminate obstructions and allow for flexible arrangements. The fully prefabricated facade, adorned with an encompassing white grid, harmoniously blends ventilation flaps with fixed glazing on either side, creating a visually striking exterior.
Inside the buildings, multi-storey circulation areas offer glimpses of the structural method—a steel bridge construction that enables the free placement of elevators and steel stairways, eliminating the need for pillars and enhancing spatial fluidity. The deliberate choice to expose building materials adds a raw industrial aesthetic, with fair-faced concrete walls and ceilings, screed floors, and steel structural elements painted in shades of grey and white. To enhance acoustics, oak wood panelling is incorporated, completing the diverse material palette.
In Leinfelden, the Daimler Truck Campus embraces its heterogeneous surroundings through the integration of four cross-shaped inner courtyards. These courtyards establish connections with the neighbouring areas, transforming the site into an open office location that fosters interaction and integration. From the elongated central courtyard that serves as the campus's mailing address to the outdoor dining area in front of the company restaurant, each space offers unique experiences. Cyclists are greeted by a dedicated bicycle station, while delivery, supply chain, and waste disposal are efficiently managed in the east courtyard. The south courtyard transforms into a serene terrace, featuring lounge areas and a garden for employees and visitors to unwind. All courtyards converge around a central hall—a grand 1,500-square-meter space with an eight-meter-high steel-bearing structure, reminiscent of large industrial factories.
O&O Baukunst's achievement in creating these remarkable building workspaces for Daimler AG and Daimler Truck AG in Stuttgart showcases their commitment to innovative design, functionality, and harmonious integration with the surrounding environment. These projects stand as shining examples of how architecture can transform workspaces, fostering collaboration, productivity, and employee well-being.








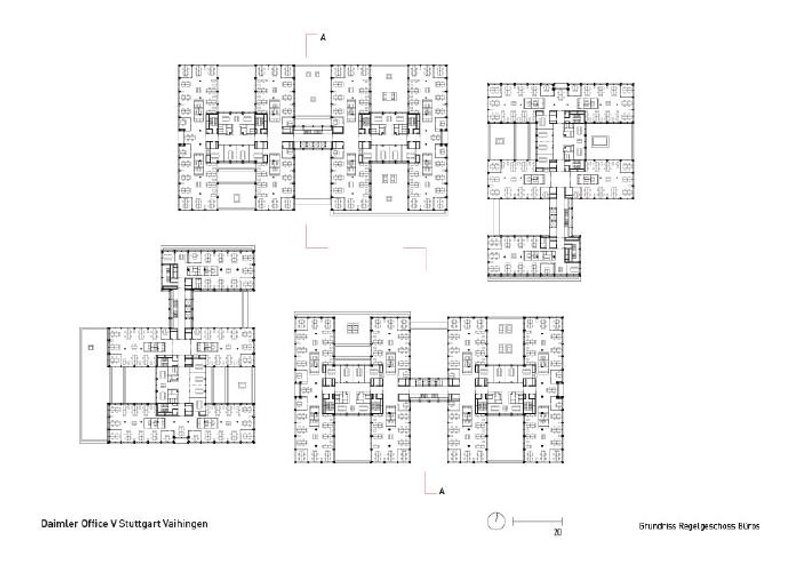
Daimler Office V Stuttgart Vaihingen: Redefining Workspaces through Innovative Architecture
In the vibrant neighbourhood of Am Wallgraben in Stuttgart Vaihingen, a remarkable transformation is taking place. The visionaries at Daimler AG have embarked on a groundbreaking project to create a dynamic office campus that challenges conventional notions of urban density. With a strong emphasis on the green city concept, this development aims to shape the cityscape and infuse the site with a distinct character, despite the existing diversity in the area.
The individual buildings within the office campus are boldly zigzag along the street, creating captivating architectural forms. The spaces between the street and the buildings are thoughtfully filled with lush trees and green areas, establishing a harmonious blend of nature and modern design. Throughout the development, large green spaces, including the expansive Industriestraße with its outdoor facilities and the captivating Wallgraben area, intermingle with avenue greenspaces that extend up to 10 meters deep. This deliberate integration of greenery enhances the overall aesthetic and contributes to a healthier, more inspiring work environment.
While the building volumes appear independent from the front street, their interior design follows a cohesive urban logic. The result is a precisely defined, densely populated central urban space that serves as the heart of the development. Accessible via lanes that connect to the surrounding streets, this vibrant hub breathes life into the district, functioning as a catalyst for growth and prosperity.
Upon closer inspection, what may initially seem like an expansive office park reveals itself as a carefully designed public place. The interior spaces are compact, organized, and imbued with an urban charm reminiscent of an engine block. This innovative approach to building workspaces not only maximizes efficiency but also fosters a sense of community and collaboration. The Daimler Office V Stuttgart Vaihingen stands as a testament to the power of architectural ingenuity in creating transformative work environments.
With its bold vision, sustainable design principles, and commitment to urban development, the Daimler Office V Stuttgart Vaihingen is redefining the way we perceive and experience workspaces. This ambitious project serves as an inspiration for the industry, demonstrating the immense potential for architectural innovation to shape the future of work.

















Popular Articles
Popular articles from the community
Louis Malle Cinema: A Limestone Cultural Landmark Revitalizing Community Life in Prayssac
Limestone cinema extension with public forecourt, blending heritage and modern design to create flexible cultural spaces and strengthen community interaction.
Flamboyant House by Juliana Camargo + Prumo Projetos
Modern Brazilian house integrating existing tree, pool, and volumes with glass, wood, and transitional spaces blending interior, exterior, and landscape seamlessly.
An Miên Lumière Cafe by xưởng xép, Ho Chi Minh City, Vietnam
An industrial-inspired café where layered steel and warm light create a dynamic, immersive environment shaped by reflection, depth, and perception.
Treehouse Apartment: A Warm Timber Interior Blending Craft, Play, and Contemporary Living
Warm timber apartment with integrated treehouse, combining natural materials, craftsmanship, and playful design to create a flexible, family-oriented living environment.
Similar Reads
You might also enjoy these articles
Zhuxi Wonderland: Reimagining Traditional Chinese Gardens by Doarchi Architects
Zhuxi Wonderland by Doarchi Architects reinterprets traditional Yangzhou gardens, integrating courtyards, pavilions, and tea houses in modern cultural design.
Doble Soga House: A Contemporary Brick Residence Rooted in Landscape in Quito, Ecuador
Brick house in Quito integrating nature, flexible living spaces, exposed materials, and rooftop terrace, creating warm contemporary architecture for modern family life.
Al Gharra Mosque in Medina Redefining Contemporary Islamic Architecture
Minimalist Medina mosque using concrete, light, and landscape to reinterpret Islamic worship spaces through symbolic spiritual transitions and contemporary architecture.
Viczonecode Villa by DDconcept – Tropical Family Living in Ho Chi Minh City
Tropical family villa in Ho Chi Minh City featuring courtyards, skylights, natural ventilation, elevated flooring, and seamless indoor–outdoor living surrounded by greenery.
Explore Office Building Competitions
Discover active competitions in this discipline
The International Standard for Design Portfolios
The Global Benchmark for Architecture Dissertation Awards
The Global Benchmark for Graduation Excellence
Challenge to reimagine the Iron Throne
Comments (0)
Please login or sign up to add comments
No comments yet. Be the first to comment!