Civilian Projects Gives Bard College Berlin a Student Residence That Feels Like Home
A pair of brick volumes in Berlin balances communal warmth and individual calm through color, material, and careful domestic scale.
Student housing tends to fall into one of two traps: either the building tries so hard to be efficient that it forgets people live there, or it reaches for a hostel vibe that wears thin after the first semester. Civilian Projects sidesteps both with the Bard College Berlin Student Residences, a pair of brick buildings that read as real urban architecture rather than institutional product. Sited in Berlin, the project frames a grassed courtyard between two rectangular volumes clad in a mix of red and cream brick, their recessed balconies and tall windows giving the facades a rhythm that belongs to the city block rather than the campus.
What makes the project worth studying is its commitment to interior personality without sacrificing the restraint of its street presence. Outside, the buildings are sober, well-proportioned, brick-heavy. Inside, a palette of coral, teal, yellow, and green unfolds in the common areas, while private rooms retreat to quiet timber and plywood. The gap between those two registers is the project's argument: student life needs energy and calm in roughly equal measure, and architecture can supply both without contradiction.
Brick on the Block



From the street, the buildings announce themselves through materiality rather than gesture. The pale brick volume facing the courtyard keeps its expression flat and open, floor-to-ceiling glazing pulled close to the facade plane. Around the corner, red and cream bricks alternate across the two blocks, their balconies recessed just enough to create shadow lines that change with the time of day. At golden hour the terracotta tones warm considerably, giving the corner a presence that feels earned rather than designed.
The decision to use brick is a contextual one. Berlin's residential fabric is defined by masonry, and matching that expectation means the buildings age into their surroundings rather than standing apart from them. Metal railings on the balconies are thin and dark, deliberately underplayed so the brick does the talking.
Inside the Threshold



The transition from exterior to interior is handled with care. A tall glass door set into the pale brick facade frames a direct sightline into a living space, collapsing the distance between street and room in a single glance. Inside, the herringbone oak floors and tall casement windows establish a domestic register that owes more to Berlin apartment culture than to dormitory convention.
French doors open onto balconies screened by soft green foliage, and the proportions of the rooms are generous enough that natural light reaches deep into the plan. There is no forced informality here, no beanbag chairs or chalkboard walls. The spaces treat students as adults who deserve well-made rooms, and that respect comes through in every detail.
The Color Argument



Civilian Projects deploys color with surgical precision in the communal spaces. A yellow paneled wall framed in green trim becomes the identity marker of the common room, its saturation confident enough to register as architecture rather than decoration. In the dining hall, coral and grey tables sit beneath teal curtains while a run of yellow cabinetry anchors the far wall. The combinations are specific and consistent: this is a coordinated palette, not a mood board.
The effect is social. These colors mark shared territory, signaling that common areas are distinct from private rooms. A potted plant and a vase of dried branches appear almost as props in a set, but they reinforce the sense that someone thought about how these rooms would be used, not just how they would photograph.
Where Students Actually Live



The private rooms pull back from the communal exuberance. A light wood platform bed, an open wardrobe unit, clothing hanging on a rail: the bedroom is pared to essentials, but the materials are warm and the proportions generous. Nothing feels squeezed. The workspace, with its plywood desk and articulated task lamp, sits in a pool of afternoon sun on the same oak flooring found throughout the building, lending continuity between public and private.
Even small study stations get attention. A green table with integrated cable management and a white task lamp sits against a yellow and green striped wall, its color scheme a quieter echo of the dining hall below. The detail matters because it tells students that their work habits were considered alongside their sleeping arrangements, a rare courtesy in housing of this type.
Objects and Atmosphere


A few details deserve a closer look. The dining area in one unit features white kitchen cabinetry and a square tile backsplash that could belong to any well-designed Berlin apartment. Afternoon sunlight crossing the timber floor completes the scene. Elsewhere, a red sculptural table lamp with four white globe shades sits on green and yellow paneled cabinetry, a playful object that signals the architects' willingness to curate atmosphere down to the accessory level.
These are not incidental choices. When the lamp, the cabinet, and the wall treatment all speak the same chromatic language, the building begins to function as a total environment. Whether the students notice or not, the coherence registers as comfort.
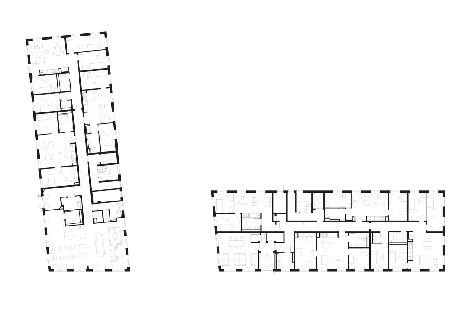
Plans and Drawings

The floor plan reveals the logic behind the experience. Two rectangular building volumes run parallel, each organized around a central corridor with repeating room modules on either side. The repetition is unapologetic, and rightly so: it keeps construction costs rational and gives every unit comparable access to daylight and ventilation. Variation happens at the edges, where common rooms and kitchens occupy wider bays, and at the ground level, where the plan opens to the shared courtyard.
Why This Project Matters
Student housing is one of architecture's most undervalued commissions. The budgets are tight, the programs repetitive, and the clients often institutional bodies more interested in beds per square meter than in spatial quality. Civilian Projects treats the Bard College Berlin residences as an opportunity to argue that efficiency and character are not opposed. The brick facades belong to the city, the colored common rooms belong to the community, and the quiet timber bedrooms belong to individuals. Each register is distinct, and each is convincing.
The lesson here is not about color theory or brick detailing, though both are handled well. It is about the conviction that students deserve architecture that takes them seriously. When a building communicates care through its materials, proportions, and finishes, it earns the attention of the people who live in it. That feedback loop, between design intention and daily experience, is what separates housing from mere accommodation.
Bard College Berlin Student Residences by Civilian Projects, Berlin, Germany. Photography by Robert Rieger.
About the Studio
Share Your Own Work on uni.xyz
If projects like this are the kind of work you want to make, uni.xyz is a place to publish your own, find collaborators, and enter design competitions.
Popular Articles
Popular articles from the community
Rede Arquitetos Builds an Open-Air School in Fortaleza That Doubles as a Neighborhood Living Room
Educar II SESC-CE folds sports, dance, and community gathering into a courtyard campus wrapped in mesh and tropical color.
20 Most Popular Commercial Architecture Projects of 2025
From sustainable market concepts to heritage factories, the commercial buildings and proposals that drew the most attention on uni.xyz this year.
Filtering Space: A Gradual Spatial Experience
From urban intensity to spatial calm.
Similar Reads
You might also enjoy these articles
Filtering Space: A Gradual Spatial Experience
From urban intensity to spatial calm.
The Ken Roberts Memorial Delineation Competition (Krob)
As the most senior architectural drawing competition currently in operation anywhere in the world, it draws hundreds of entries each year, awarding the very best submissions in a series of medium-based categories.
Waterfront Redevelopment and Urban Revitalization in Mumbai: Forging a New Dawn for Darukhana
A transformative waterfront redevelopment project reimagining Darukhana’s shipbreaking heritage into an inclusive urban future.
OUT-OF-MAP: A Call for Postcards on Feminist Narratives of Public Space
Rhizoma Design and Research Lab invites artists, designers, architects, researchers, and students to reflect on how feminist perspectives can reshape public space. Selected works will be exhibited in Barcelona, October 2026. Submissions open until 15 April 2026.
Explore Architecture Competitions
Discover active competitions in this discipline
The International Standard for Design Portfolios
The Global Benchmark for Architecture Dissertation Awards
The Global Benchmark for Graduation Excellence
Challenge to reimagine the Iron Throne
Comments (0)
Please login or sign up to add comments
No comments yet. Be the first to comment!