Browning Industrial Park: A Model of Urban Industrial Site Transformation in Belgium
Browning Industrial Park transforms a polluted arms factory site into an inclusive, sustainable green space through community-driven industrial reuse.
Reclaiming the Past for a Greener Future
The Browning Industrial Park, designed by MULTIPLE Architecture & Urbanism, stands as a bold example of urban industrial site transformation in Herstal, Belgium. Situated on a former munitions factory site, the project reimagines a derelict and polluted industrial landscape as an inclusive, resilient green public space. It is a clear testament to how cities can regenerate their forgotten territories through adaptive reuse, community dialogue, and environmental restoration.




From Sealed Grey Zone to Vibrant Urban Promenade
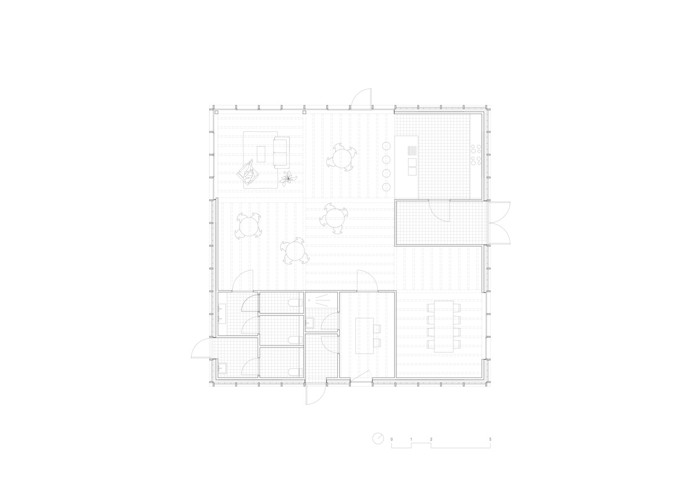
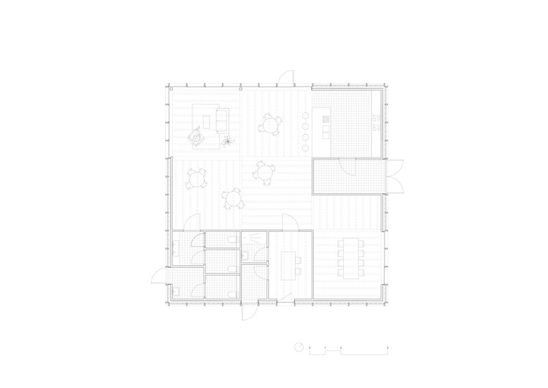
The former industrial site was once a sealed, fragmented zone with little connection to its surroundings. The new design proposes a central pedestrian spine—a continuous promenade that anchors the site and reconnects it with adjacent neighborhoods. Around this spine, the park unfolds as a network of universally accessible public spaces, turning the once-isolated terrain into a civic hub.




Soil Remediation as a Catalyst for Design
Years of industrial production had left the ground contaminated, requiring deep soil remediation up to 12 meters. Rather than treat this as a setback, the design team used it as an opportunity to reshape the site’s topography, increase permeability, and improve rainwater infiltration. The transformation doesn't just clean the land—it strengthens its ability to withstand climate change, embodying a forward-thinking approach to urban ecology.



Preserving Industrial Heritage Through Adaptive Reuse
The heart of the park beats within the partially preserved Browning factory. The original metal frame has been structurally reinforced and paired with a new timber roof to create a covered public hall. Nearby, fragments of the steel framework have been embedded in the garden to support vegetation and serve as sculptural markers of the site's industrial legacy. These architectural moves ensure that memory is not erased, but reinterpreted through functional reuse and environmental care.




Public Infrastructure That Promotes Wellbeing and Equity
The spatial design accommodates diverse users, with each zone tailored to specific needs. Along the central walkway are a skatepark, children’s playground, outdoor fitness areas, picnic lawns, a water plaza, and sensory gardens. Every element is barrier-free, allowing people of all ages and abilities to navigate and enjoy the park. The design fosters intergenerational use, inclusive recreation, and environmental education within a single, cohesive landscape.




A Community-Driven Design Process
One of the project’s greatest strengths lies in its participatory methodology. A series of public consultations, workshops, and design reviews ensured that the park reflects the voices and visions of the people who will use it. Local stakeholders were involved from inception to final planning—including Herstal's municipal services, who will manage the long-term maintenance of the park, the public hall, and the intergenerational facilities on site.



A Low-Impact, High-Value Urban Strategy
Every gesture in Browning Industrial Park reflects a commitment to low environmental impact and circular design. Material reuse, ecological landscaping, and water-sensitive strategies contribute to a sustainable urban footprint. This project is not just a park—it is a landscape of urban healing, where architecture, ecology, and civic life converge to restore meaning to a neglected place.



Redefining the Future of Post-Industrial Cities
The transformation of Browning Industrial Park underscores the power of design to regenerate urban spaces without erasing their histories. It reveals how former industrial zones can evolve into resilient, inclusive green infrastructure—places that both remember and look forward. As cities around the world grapple with questions of land reuse, climate adaptation, and social equity, Herstal’s model offers a blueprint for urban futures rooted in memory, ecology, and shared space.


All photographs are works of Bruno Dias Ventura
Popular Articles
Popular articles from the community
Architects Group RAUM Stacks Offset White Volumes into a Compact Office Tower in Busan
A 524-square-meter building on a tight corner lot in Haeundae plays with sunlight rights and shifting floor plates to create generous terraces.
1-1 Architects Builds a Nagoya House and Office from Decades of Stockpiled Timber
A 69-square-meter tower in dense residential Nagoya transforms surplus lumber into a home and workplace for a construction company.
20 Most Popular Office Building Projects of 2025
From biophilic workspaces in India to net-positive energy offices in New Delhi, 20 office building projects that defined architecture in 2025.
Paco Oria Estudio Rebuilds a 1949 Valencian Town House Around Timber, Terracotta, and a New Interior Patio
In Godella, Spain, a semi-detached house from the postwar era is stripped to its party walls and rebuilt with wood and ceramics.
Similar Reads
You might also enjoy these articles
Bamboo Housing Challenge 2026: Design Affordable, Sustainable Homes Using Bamboo
An international design competition by Bamboo U and IBUKU inviting architects and designers to reimagine affordable housing using bamboo — with the winning design built full-scale in Bali.
Computational Design & Education: Beegraphy Design Awards Introduces 7th Category (Featuring Jiyun's Innovative Approach)
Dive into Beegraphy’s 7th Design Awards category, where computational design meets education to create immersive, interactive learning tools, inspired by Jiyun’s work.
From Parametric Lighting to Urban Furniture: Join the 2nd Workshop in Beegraphy’s Computational Design Series
Dive into Cutting-Edge Design Techniques and Practical Applications with Industry Experts
Introducing Sphere by UNI: Pioneering a New Era in AEC Industry
Unlocking Global Potential with BIM and Agile Management
Explore Architecture Competitions
Discover active competitions in this discipline
The International Standard for Design Portfolios
The Global Benchmark for Architecture Dissertation Awards
The Global Benchmark for Graduation Excellence
Challenge to reimagine the Iron Throne
Comments (0)
Please login or sign up to add comments
No comments yet. Be the first to comment!