Brutalist Architecture in Education: Redefining Kindergarten Spaces
This article discusses the integration of Brutalist architecture in The Castle Garden, a unique kindergarten design in Marseille, France.
Introduction to Brutalist Architecture in Kindergarten Design
In the post-World War II era, Brutalism emerged as a dominant force in architectural design, characterized by its raw, unadorned surfaces, and massive, monolithic forms. However, in recent years, the stark, imposing structures of Brutalism have been reimagined to serve new purposes, blending historical architectural elements with modern needs. "The Castle Garden" winner project of Untainted, a kindergarten design by Mou Ziyong and Cong Liu, serves as a prime example of how Brutalist architecture can be integrated into educational spaces, fostering a unique learning environment for children.

The Castle Garden: A Harmonious Blend of Form and Function
Located in an abandoned open space in Marseille, France, The Castle Garden stands as a testament to the adaptability and enduring relevance of Brutalist architecture. Surrounded by old residences, the project aims not only to provide a nurturing environment for children but also to rejuvenate the surrounding community, transforming the area into a vibrant, interactive space.

The Design Philosophy
The Castle Garden project transcends traditional educational architecture by incorporating elements of Brutalism, resulting in a space that is both monumental and inviting. The design reawakens the sense of ritual lost in modern urban life, creating a space where children can explore the interplay of light and shadow, indoor and outdoor environments, and the geometric order of continuous roofing against thick, pure concrete structures.

Educational Spaces Reimagined
The kindergarten is designed with the educational philosophy of integrating nature and play into learning. Reminiscent of primitive educational settings, where learning occurred under the shade of trees, The Castle Garden's continuous roofs provide shelter and protection, allowing children to move freely and explore the different levels and courtyards, encouraging a hands-on approach to learning.

Architectural Innovation and Community Impact
The Castle Garden leverages its location and architectural design to serve not only as an educational facility but also as a "pacemaker" for the surrounding area. By situating the kindergarten to the south and opening up a large square to the community, the project creates a seamless transition from residential areas to educational spaces, fostering a sense of community and belonging.

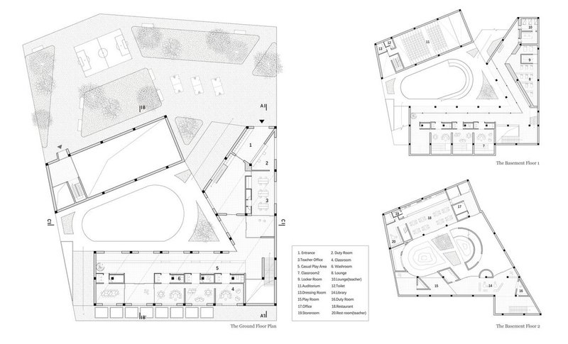
Underground Spaces and Courtyards
Due to the site's limited height, the project expands underground, creating multiple levels and courtyards that address the lighting challenges while maintaining the Brutalist aesthetic. The design introduces a duality between the exterior's monumental façade and the interior's series of courtyards, blending the boundaries between indoor and outdoor spaces and creating a protected "castle garden" for children.

The Role of Brutalism in Modern Education
The Castle Garden exemplifies how Brutalism, often perceived as cold and imposing, can be transformed into a warm, inviting space conducive to learning and exploration. By balancing the scale and incorporating natural elements, the project dispels the notion of Brutalism as incompatible with daily life, instead presenting a vision of a space where children can engage with their environment and each other in meaningful ways.

The Castle Garden represents a significant shift in the design of educational spaces, where the principles of Brutalism are applied to create environments that are not only functional but also inspirational. This project highlights the potential of architectural innovation to influence educational philosophy, emphasizing the importance of space and environment in shaping young minds. As Brutalist architecture continues to find new expressions in modern contexts, The Castle Garden stands as a beacon of how thoughtful design can transform educational spaces and communities alike.
Popular Articles
Popular articles from the community
Atelier Macri Concept Store Interior Design by CASE-REAL
Atelier Macri store features a "ko" counter, walnut wood details, cork displays, blending retail, gallery, and seamless customer experiences.
Solar Steam: A Climate-Responsive Architecture That Redefines the Monument
A climate-responsive memorial architecture that transforms heat, decay, and time into a living system reflecting humanity’s ecological impact.
Louis Malle Cinema: A Limestone Cultural Landmark Revitalizing Community Life in Prayssac
Limestone cinema extension with public forecourt, blending heritage and modern design to create flexible cultural spaces and strengthen community interaction.
The Ken Roberts Memorial Delineation Competition (Krob)
As the most senior architectural drawing competition currently in operation anywhere in the world, it draws hundreds of entries each year, awarding the very best submissions in a series of medium-based categories.
Similar Reads
You might also enjoy these articles
The Ken Roberts Memorial Delineation Competition (Krob)
As the most senior architectural drawing competition currently in operation anywhere in the world, it draws hundreds of entries each year, awarding the very best submissions in a series of medium-based categories.
A Contemporary Take on Iranian Residential Architecture
A modern interior design in Mashhad that reinterprets brick, light, and spatial flow to create a warm, contemporary residential architecture.
Franche-Comté Advanced School of Engineering by Dominique Coulon & associés, Besançon
A flexible engineering school immersed in woodland, combining concrete minimalism, adaptable spaces, and natural light to support evolving educational environments.
Documentation Work on Buddhist Wooden Temple
Architectural syncretism and cultural hybridity: A comparative study of the Buddhist temples in Chattogram Hill tracks
Explore Architecture Competitions
Discover active competitions in this discipline
The International Standard for Design Portfolios
The Global Benchmark for Architecture Dissertation Awards
The Global Benchmark for Graduation Excellence
Challenge to design public laboratory
Comments (0)
Please login or sign up to add comments
No comments yet. Be the first to comment!