Cave Office: A Pioneering Organic Architecture Office Design by Javier Senosiain in Mexico City
Cave Office by Javier Senosiain: An innovative organic architecture office blending nature, comfort, and creativity in Mexico City.
Nestled in the heart of Mexico City, the Cave Office by Javier Senosiain presents an avant-garde approach to office interiors, embodying the principles of organic architecture. Spanning 202 m², this project, captured by photographers Julieta Badillo, Francisco Llubert, and Tanya Picazo Navarro, transcends conventional design paradigms to create a workspace that prioritizes human comfort, creativity, and connection with nature.



Embracing the Human-Centric Approach
Senosiain's design philosophy centers around crafting spaces that adapt to human needs—cozy, continuous environments where both space and emotions flow freely. The Cave Office is designed as a welcoming site, promoting freedom, spontaneity, and creativity. By integrating furniture and facilitating seamless circulation, the office encourages a natural rhythm of human movement, mirroring the comfort found in nature's shelters like animal dens and igloos.






Breaking with the Glass Box
The Cave Office aims to reconcile modern workspace needs with the organic forms found in nature. Senosiain describes the project as a departure from the traditional "glass box," seeking instead to create spaces that echo the human body's natural inclinations towards enveloping, cave-like environments. This approach not only fosters a sense of safety and belonging but also inspires a deeper connection with the architectural space.




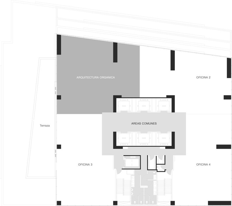
A Workspace Divided
The office layout is thoughtfully divided into two main areas: the private space and the workshop, connected by a winding tunnel that guides movement between them. The workshop area boasts spacious work tables designed for both individual and collaborative tasks, fostering an environment where creative minds can flourish together. This space extends to a multi-purpose terrace, offering a rare urban oasis where employees can enjoy greenery against the city backdrop.





The Private and Collaborative Spaces
Private spaces within the Cave Office are designed as cubicles perceived as caves, offering secluded areas for focused work. Additionally, a circular volume serves as a versatile meeting room, suitable for team discussions or client presentations, emphasizing the office's adaptable nature.




Materiality and Sensory Experience
The use of pine wood skeletons, maple root veneer, and leather-covered work surfaces exemplifies Senosiain's commitment to organic materials, enhancing the office's cave-like ambiance. These material choices not only contribute to the aesthetic appeal but also to the tactile experience, making the workspace a comfortable and inviting place to spend the day.



A Warm, Illuminated Cave for Creativity
Cave Office stands as a beacon of organic architecture office design, offering a unique work environment that stimulates creativity and well-being. Javier Senosiain has successfully created a space that balances the dynamic of changing lights throughout the day with a warm, illuminated cave atmosphere, providing sensory stimuli that inspire and comfort its inhabitants. This project redefines the concept of the office, making it a place where nature and architecture converge to support the human spirit.





All photographs are work of Julieta Badillo, Francisco Llubert, Tanya Picazo Navarro
Popular Articles
Popular articles from the community
Flamboyant House by Juliana Camargo + Prumo Projetos
Modern Brazilian house integrating existing tree, pool, and volumes with glass, wood, and transitional spaces blending interior, exterior, and landscape seamlessly.
A Contemporary Take on Iranian Residential Architecture
A modern interior design in Mashhad that reinterprets brick, light, and spatial flow to create a warm, contemporary residential architecture.
Atelier Macri Concept Store Interior Design by CASE-REAL
Atelier Macri store features a "ko" counter, walnut wood details, cork displays, blending retail, gallery, and seamless customer experiences.
On the Brooks House by Monsoon Collective – A Contemporary Kerala Home Rooted in Tradition
Kerala home blending tradition and modernity with water-inspired design, brick architecture, courtyard planning, and sustainable rainwater harvesting strategies.
Similar Reads
You might also enjoy these articles
Bamboo Housing Challenge 2026: Design Affordable, Sustainable Homes Using Bamboo
An international design competition by Bamboo U and IBUKU inviting architects and designers to reimagine affordable housing using bamboo — with the winning design built full-scale in Bali.
Computational Design & Education: Beegraphy Design Awards Introduces 7th Category (Featuring Jiyun's Innovative Approach)
Dive into Beegraphy’s 7th Design Awards category, where computational design meets education to create immersive, interactive learning tools, inspired by Jiyun’s work.
From Parametric Lighting to Urban Furniture: Join the 2nd Workshop in Beegraphy’s Computational Design Series
Dive into Cutting-Edge Design Techniques and Practical Applications with Industry Experts
Introducing Sphere by UNI: Pioneering a New Era in AEC Industry
Unlocking Global Potential with BIM and Agile Management
Explore Architecture Competitions
Discover active competitions in this discipline
The International Standard for Design Portfolios
The Global Benchmark for Architecture Dissertation Awards
The Global Benchmark for Graduation Excellence
Challenge to design luxury tourism on rails
Comments (0)
Please login or sign up to add comments
No comments yet. Be the first to comment!