Chicxulub Market Plaza by Estudio MMX: A Harmonious Blend of Community, Architecture, and Nature
Chicxulub Market Plaza blends architecture and nature, offering shaded public spaces, local commerce, and community gathering areas in Yucatán.
Located in the vibrant coastal town of Chicxulub Puerto in Yucatán, Mexico, the Chicxulub Market Plaza is a shining example of urban regeneration rooted in community-centric design. Designed by the renowned architectural practice Estudio MMX, this project seamlessly blends public space, commercial functionality, and cultural identity, revitalizing a central part of the town while honoring its traditions.

Context and Vision
Chicxulub Puerto, positioned north of the Yucatán Peninsula along the Gulf of Mexico, is a town historically shaped by its maritime culture and proximity to Progreso, a key urban hub. The site selected for the market and plaza project sits at a crucial intersection of the town’s most active corridors. It not only links important civic institutions but also serves as a gateway between natural landscapes and adjacent neighborhoods.

The project was conceived as a unified vision — a public square and a market that could operate both individually and collectively, becoming a social, economic, and environmental anchor for the town.
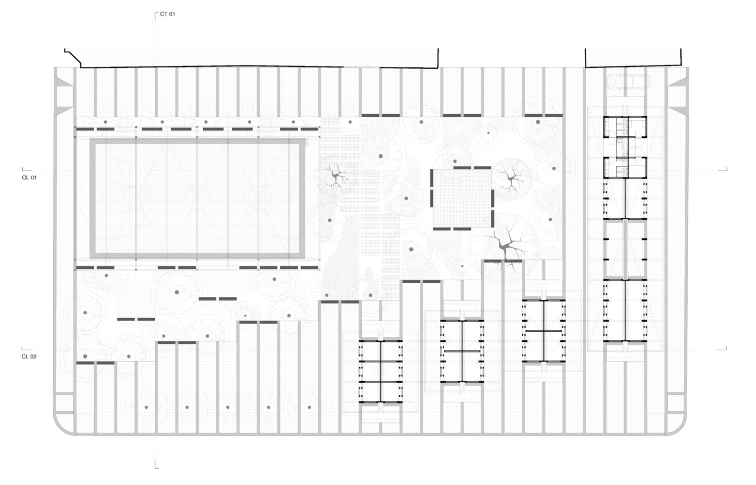
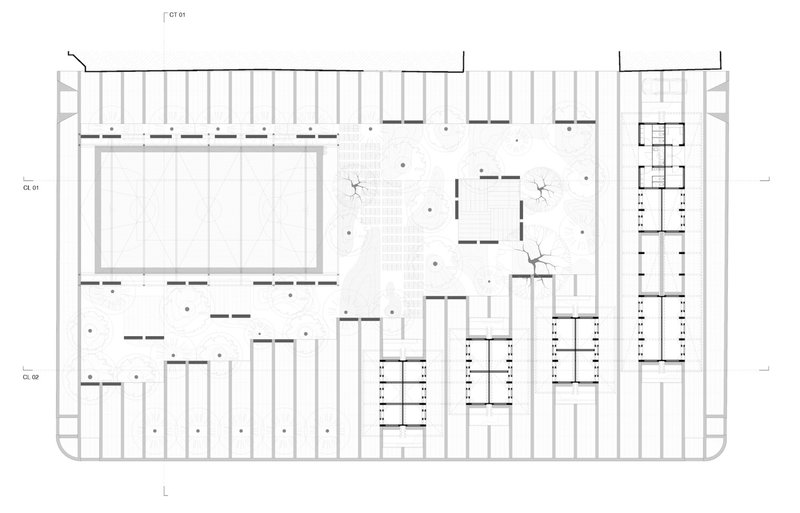
Architectural Strategy and Spatial Division
The entire intervention is split into two interconnected zones:
- The Plaza (North Side): A civic and recreational space defined by a central garden, a basketball court, shaded seating areas, and open spaces for public events. This area encourages residents and visitors to gather, rest, and participate in community life.
- The Market (South Side): Composed of four sales volumes and one service volume, the market is covered by distinctive inverted gable roofs, offering protection from sun and rain while allowing natural ventilation and daylight. Each sales volume houses six vendor stalls, flanking either side of a central walkway, creating a dynamic commercial environment. The fifth volume holds shared facilities such as administrative offices, restrooms, a laundry area, and a waste room.


This thoughtful spatial organization ensures a clear programmatic flow, where commercial and recreational activitiessupport and complement each other, fostering civic cohesion.
Design Language and Materials
The architecture embraces a minimalist yet regionally inspired vocabulary. The inverted gable roofs, joined by a system of skylights, establish a distinctive visual identity while optimizing light and ventilation — crucial in Yucatán’s tropical climate. These roof structures also create dramatic shadows that echo the filtered light under tree canopies, reinforcing the project’s integration with nature.


Materials such as local stone, concrete, and steel are used in a way that reflects traditional construction while offering durability. The landscape design, featuring native vegetation, is not just ornamental but functional — offering shade, habitat, and cooling properties throughout the plaza.

Urban Integration and Permeability
One of the most compelling aspects of the Chicxulub Market Plaza is its urban permeability. The layout and orientation of the buildings — primarily east-west — allow for a seamless connection between surrounding streets and the inner plaza. This creates a network of open spaces and circulation paths that invite movement and interaction.

The placement of volumes also forms a public forecourt at the corner, creating a natural entrance plaza that activates the street and aligns with nearby commercial activities. These design gestures make the project inclusive and accessible, prioritizing pedestrian comfort and community usage.


Social and Cultural Impact
More than a commercial venue, the Chicxulub Market Plaza is a cultural and civic platform. It serves as a setting for daily interactions, seasonal festivals, and community events, reinforcing the town’s social fabric. Its design encourages lingering — through shaded areas, seating zones, and a layout conducive to informal gathering.


By rethinking a simple market as a multifunctional public realm, Estudio MMX delivers a project that doesn’t just respond to local needs but elevates them, demonstrating how architecture can be a catalyst for community empowerment.



All the photographs are works of Dane Alonso
Popular Articles
Popular articles from the community
Gads Hill Early Learning Center by JGMA: Adaptive Reuse Shaping Community-Focused Educational Architecture
Adaptive reuse transforms fragmented structure into vibrant early learning center with playful façade, natural light, and community-focused sustainable design.
Solar Steam: A Climate-Responsive Architecture That Redefines the Monument
A climate-responsive memorial architecture that transforms heat, decay, and time into a living system reflecting humanity’s ecological impact.
Atelier Macri Concept Store Interior Design by CASE-REAL
Atelier Macri store features a "ko" counter, walnut wood details, cork displays, blending retail, gallery, and seamless customer experiences.
Inverted Architecture Installation by Studio Link-Arc: Exploring the Intersection of Architecture and Living Organisms
Inverted Architecture Installation by Studio Link-Arc blends mycelium, sustainability, inverted design, ecological cycles, and urban adaptive architecture in Shenzhen.
Similar Reads
You might also enjoy these articles
The Ken Roberts Memorial Delineation Competition (Krob)
As the most senior architectural drawing competition currently in operation anywhere in the world, it draws hundreds of entries each year, awarding the very best submissions in a series of medium-based categories.
Waterfront Redevelopment and Urban Revitalization in Mumbai: Forging a New Dawn for Darukhana
A transformative waterfront redevelopment project reimagining Darukhana’s shipbreaking heritage into an inclusive urban future.
OUT-OF-MAP: A Call for Postcards on Feminist Narratives of Public Space
Rhizoma Design and Research Lab invites artists, designers, architects, researchers, and students to reflect on how feminist perspectives can reshape public space. Selected works will be exhibited in Barcelona, October 2026. Submissions open until 15 April 2026.
Documentation Work on Buddhist Wooden Temple
Architectural syncretism and cultural hybridity: A comparative study of the Buddhist temples in Chattogram Hill tracks
Explore Architecture Competitions
Discover active competitions in this discipline
The International Standard for Design Portfolios
The Global Benchmark for Architecture Dissertation Awards
The Global Benchmark for Graduation Excellence
Challenge to reimagine the Iron Throne
Comments (0)
Please login or sign up to add comments
No comments yet. Be the first to comment!