Contemporary Café Design in Athens: Moden Café by Georgios Apostolopoulos Architects
Moden Café in Athens blends contemporary design with a nod to its pastry origins, creating a serene, interactive café experience.
Celebrating Pastry Craft and Coffee Culture Through Contemporary Design
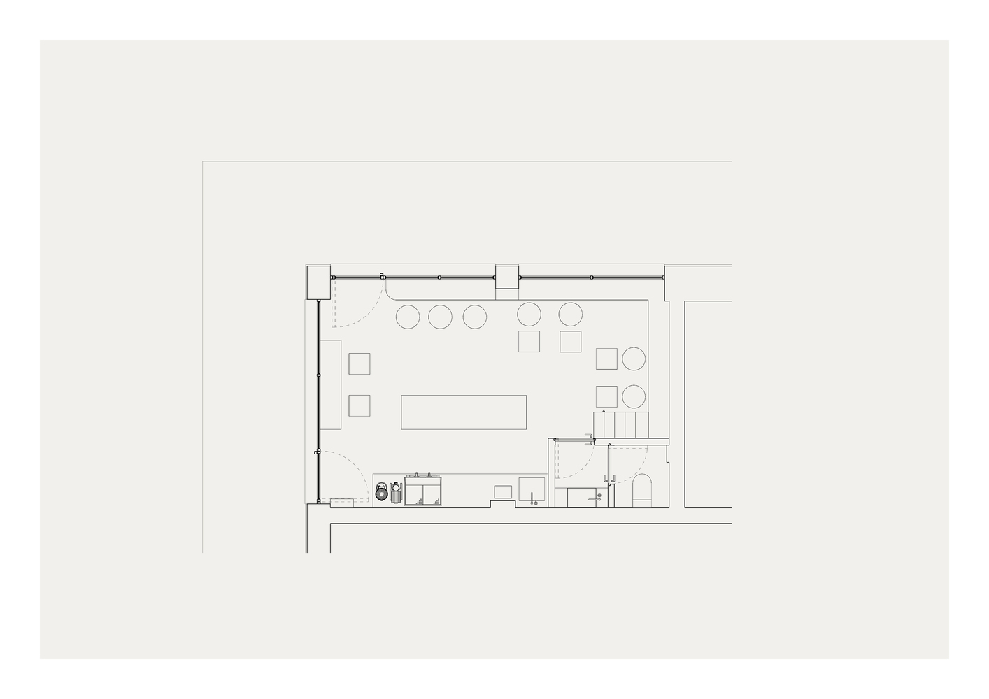
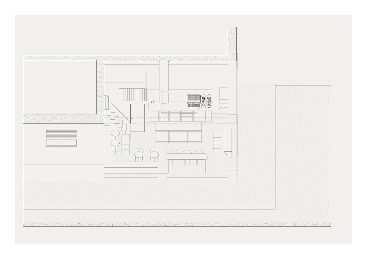
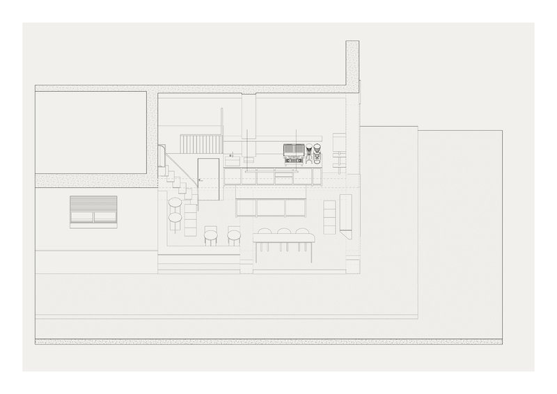
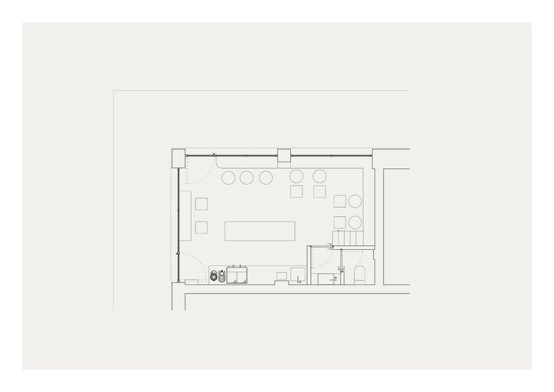
Moden Café, designed by Georgios Apostolopoulos Architects, is a striking example of contemporary café design in Athens. Located in the Pagrati neighborhood of central Athens, the café occupies a ground-floor space within a 1970s building. While embracing its origins as a former pastry workshop, the café’s design celebrates the artistry of pastries and the ritual of coffee making. The architects successfully integrate modern design elements with the café’s historical roots, creating a space that feels both timeless and contemporary.



A Seamless Blend of Tradition and Modernity
The space is meticulously designed to blend seamlessly into the neighborhood while offering a unique and calming environment. The design aesthetic is defined by clean lines, neutral tones, and an overall monochromatic atmosphere that provides a peaceful backdrop for patrons. The color palette is intentionally subtle, with textured floors and walls that evoke the warmth of dough and flour, bringing a sense of nostalgia and comfort. These design choices reflect the café’s deep connection to its pastry origins, while embracing modern trends in architecture.



Bespoke Craftsmanship and Thoughtful Materials
Every element within Moden Café has been thoughtfully crafted, with bespoke furnishings and finishes that elevate the overall design. Custom-made inox and oak benches line the space, offering comfortable seating for visitors while showcasing the café’s offerings. The materials, such as wood and metal, are used not only for their aesthetic appeal but also to convey a sense of craftsmanship. These bespoke elements contribute to an inviting atmosphere, offering a tactile connection to the design that enhances the overall experience of the café.



An Open-Stage Kitchen and Coffee Bar as a Central Focal Point
At the heart of Moden Café lies its open kitchen and coffee bar, designed to be an interactive and transparent space. This design decision allows visitors to witness the artistry of coffee making and pastry serving as a performance. The open kitchen fosters an appreciation for craftsmanship and emphasizes the importance of quality and process. The kitchen acts as the stage, with patrons seated around the perimeter of the space, offering them an up-close and personal view of the process, elevating the café experience to an interactive one.




Connection Between Interior and Exterior Spaces
One of the standout features of Moden Café is its custom-made façade, which blurs the boundaries between the interior and exterior spaces. The fully open façade floods the café with natural light, creating a sense of openness and inviting the surrounding cityscape into the space. This seamless connection between the café and its environment encourages a sense of presence, allowing the city to become a part of the experience. The natural light also enhances the peaceful and serene atmosphere, adding to the overall calming ambiance of the space.



A Design That Invites Reflection and Interaction
The design of Moden Café encourages visitors to slow down and engage with the space. The neutral tones, natural materials, and thoughtful design details come together to create an atmosphere of tranquility. The open kitchen, the communal seating arrangement, and the connection between the interior and exterior all contribute to fostering a space where both the mind and senses can relax. Whether it’s enjoying a pastry or sipping a coffee, the café is designed to encourage presence and reflection, making it a haven for visitors seeking a peaceful break in the heart of Athens.






All photographs are works of Lorenzo Zandri
Popular Articles
Popular articles from the community
On the Brooks House by Monsoon Collective – A Contemporary Kerala Home Rooted in Tradition
Kerala home blending tradition and modernity with water-inspired design, brick architecture, courtyard planning, and sustainable rainwater harvesting strategies.
Treehouse Apartment: A Warm Timber Interior Blending Craft, Play, and Contemporary Living
Warm timber apartment with integrated treehouse, combining natural materials, craftsmanship, and playful design to create a flexible, family-oriented living environment.
Atelier Macri Concept Store Interior Design by CASE-REAL
Atelier Macri store features a "ko" counter, walnut wood details, cork displays, blending retail, gallery, and seamless customer experiences.
Louis Malle Cinema: A Limestone Cultural Landmark Revitalizing Community Life in Prayssac
Limestone cinema extension with public forecourt, blending heritage and modern design to create flexible cultural spaces and strengthen community interaction.
Similar Reads
You might also enjoy these articles
Bamboo Housing Challenge 2026: Design Affordable, Sustainable Homes Using Bamboo
An international design competition by Bamboo U and IBUKU inviting architects and designers to reimagine affordable housing using bamboo — with the winning design built full-scale in Bali.
Computational Design & Education: Beegraphy Design Awards Introduces 7th Category (Featuring Jiyun's Innovative Approach)
Dive into Beegraphy’s 7th Design Awards category, where computational design meets education to create immersive, interactive learning tools, inspired by Jiyun’s work.
From Parametric Lighting to Urban Furniture: Join the 2nd Workshop in Beegraphy’s Computational Design Series
Dive into Cutting-Edge Design Techniques and Practical Applications with Industry Experts
Introducing Sphere by UNI: Pioneering a New Era in AEC Industry
Unlocking Global Potential with BIM and Agile Management
Explore Architecture Competitions
Discover active competitions in this discipline
The International Standard for Design Portfolios
The Global Benchmark for Architecture Dissertation Awards
The Global Benchmark for Graduation Excellence
Challenge to reimagine the Iron Throne
Comments (0)
Please login or sign up to add comments
No comments yet. Be the first to comment!