Core Principles Meet Innovative Design at Siten Residence by Sides
How Did Sides Incorporate Core Sustainability Principles into the Design of Siten Residence?

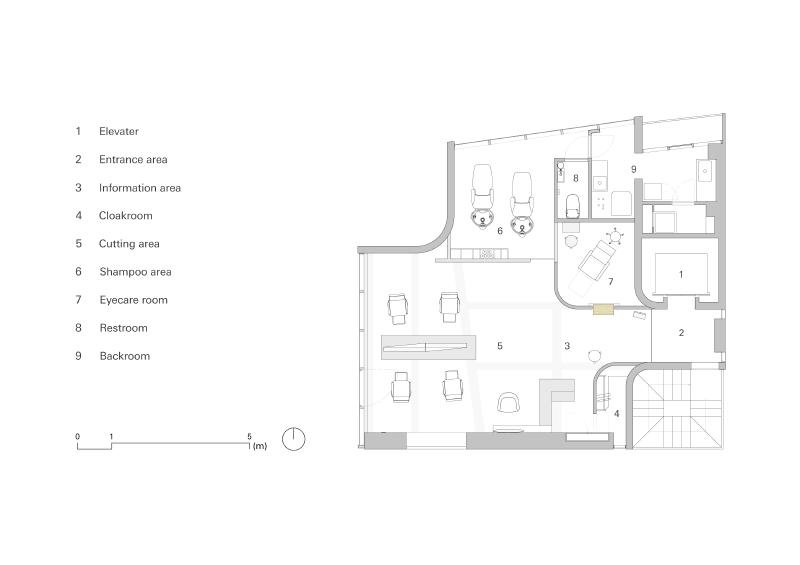
This multi-faceted mirror set creates a unique spatial experience that shifts perspectives and changes perceptions. Its two-axis tilt creates a symbolic mirror with a hair design, allowing users to "change their perspective, change their life". The mirrors provide privacy for four seats by making it difficult for lines of sight to cross, even between adjacent seats. The linear design of the mirrors contrasts with the existing wall surfaces of the building's frame, which are composed of curves. The new partitions blend into the space by adopting the same curves as their motif.
The curved wall of the relaxing personal eyecare room, which captures natural light from the full-height windows to create a soft, rich atmosphere, is reflected in the solid mirror set, along with the curtains treated with thin vapour-deposited silver foil. Installed behind a slit in the wall, the end face of the mirror set, shaped by its skewed axes, is visible from the intersection on the avenue. This serves as the symbol of the salon, resonating with the logo which symbolizes perspective, field of view, and viewpoint. The subtle shifts of perspective and the space projected by the rich background in the mirrors offer a unique and comforting experience.


















Architects: SIDES CORE
Area: 72 m²
Year: 2022
Photographs: Takumi Ota
Construction Company: VENCER Inc.
Lighting Design: Daiko Electric Co., Ltd, Yoriaki Kokubu
Popular Articles
Popular articles from the community
Flamboyant House by Juliana Camargo + Prumo Projetos
Modern Brazilian house integrating existing tree, pool, and volumes with glass, wood, and transitional spaces blending interior, exterior, and landscape seamlessly.
Treehouse Apartment: A Warm Timber Interior Blending Craft, Play, and Contemporary Living
Warm timber apartment with integrated treehouse, combining natural materials, craftsmanship, and playful design to create a flexible, family-oriented living environment.
A Contemporary Take on Iranian Residential Architecture
A modern interior design in Mashhad that reinterprets brick, light, and spatial flow to create a warm, contemporary residential architecture.
An Miên Lumière Cafe by xưởng xép, Ho Chi Minh City, Vietnam
An industrial-inspired café where layered steel and warm light create a dynamic, immersive environment shaped by reflection, depth, and perception.
Similar Reads
You might also enjoy these articles
Zhuxi Wonderland: Reimagining Traditional Chinese Gardens by Doarchi Architects
Zhuxi Wonderland by Doarchi Architects reinterprets traditional Yangzhou gardens, integrating courtyards, pavilions, and tea houses in modern cultural design.
Doble Soga House: A Contemporary Brick Residence Rooted in Landscape in Quito, Ecuador
Brick house in Quito integrating nature, flexible living spaces, exposed materials, and rooftop terrace, creating warm contemporary architecture for modern family life.
Al Gharra Mosque in Medina Redefining Contemporary Islamic Architecture
Minimalist Medina mosque using concrete, light, and landscape to reinterpret Islamic worship spaces through symbolic spiritual transitions and contemporary architecture.
Viczonecode Villa by DDconcept – Tropical Family Living in Ho Chi Minh City
Tropical family villa in Ho Chi Minh City featuring courtyards, skylights, natural ventilation, elevated flooring, and seamless indoor–outdoor living surrounded by greenery.
Explore Architecture Competitions
Discover active competitions in this discipline
The International Standard for Design Portfolios
The Global Benchmark for Architecture Dissertation Awards
The Global Benchmark for Graduation Excellence
Challenge to design luxury tourism on rails
Comments (0)
Please login or sign up to add comments
No comments yet. Be the first to comment!