Down in the Clouds by Practice on Earth + Increments Studio
An experimental inflatable and container installation in rural Ningbo, transforming abandoned structures into playful cultural spaces through poetic, lightweight architecture.
Located in rural landscapes near Ningbo, Down in the Clouds is a poetic architectural installation that blends inflatable structures, steel containers, and experimental construction. Completed in 2024, the 290 m² project revitalizes abandoned utility buildings into playful cultural spaces, redefining how temporary materials can shape lasting public experiences.

Designed by Practice on Earth and Increments Studio, the project embraces lightness, imagination, and adaptability: reflecting the tranquil rhythm of hills, rice fields, and village life.
Architecture Rooted in Poetry and Place
Rather than beginning with rigid drawings or technical grids, the designers initiated the project through sketches and poems. This conceptual approach emphasized:

- Emotional resonance
- Visual softness
- Spatial playfulness
- Openness to improvisation
Dun’ao Village’s calm, secluded atmosphere became the foundation for an architecture that feels more like a drifting cloud than a fixed building. The project rejects monumentality in favor of delicacy, curiosity, and human-scale interaction.

Reusing Infrastructure Through Experimentation
The installation transforms three abandoned utility structures using prefabricated steel containers and inflatable systems. This hybrid strategy allowed for:
- Rapid assembly
- Minimal site disturbance
- Low material waste
- High adaptability


Instead of demolition, the designers practiced architectural recycling, turning neglected remnants into cultural landmarks. Each structure became a unique spatial experiment connected by a shared design language.
i. The Cloud Cafe: A Floating Landmark
Situated at the entrance to the farmland, the Cloud Cafe functions as both gateway and gathering space.

Key Features
- Large inflatable “cloud” canopy
- Cantilevered shelter for events
- 3 × 3 × 8 m container tower
- Compact coffee bar
- Rooftop viewing deck


The inflatable canopy acts as a soft, hovering landmark, contrasting with the solid steel container beneath. Visitors pass through the cloud to access the rooftop platform, where panoramic views of rice fields and mountains unfold.
This sequence transforms everyday coffee drinking into a spatial journey, from ground to sky, from solid to soft.

ii. The Leaning Cinema: Playful Engineering
Built on the site of a former billboard, the Leaning Cinema reinterprets the shipping container as a tilted, theatrical object.
Design Highlights
- 15° inclined container
- Two-point structural support
- Stepped interior seating
- Inflatable-wrapped columns
- Integrated HVAC concealment

Wrapped in inflatable rings, the supporting columns create the illusion that the structure rests on soft balloons. This whimsical gesture lightens the industrial container form, blending humor with technical precision.
Inside the 30 m² cinema, acoustic panels, projection equipment, and ergonomic seating ensure functional comfort, proving that experimental design can coexist with performance standards.


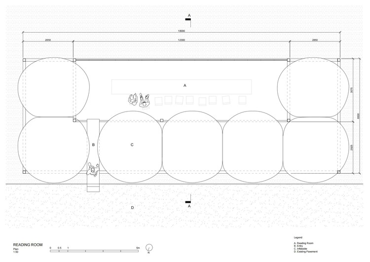
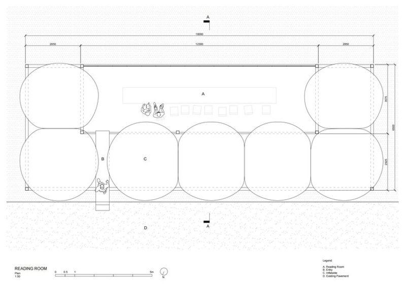
iii. The Secret Reading Room: Softness and Surprise
Located at the foot of the hills, the Secret Reading Room offers a more introspective spatial experience.
Spatial Composition
- Seven inflatable spheres
- Raised steel frame
- Semi-outdoor pavilion
- Aluminum ceiling
- Stainless-steel desks

Visitors enter by gently parting the inflated spheres, moving through a tactile threshold. Inside, hard industrial surfaces contrast sharply with the softness of the balloons.
Sunlight filtering through the inflatable forms creates shifting shadows, turning reading into a sensory experience shaped by time and weather.

Inflatables as Permanent Architecture
Unlike most inflatable installations intended for short-term use, Down in the Clouds treats inflatable elements as long-term architectural components.

Technical Innovations
- Multiple prototype stages (1:20 to 1:1)
- Continuous air-pressure systems
- Dual blower redundancy
- Sealed PVC welding techniques
- Material weight optimization



The Cloud Cafe’s canopy uses a continuous inflation system, ensuring stability even in case of minor punctures. Meanwhile, sealed PVC spheres in the cinema and reading room offer durability and gloss.
Early technical failures, sagging, leaks, sealing defects, became opportunities for refinement, resulting in robust construction methods.

Craft, Collaboration, and Local Making
Although prefabricated, the project relied heavily on on-site craftsmanship. Local workers had little experience with inflatable architecture, requiring constant communication and collaborative problem-solving.

Construction Process
- On-site recalibration
- Manual alignment corrections
- Custom assembly methods
- Month-long coordination
- Shared learning process

Through sustained dialogue, skepticism gradually turned into pride. The villagers’ final verdict, “It really looks good”, reflects the project’s success in building social acceptance alongside physical structures.
Cultural Tourism and Rural Regeneration
Down in the Clouds functions as more than an architectural installation. It serves as a catalyst for rural cultural tourism, activating underused landscapes through design.


Social Impact
- Encourages community gathering
- Attracts visitors
- Supports local economy
- Revitalizes abandoned sites
- Strengthens cultural identity

By combining modest scale with high creativity, the project demonstrates how experimental architecture can drive sustainable rural development.
Space as Experience, Not Object
The project’s greatest achievement lies in transforming architecture into lived experience. Visitors do not simply observe buildings: they move through clouds, lean into cinemas, and slip between soft spheres.


This choreography of movement and sensation reflects a broader philosophy: architecture should stimulate curiosity, invite play, and cultivate emotional connection.
A Prototype for Future Experimental Architecture
Down in the Clouds stands as a prototype for lightweight, low-impact, and community-oriented design. It challenges traditional distinctions between permanent and temporary, serious and playful, rural and contemporary.

By merging inflatable technology, poetic thinking, and participatory construction, Practice on Earth and Increments Studio offer a compelling vision for future public installations.


All the Photograhps are works of Cloe Yun Wang
Popular Articles
Popular articles from the community
Magic Box Office Barcelona Innovative Sustainable Workplace Design
Innovative sustainable office design featuring triangular form, ceramic façade, flexible interiors, natural light optimization, and creative workspace for modern work culture.
Alton Cliff House: A Harmonious Retreat by f2a Architecture in Lake Country, Canada
Alton Cliff House blends corten steel, prefabrication, and sustainable design, creating a luxurious, energy-efficient retreat perched on Canadian cliffs.
20 Most Popular Commercial Architecture Projects of 2025
From sustainable market concepts to heritage factories, the commercial buildings and proposals that drew the most attention on uni.xyz this year.
Similar Reads
You might also enjoy these articles
Filtering Space: A Gradual Spatial Experience
From urban intensity to spatial calm.
The Ken Roberts Memorial Delineation Competition (Krob)
As the most senior architectural drawing competition currently in operation anywhere in the world, it draws hundreds of entries each year, awarding the very best submissions in a series of medium-based categories.
Waterfront Redevelopment and Urban Revitalization in Mumbai: Forging a New Dawn for Darukhana
A transformative waterfront redevelopment project reimagining Darukhana’s shipbreaking heritage into an inclusive urban future.
OUT-OF-MAP: A Call for Postcards on Feminist Narratives of Public Space
Rhizoma Design and Research Lab invites artists, designers, architects, researchers, and students to reflect on how feminist perspectives can reshape public space. Selected works will be exhibited in Barcelona, October 2026. Submissions open until 15 April 2026.
Explore Architecture Competitions
Discover active competitions in this discipline
The International Standard for Design Portfolios
The Global Benchmark for Architecture Dissertation Awards
The Global Benchmark for Graduation Excellence
Challenge to design a portable theatre
Comments (0)
Please login or sign up to add comments
No comments yet. Be the first to comment!