Educational Architecture Design in Surat: Showcasing Nursing College Ashaktashram by Neogenesis + Studi0261
Explore Nursing College Ashaktashram in Surat, a perfect blend of educational functionality and architectural innovation by Neogenesis + Studi0261.
In the evolving landscape of educational architecture, the design of facilities plays a pivotal role in enhancing learning environments. Nursing College Ashaktashram in Surat, India, designed by Neogenesis + Studi0261, exemplifies how architecture can support and enrich the educational process.



Overview of Nursing College Ashaktashram
Project Context and Objectives
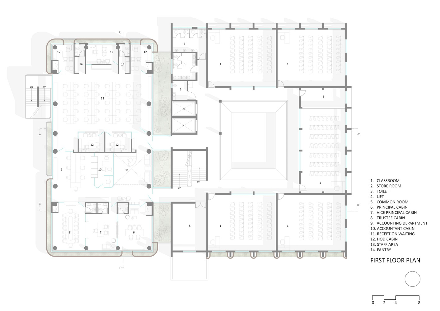
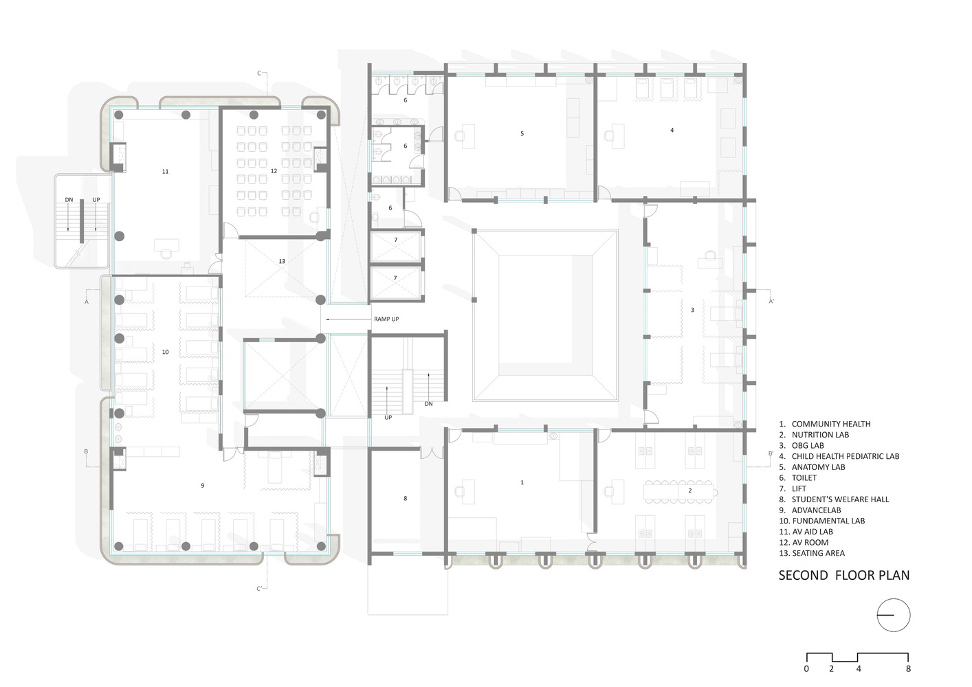
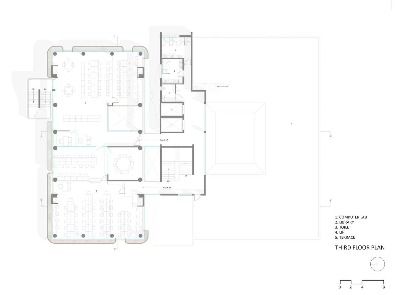
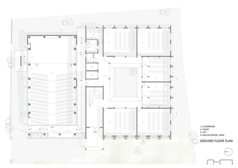
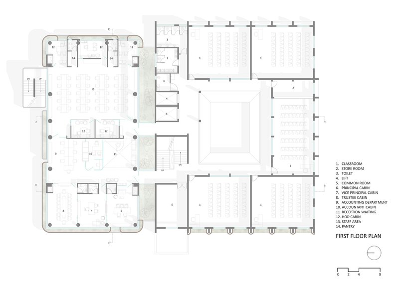
Situated within the Asakta Ashram Trust campus in Surat, Nursing College Ashaktashram extends over an area of 41883 ft² and was completed in 2023. The project aimed to create a functional and inviting educational space that caters to the needs of nursing students and faculty while also addressing the growing demands of professional healthcare training.



Architectural Strategy
The design of the Nursing College Ashaktashram is characterized by its thoughtful integration with the existing campus structures. The architects deployed a comprehensive approach that includes multifunctional spaces and considers student interaction, accessibility, and modern educational needs.



Key Architectural Features
Innovative Use of Space
The ground floor features an auditorium and a multifunctional hall designed for various gatherings, accessible without disrupting the college’s daily activities. This strategic placement enhances the utility of shared spaces without compromising the educational environment.



Focus on Accessibility and Flow
Connectivity between the new building and the existing structures is facilitated through ramps and passages, ensuring seamless movement for students and staff. This integration is crucial for fostering an accessible and inclusive educational setting.



Sustainable and Aesthetic Design Elements
Material Palette and Climate Considerations
The exterior combines exposed concrete, glass, and brick jali to provide not only aesthetic appeal but also functional benefits. The brick lattice helps in reducing heat gain, especially from the west, while allowing natural light and ventilation, which is vital in Surat’s climate.


Interior Design and Functionality
Interior spaces use a blend of cera grey flooring in common areas and kota flooring in laboratories, chosen for durability and ease of maintenance. Teak wood and grey laminate are used to add warmth and character to the interiors, promoting a conducive learning atmosphere.


Environmental Integration and Artistic Elements
Landscaping and Artwork
The college's design incorporates landscaped areas and planters that break the monotony of the facade and introduce greenery, creating a vibrant and welcoming environment. Artwork plays a significant role in enhancing the aesthetic and emotional appeal of the space, reflecting the vitality of the nursing profession.


A Paradigm of Modern Educational Architecture
Nursing College Ashaktashram by Neogenesis + Studi0261 stands as a landmark in educational architecture design in Surat, offering a model for future educational facilities that wish to combine functionality with innovative design. This project not only serves the practical needs of its users but also enriches their daily experiences, proving that thoughtful architectural design can profoundly impact educational outcomes.




All photographs are work of The Fishy Project
Popular Articles
Popular articles from the community
On the Brooks House by Monsoon Collective – A Contemporary Kerala Home Rooted in Tradition
Kerala home blending tradition and modernity with water-inspired design, brick architecture, courtyard planning, and sustainable rainwater harvesting strategies.
Louis Malle Cinema: A Limestone Cultural Landmark Revitalizing Community Life in Prayssac
Limestone cinema extension with public forecourt, blending heritage and modern design to create flexible cultural spaces and strengthen community interaction.
Atelier Macri Concept Store Interior Design by CASE-REAL
Atelier Macri store features a "ko" counter, walnut wood details, cork displays, blending retail, gallery, and seamless customer experiences.
The Ken Roberts Memorial Delineation Competition (Krob)
As the most senior architectural drawing competition currently in operation anywhere in the world, it draws hundreds of entries each year, awarding the very best submissions in a series of medium-based categories.
Similar Reads
You might also enjoy these articles
Bamboo Housing Challenge 2026: Design Affordable, Sustainable Homes Using Bamboo
An international design competition by Bamboo U and IBUKU inviting architects and designers to reimagine affordable housing using bamboo — with the winning design built full-scale in Bali.
Computational Design & Education: Beegraphy Design Awards Introduces 7th Category (Featuring Jiyun's Innovative Approach)
Dive into Beegraphy’s 7th Design Awards category, where computational design meets education to create immersive, interactive learning tools, inspired by Jiyun’s work.
From Parametric Lighting to Urban Furniture: Join the 2nd Workshop in Beegraphy’s Computational Design Series
Dive into Cutting-Edge Design Techniques and Practical Applications with Industry Experts
Introducing Sphere by UNI: Pioneering a New Era in AEC Industry
Unlocking Global Potential with BIM and Agile Management
Explore Architecture Competitions
Discover active competitions in this discipline
The International Standard for Design Portfolios
The Global Benchmark for Architecture Dissertation Awards
The Global Benchmark for Graduation Excellence
Challenge to reimagine the Iron Throne
Comments (0)
Please login or sign up to add comments
No comments yet. Be the first to comment!