Embracing the Elements: Contemporary Tropical House Design at Vale House by Ming Architects
The article discusses Vale House by Ming Architects, focusing on its integration of contemporary design with tropical living in Singapore.
Tropical architecture is characterized by its integration with nature, emphasis on ventilation, and use of local materials. The Vale House in Singapore by Ming Architects epitomizes this with its unique design that addresses the challenges of tropical living while providing a modern aesthetic.


Overview of Vale House
Project Context
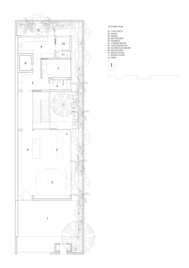
Located in a bustling area of Singapore, the Vale House by Ming Architects stands as a sanctuary from urban life. The design cleverly addresses privacy and environmental control while fostering a deep connection with nature.


Design Objectives
The main goal was to create a family-friendly, contemporary home that shields its inhabitants from the busy street yet opens up to a serene, lush courtyard. This approach ensures privacy and tranquility within a compact urban plot.


Key Architectural Features of Vale House
Privacy and Openness
Solid-Clad Wall
To combat the lack of privacy from the street, Ming Architects designed the Vale House with a solid-clad wall on the street-facing side. This feature not only protects the inhabitants from noise but also enhances the home’s thermal performance by blocking direct sunlight.


Internal Courtyard
At the heart of Vale House is an expansive three-story courtyard that brings natural elements into the home. This central green space is visible from multiple areas of the house, reinforcing the connection to nature and aiding in natural cooling.



Natural Integration and Sustainability
Landscape Design
The landscape plays a critical role in the overall design, with planters designed to cascade greenery from the upper floors down to the ground level, creating a vertical garden effect that enhances the tropical feel.


Material Selection
Sustainable materials such as teak wood and local stones are used throughout Vale House. These materials are not only durable and suitable for the tropical climate but also add a tactile quality to the home’s finishes.



Innovations in Tropical Living
Architectural Layout
The layout of Vale House is optimized for passive cooling, with spaces arranged to maximize cross-ventilation. The living areas are positioned to face the internal courtyard, which acts as a cool buffer zone between the house and the external environment.


Design Elements
The use of pivoting timber screens on the facade allows for adjustable privacy and sun protection, showing a flexible approach to tropical living. These screens provide the ability to alter the home’s interaction with its surroundings according to the time of day and season.


Future of Tropical Architecture
Vale House by Ming Architects sets a benchmark for contemporary tropical house design in urban environments. It showcases how architecture can embrace its local context and climatic conditions to create comfortable, sustainable living spaces.



All photographs are work of Studio Periphery
Popular Articles
Popular articles from the community
A Contemporary Take on Iranian Residential Architecture
A modern interior design in Mashhad that reinterprets brick, light, and spatial flow to create a warm, contemporary residential architecture.
Solar Steam: A Climate-Responsive Architecture That Redefines the Monument
A climate-responsive memorial architecture that transforms heat, decay, and time into a living system reflecting humanity’s ecological impact.
The Ken Roberts Memorial Delineation Competition (Krob)
As the most senior architectural drawing competition currently in operation anywhere in the world, it draws hundreds of entries each year, awarding the very best submissions in a series of medium-based categories.
Atelier Macri Concept Store Interior Design by CASE-REAL
Atelier Macri store features a "ko" counter, walnut wood details, cork displays, blending retail, gallery, and seamless customer experiences.
Similar Reads
You might also enjoy these articles
The Ken Roberts Memorial Delineation Competition (Krob)
As the most senior architectural drawing competition currently in operation anywhere in the world, it draws hundreds of entries each year, awarding the very best submissions in a series of medium-based categories.
Waterfront Redevelopment and Urban Revitalization in Mumbai: Forging a New Dawn for Darukhana
A transformative waterfront redevelopment project reimagining Darukhana’s shipbreaking heritage into an inclusive urban future.
OUT-OF-MAP: A Call for Postcards on Feminist Narratives of Public Space
Rhizoma Design and Research Lab invites artists, designers, architects, researchers, and students to reflect on how feminist perspectives can reshape public space. Selected works will be exhibited in Barcelona, October 2026. Submissions open until 15 April 2026.
Documentation Work on Buddhist Wooden Temple
Architectural syncretism and cultural hybridity: A comparative study of the Buddhist temples in Chattogram Hill tracks
Explore Architecture Competitions
Discover active competitions in this discipline
The International Standard for Design Portfolios
The Global Benchmark for Architecture Dissertation Awards
The Global Benchmark for Graduation Excellence
Challenge to reimagine the Iron Throne
Comments (0)
Please login or sign up to add comments
No comments yet. Be the first to comment!