Futuristic Exhibition Center Design: Capital International Exhibition and Convention Center by Zaha Hadid Architects
This article explores the futuristic exhibition center design of CIECC by Zaha Hadid Architects, emphasizing its innovation, sustainability, and structural excellence.
A Visionary Hub for Global Conventions
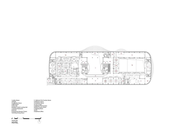
The Capital International Exhibition and Convention Center (CIECC), designed by Zaha Hadid Architects, represents a groundbreaking approach to futuristic exhibition center design. Expanding Beijing’s existing exhibition infrastructure to over 611,000 square meters, this state-of-the-art venue seamlessly integrates technology, sustainability, and architectural fluidity. With nine new exhibition halls, three reception halls, a conference center accommodating 9,000 delegates, and a 410-room hotel, CIECC is set to become a global benchmark for large-scale convention venues.







A Strategic Location for Connectivity and Accessibility
Situated in Beijing’s Shunyi District, adjacent to Capital International Airport and connected via the city’s Subway Line 15, the exhibition center is designed for maximum accessibility. Its central north-south axis acts as the main organizational element, linking the exhibition halls and providing a clear and intuitive navigation system. The inclusion of landscaped courtyards and sheltered outdoor event spaces enhances the spatial experience, offering gathering areas that seamlessly integrate with the surrounding urban fabric.






A Dynamic Architectural Language Inspired by Movement
The architectural design of CIECC is conceived as an interwoven system of ‘ribbons’ that connect various facilities. Elevated bridges facilitate indoor circulation between exhibition halls, the conference center, and the hotel, creating a fluid transition between spaces. The conference center and hotel are positioned to the north, forming a new public square that serves as a dynamic event space. The movement of people, goods, and vehicles is carefully planned through three distinct routes, ensuring seamless operations and adaptability for concurrent events.






Structural Innovation and Modular Flexibility
CIECC’s roof system incorporates symmetric geometries that create an insulated, lightweight, and large-span structure, allowing for column-free exhibition spaces. This innovative structural approach enables the venue to adapt rapidly to changing exhibition requirements, maximizing functional flexibility. The modular construction methodology not only reduces development time and investment costs but also ensures an efficient and scalable expansion model for future growth.





A Striking Façade Balancing Scale and Materiality
The center’s pleated, deep copper-colored façade incorporates large recessed windows, offering a balance between industrial scale and architectural elegance. This distinctive exterior design enhances the building’s identity while optimizing natural light penetration. The interplay of materials and geometric precision reflects Zaha Hadid Architects’ signature style, merging sculptural aesthetics with advanced engineering solutions.











Sustainability and Smart Building Integration
Achieving the highest certification under China’s Green Building Program, CIECC integrates advanced sustainable technologies. A hybrid ventilation system, powered by high-efficiency HVAC equipment, enhances indoor air quality while reducing energy consumption. The exhibition center also features rainwater collection systems, grey water recycling, and on-site photovoltaic energy generation, significantly reducing reliance on municipal utilities. These sustainability initiatives position CIECC as a leader in eco-conscious exhibition architecture.












Redefining the Future of Exhibition Architecture
The Capital International Exhibition and Convention Center is a paradigm of futuristic exhibition center design, setting new standards in architectural fluidity, operational efficiency, and environmental responsibility. By embracing modular adaptability, advanced structural solutions, and intelligent sustainability strategies, Zaha Hadid Architects have created a landmark that reflects Beijing’s growing prominence as a global hub for international conferences and industry expos.















All Photographs are works of Virgile Simon Bertrand
Popular Articles
Popular articles from the community
An Miên Lumière Cafe by xưởng xép, Ho Chi Minh City, Vietnam
An industrial-inspired café where layered steel and warm light create a dynamic, immersive environment shaped by reflection, depth, and perception.
Louis Malle Cinema: A Limestone Cultural Landmark Revitalizing Community Life in Prayssac
Limestone cinema extension with public forecourt, blending heritage and modern design to create flexible cultural spaces and strengthen community interaction.
Solar Steam: A Climate-Responsive Architecture That Redefines the Monument
A climate-responsive memorial architecture that transforms heat, decay, and time into a living system reflecting humanity’s ecological impact.
On the Brooks House by Monsoon Collective – A Contemporary Kerala Home Rooted in Tradition
Kerala home blending tradition and modernity with water-inspired design, brick architecture, courtyard planning, and sustainable rainwater harvesting strategies.
Similar Reads
You might also enjoy these articles
Bamboo Housing Challenge 2026: Design Affordable, Sustainable Homes Using Bamboo
An international design competition by Bamboo U and IBUKU inviting architects and designers to reimagine affordable housing using bamboo — with the winning design built full-scale in Bali.
Computational Design & Education: Beegraphy Design Awards Introduces 7th Category (Featuring Jiyun's Innovative Approach)
Dive into Beegraphy’s 7th Design Awards category, where computational design meets education to create immersive, interactive learning tools, inspired by Jiyun’s work.
From Parametric Lighting to Urban Furniture: Join the 2nd Workshop in Beegraphy’s Computational Design Series
Dive into Cutting-Edge Design Techniques and Practical Applications with Industry Experts
Introducing Sphere by UNI: Pioneering a New Era in AEC Industry
Unlocking Global Potential with BIM and Agile Management
Explore Architecture Competitions
Discover active competitions in this discipline
The International Standard for Design Portfolios
The Global Benchmark for Architecture Dissertation Awards
The Global Benchmark for Graduation Excellence
Challenge to reimagine the Iron Throne
Comments (0)
Please login or sign up to add comments
No comments yet. Be the first to comment!