Hackney House by Architecture for London: A Sustainable Victorian House Retrofit for Modern Family Living
Hackney House is a fossil fuel–free Victorian house retrofit combining heritage sensitivity, sustainable materials, and modern family living comfort.
Reviving a Victorian Home Through Sustainable Retrofit
Hackney House, a carefully restored early Victorian terrace in London by Architecture for London, represents a leading example of a Victorian house retrofit that balances historic preservation with contemporary comfort and energy efficiency. Originally built in the 19th century, the house has undergone a thoughtful transformation that respects its architectural heritage while incorporating modern technologies and sustainable materials to create a fossil fuel–free family home.




Reconfiguring the Plan for Modern Family Living
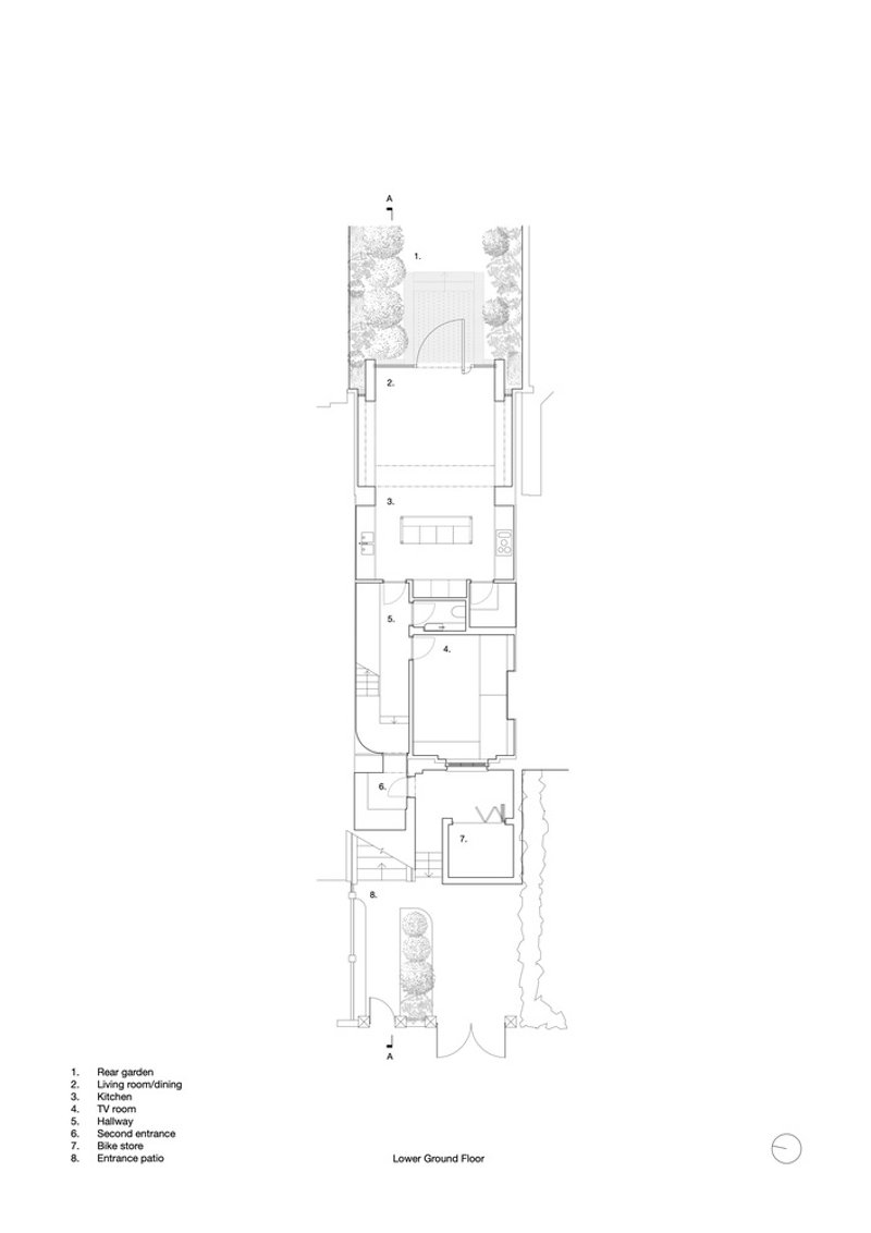
The renovation reorganizes the internal layout to better suit contemporary family needs. A new rear extension provides an open-plan space for dining, cooking, and entertaining, directly connecting the interior with the garden and inviting natural light deep into the home. The use of large glazed doors strengthens the visual and spatial connection between inside and out, enhancing the family’s day-to-day experience of space.




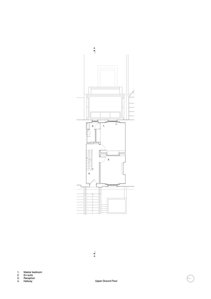
Loft Conversion with Sculptural Detailing
Accessed by a newly designed curved staircase in lime plaster, the converted loft adds a spacious bedroom and a generous dormer window. This addition preserves the compact footprint of the original Victorian house while increasing usable floor area and creating a serene retreat with elevated garden views. The lime plaster stair becomes both a functional and sculptural element, grounding the vertical movement of the home in tactile softness.




A Fossil Fuel–Free Victorian House
Hackney House operates entirely fossil fuel free. The heating system is powered by two air source heat pumps installed in the rear garden, which feed underfloor heating throughout the residence. An MVHR (mechanical ventilation with heat recovery) unit delivers filtered, pre-warmed air, reducing heat loss and ensuring fresh indoor air quality—a vital factor in the dense urban context of Hackney.




Retrofitting with High-Performance Insulation
To meet modern standards of thermal efficiency, the home’s internal walls were insulated using wood fibre panels, a natural and breathable material that enhances indoor comfort while supporting moisture regulation. To eliminate thermal bridges around the windows, aerogel was employed in the reveals, offering exceptional insulation in tight spaces. These upgrades dramatically reduce energy use and contribute to long-term sustainability.



Material Selections Rooted in Low Embodied Carbon
The design team prioritized materials with low embodied energy and long-term durability. The rear extension uses Marshmoor bricks and concrete lintels that contain 50% GGBS (Ground Granulated Blast Furnace Slag), reducing the carbon footprint compared to standard concrete. Internally, the home features natural finishes such as solid oak flooring, oak veneered plywood cabinetry, and lime plaster walls, all contributing to a tactile, warm atmosphere grounded in authenticity.

Structural Efficiency and Craftsmanship
To reduce steel use and enhance structural sustainability, the design employs composite steel and timber flitch beams. These lightweight but strong components minimize embodied energy and simplify construction logistics. Each detail of Hackney House reflects a balance between refined craftsmanship and architectural restraint, resulting in a home that feels contemporary yet deeply rooted in its historic context.


A Blueprint for Retrofitting London’s Housing Stock
Hackney House sets a valuable precedent for retrofitting London’s existing building stock. It exemplifies how a Victorian house retrofit can address the climate crisis by embracing passive design principles, renewable energy systems, and low-impact materials—all while preserving and celebrating the architectural character that defines the city’s heritage streetscapes.

All photographs are works of Building Narratives
Popular Articles
Popular articles from the community
The Ken Roberts Memorial Delineation Competition (Krob)
As the most senior architectural drawing competition currently in operation anywhere in the world, it draws hundreds of entries each year, awarding the very best submissions in a series of medium-based categories.
Inverted Architecture Installation by Studio Link-Arc: Exploring the Intersection of Architecture and Living Organisms
Inverted Architecture Installation by Studio Link-Arc blends mycelium, sustainability, inverted design, ecological cycles, and urban adaptive architecture in Shenzhen.
Fifth NRE Jazz Club – De Bever Architecten: Eindhoven’s Revitalized Cultural Hub
Historic gas factory transformed into Fifth NRE Jazz Club blending modern sustainability, jazz culture, dining, and heritage architecture seamlessly.
Gads Hill Early Learning Center by JGMA: Adaptive Reuse Shaping Community-Focused Educational Architecture
Adaptive reuse transforms fragmented structure into vibrant early learning center with playful façade, natural light, and community-focused sustainable design.
Similar Reads
You might also enjoy these articles
Bamboo Housing Challenge 2026: Design Affordable, Sustainable Homes Using Bamboo
An international design competition by Bamboo U and IBUKU inviting architects and designers to reimagine affordable housing using bamboo — with the winning design built full-scale in Bali.
Computational Design & Education: Beegraphy Design Awards Introduces 7th Category (Featuring Jiyun's Innovative Approach)
Dive into Beegraphy’s 7th Design Awards category, where computational design meets education to create immersive, interactive learning tools, inspired by Jiyun’s work.
From Parametric Lighting to Urban Furniture: Join the 2nd Workshop in Beegraphy’s Computational Design Series
Dive into Cutting-Edge Design Techniques and Practical Applications with Industry Experts
Explore Architecture Competitions
Discover active competitions in this discipline
The International Standard for Design Portfolios
The Global Benchmark for Architecture Dissertation Awards
The Global Benchmark for Graduation Excellence
Challenge to reimagine the Iron Throne
Comments (0)
Please login or sign up to add comments
No comments yet. Be the first to comment!