Harmonizing Architecture with Nature: Unveiling Brigati Polak Arquitectos' Organic Designs
Can Architecture and Nature Coexist in Perfect Harmony? Exploring Brigati Polak Arquitectos' Organic Approach

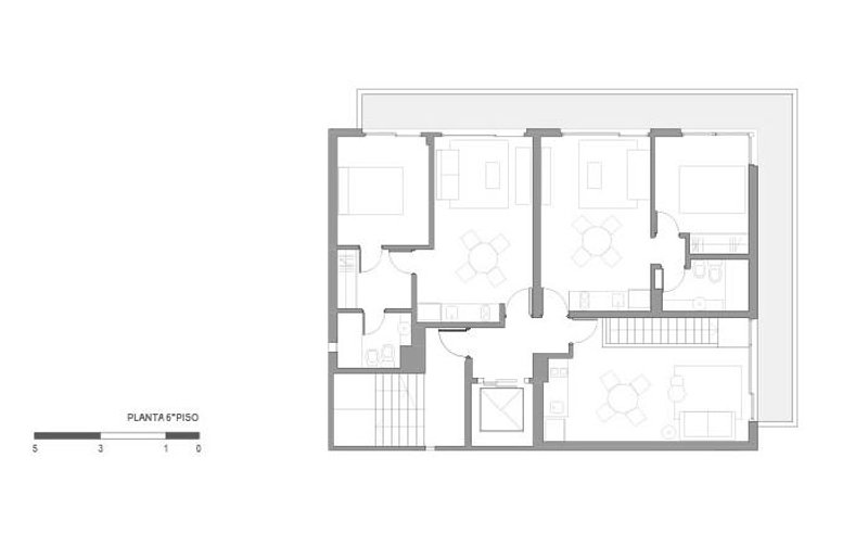
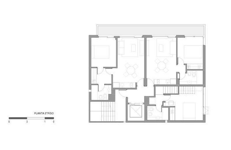
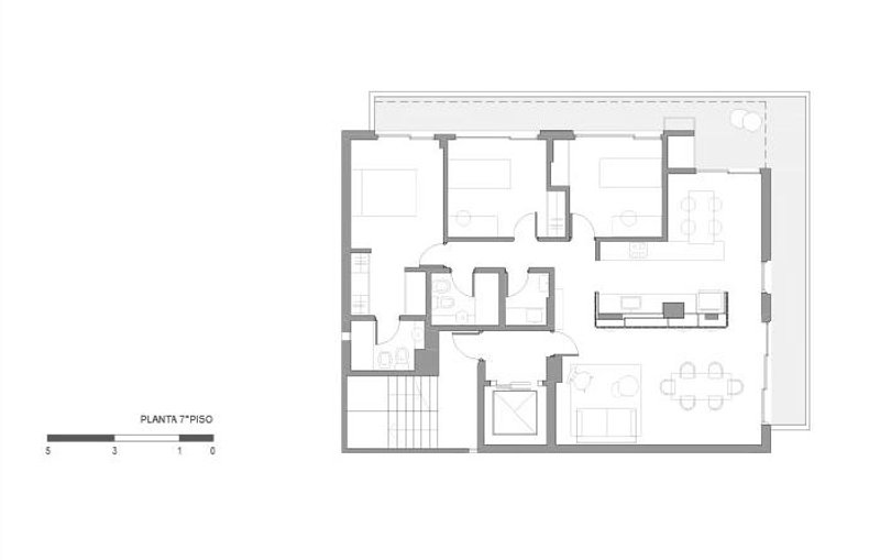
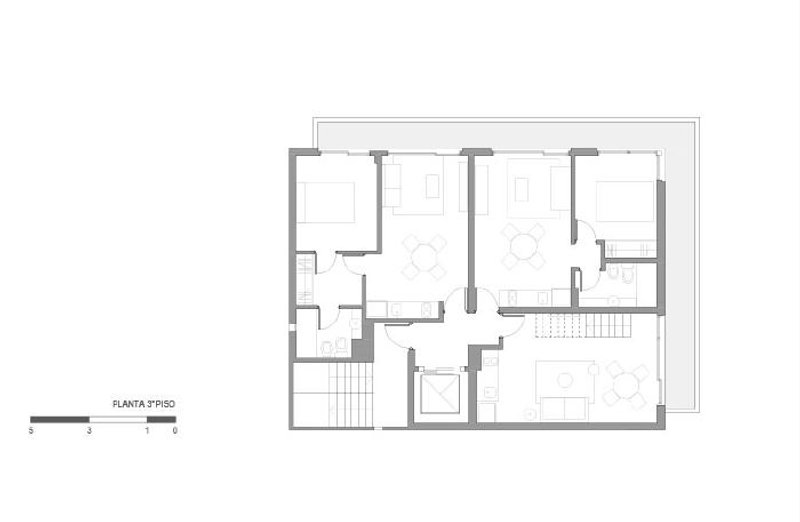
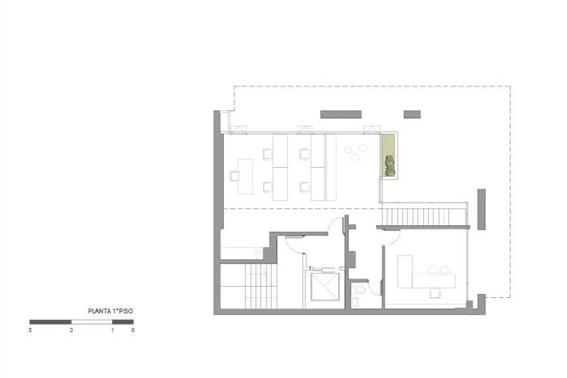
When we stand in front of a work of architecture, what expectations must it satisfy? It must draw our interest and respond to its time, both formally and functionally, as well as technologically. It must also benefit the largest number of people, not just those who inhabit the building. At ORGANIC, we act on these four premises to create a building that no one can ignore. This drive, which is so prevalent in modern life, is also present in our design. We assume that a building can be tied to a period and still remain unscathed. The large roof on the corner provides shelter for both us and others, making this expansion of the public space a meeting point and reference. In a monotonous urban fabric with narrow sidewalks, we proposed vegetation and widening, favoring the immediate public space. This intervention brings benefits to the city and its residents, leaving a positive balance in relation to the pre-existing.























































Popular Articles
Popular articles from the community
OUJ Rewires a 72-Square-Meter Taipei Apartment for Multigenerational Living After the Pandemic
Inside a 40-year-old public housing block, plywood volumes and translucent screens turn three cramped bedrooms into a flexible family home.
MIDW Casts a Pavilion Roof from the Earth Itself at the 2025 Osaka Expo
On a fragile reclaimed island, excavated soil becomes formwork for a concrete canopy that will eventually disappear into wisteria.
LABarq Builds an Entire House in Querétaro from a Single Custom Concrete Block
Casa Capuchinas uses one sand-colored block as structure, finish, and sunscreen across 477 square meters of suburban Mexico.
Prokop Hartl Turns a 1930s Prague Corner Apartment into a Lesson in Structural Honesty
A 115 m² renovation on the Vltava River celebrates exposed concrete, restored parquet, and a mirrored column as its centerpiece.
Similar Reads
You might also enjoy these articles
Rede Arquitetos Builds an Open-Air School in Fortaleza That Doubles as a Neighborhood Living Room
Educar II SESC-CE folds sports, dance, and community gathering into a courtyard campus wrapped in mesh and tropical color.
NZ10 Apartment by auba studio: Adaptive Reuse in Palma de Mallorca
Adaptive reuse apartment transforms bakery into light-filled home with patios, privacy layers, and wood interiors enhancing urban living experience.
TGK Nirasaki Plant: A Smart Factory Blending Technology, Landscape, and Wellness
Smart factory in Japan blending IoT manufacturing, scenic trail design, natural ventilation, and landscape integration to enhance user experience and sustainability.
House in Macieira by Nelson Resende Arquitecto: A Sensitive Transformation Rooted in Context and Materiality
Adaptive reuse house blending wood, glass, and landscape, transforming traditional Portuguese architecture into a warm, open, contemporary living environment.
Explore Architecture Competitions
Discover active competitions in this discipline
The International Standard for Design Portfolios
The Global Benchmark for Architecture Dissertation Awards
The Global Benchmark for Graduation Excellence
Challenge to reimagine the Iron Throne
Comments (0)
Please login or sign up to add comments
No comments yet. Be the first to comment!