Harmony Between Nature and Remembrance: Exploring Behet Bondzio Lin Architekten's Eternal Hill Columbarium
How does the Eternal Hill Columbarium by Behet Bondzio Lin Architekten create a tranquil space for reflection and remembrance?

Grief and funerals are often accompanied by a range of emotions. When we visit cemeteries, the last place we bid farewell to our loved ones, we often feel trepidation. What kind of architecture can help to alleviate this fear, while also providing a space for us to reflect on the past? We need a structure that can accommodate grief and loss, not just what is left behind after we have passed. The cemetery in Hsinchu, the Wind City, atop Xiang Shan Hill, overlooks the sea and is exposed to the strong winds of the Taiwan Strait. The design and construction of this wind tower tell the stories and memories of the city. Its protective skin provides the building with the necessary protection against the strong gusts of wind, while the tilt of the walls allows for softer breezes from different directions. This cemetery holds 70,000 memories and 70,000 irreparable regrets.
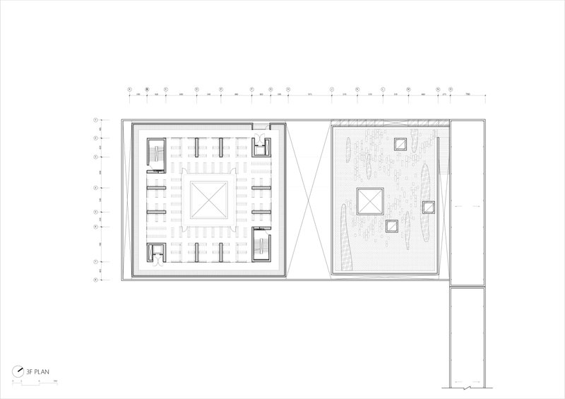
Mourning rituals involve placing incense, candles, and flowers on the “mountainside”, these practices create a wall and an opportunity for reflection. The wall serves to construct a distance of departure, rather than separation. The stacking of slanted, overlapped walls gives the main volume that allocates the Columbarium program its characteristic look. This stacking creates a vision of being at the feet of the hillside surrounded by mountains. The walls, slanted and opened to the sky, allow the sun's rays to warm the atmosphere and provide comfort. The perimeter built-in planters washed by the natural light at the base of these slanted walls create a path for wandering and reminiscing. One hundred and fifty-nine meters of loggia establish a connection between the former cemetery building and the new, creating a place for gatherings for those who come to pay their respects. This shaded colonnade shelters the traditional offering stands set during the mourning festivals and serves as an endless hallway leading people into the man-made plateau on which the columbarium stands. The Plateau that lifts the main volume houses the transitional program such as the worship spaces and gathering courtyards.
This platform is composed of a series of shaded patios, interconnected by sheets of water that lead to the Atrium. The Atrium is formed by the overhang stacking of the four levels that conform to the columbarium area. This design creates a naturally lit perimeter cloister and visually interconnected pathways that circle the Atrium. An in-situ concrete skylight is placed at the centre of the Atrium, allowing glimpses of the midday sun to enter and illuminate the terraced promenades. The atmosphere is further enhanced by the presence of lush vegetation, providing a sense of tranquillity and serenity to the space. The combination of natural light, water, and vegetation creates a unique and inviting atmosphere that encourages visitors to explore and appreciate the space.

































Popular Articles
Popular articles from the community
Inverted Architecture Installation by Studio Link-Arc: Exploring the Intersection of Architecture and Living Organisms
Inverted Architecture Installation by Studio Link-Arc blends mycelium, sustainability, inverted design, ecological cycles, and urban adaptive architecture in Shenzhen.
The Ken Roberts Memorial Delineation Competition (Krob)
As the most senior architectural drawing competition currently in operation anywhere in the world, it draws hundreds of entries each year, awarding the very best submissions in a series of medium-based categories.
An Miên Lumière Cafe by xưởng xép, Ho Chi Minh City, Vietnam
An industrial-inspired café where layered steel and warm light create a dynamic, immersive environment shaped by reflection, depth, and perception.
Atelier Macri Concept Store Interior Design by CASE-REAL
Atelier Macri store features a "ko" counter, walnut wood details, cork displays, blending retail, gallery, and seamless customer experiences.
Similar Reads
You might also enjoy these articles
Zhuxi Wonderland: Reimagining Traditional Chinese Gardens by Doarchi Architects
Zhuxi Wonderland by Doarchi Architects reinterprets traditional Yangzhou gardens, integrating courtyards, pavilions, and tea houses in modern cultural design.
Doble Soga House: A Contemporary Brick Residence Rooted in Landscape in Quito, Ecuador
Brick house in Quito integrating nature, flexible living spaces, exposed materials, and rooftop terrace, creating warm contemporary architecture for modern family life.
Al Gharra Mosque in Medina Redefining Contemporary Islamic Architecture
Minimalist Medina mosque using concrete, light, and landscape to reinterpret Islamic worship spaces through symbolic spiritual transitions and contemporary architecture.
Viczonecode Villa by DDconcept – Tropical Family Living in Ho Chi Minh City
Tropical family villa in Ho Chi Minh City featuring courtyards, skylights, natural ventilation, elevated flooring, and seamless indoor–outdoor living surrounded by greenery.
Explore Architecture Competitions
Discover active competitions in this discipline
The International Standard for Design Portfolios
The Global Benchmark for Architecture Dissertation Awards
The Global Benchmark for Graduation Excellence
Challenge to reimagine the Iron Throne
Comments (0)
Please login or sign up to add comments
No comments yet. Be the first to comment!