House of Facades: A Masterpiece of Privacy and Elegance by Marcos Bertoldi Arquitetos
A seamless blend of privacy, elegance, and natural light: the House of Facades by Marcos Bertoldi Arquitetos redefines seaside living.
Located in a seaside condominium in Itajaí, Brazil, the House of Facades by Marcos Bertoldi Arquitetos epitomizes modern architectural brilliance. Designed to prioritize privacy while embracing natural light, this 612 m² residence harmoniously combines stone, wood, and lush landscaping to create a serene and private oasis.



Architectural Concept
Privacy Through Design
Built on a rectangular 520 m² lot surrounded by conventional homes, privacy was a central challenge. The architects addressed this with:
- Aerial travertine walls that act as windowless side façades, shielding internal spaces from neighboring views.
- Movable wooden mashrabiya screens on the front and rear façades, providing ventilation and temperature control while maintaining privacy.



Open-Air Courtyard
At the heart of the home is an open-air courtyard with double-height ceilings. This space brings in ample natural light and protects the glassed areas, creating a seamless indoor-outdoor connection.


Interior Layout
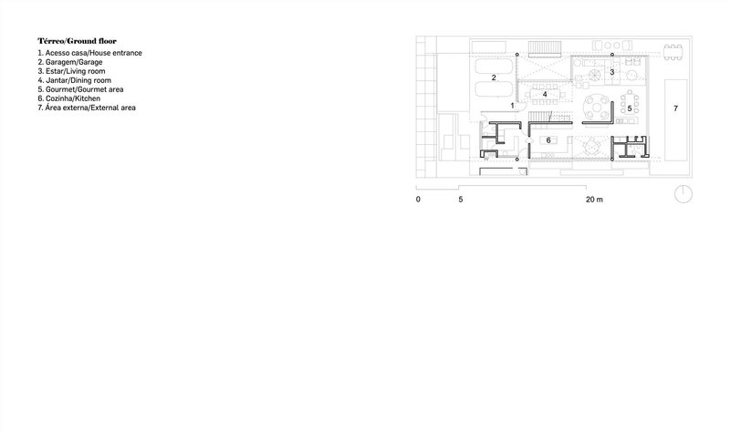
Ground Floor
The ground floor houses social areas, services, and garages. The spaces alternate between single and double-height ceilings, enhancing spatial dynamics.


Upper Floor
The upper floor features:
- A studio
- Three suites
- An intimate balcony area connecting the spaces

Attic
The attic offers:
- A private suite for the couple
- A garden terrace with a glass-bottom swimming pool, providing a unique architectural feature.

Materiality and Aesthetics
The design is defined by a minimal material palette of travertine stone and wood, creating a cohesive and timeless aesthetic. The stone-clad walls with restrained openings, combined with the wooden screens, result in a veiled, abstract appearance.


Landscaping and Outdoor Features
Landscaping enhances the home’s natural integration:
- Succulent flower beds adorn the access steps.
- Pandanus plants provide visual privacy for the dining room’s double-height window.
- Bamboo hedges and Podocarpus trees outline the property.
- The rooftop features black sheet metal planters with Plumeria rubra as the focal flora.



Furniture and Interiors
The interior design blends modernist and contemporary furniture, creating a sophisticated yet comfortable ambiance. The seamless connection between architecture and interior elements reflects the project’s thoughtful design philosophy.


The House of Facades by Marcos Bertoldi Arquitetos is a striking example of contemporary seaside living. Through a masterful balance of privacy, natural light, and materiality, it achieves both functionality and aesthetic harmony, offering its residents a tranquil and elegant retreat.




All Photographs are work of Eduardo Macarios
Popular Articles
Popular articles from the community
Gads Hill Early Learning Center by JGMA: Adaptive Reuse Shaping Community-Focused Educational Architecture
Adaptive reuse transforms fragmented structure into vibrant early learning center with playful façade, natural light, and community-focused sustainable design.
Solar Steam: A Climate-Responsive Architecture That Redefines the Monument
A climate-responsive memorial architecture that transforms heat, decay, and time into a living system reflecting humanity’s ecological impact.
Treehouse Apartment: A Warm Timber Interior Blending Craft, Play, and Contemporary Living
Warm timber apartment with integrated treehouse, combining natural materials, craftsmanship, and playful design to create a flexible, family-oriented living environment.
The Ken Roberts Memorial Delineation Competition (Krob)
As the most senior architectural drawing competition currently in operation anywhere in the world, it draws hundreds of entries each year, awarding the very best submissions in a series of medium-based categories.
Similar Reads
You might also enjoy these articles
Bamboo Housing Challenge 2026: Design Affordable, Sustainable Homes Using Bamboo
An international design competition by Bamboo U and IBUKU inviting architects and designers to reimagine affordable housing using bamboo — with the winning design built full-scale in Bali.
Computational Design & Education: Beegraphy Design Awards Introduces 7th Category (Featuring Jiyun's Innovative Approach)
Dive into Beegraphy’s 7th Design Awards category, where computational design meets education to create immersive, interactive learning tools, inspired by Jiyun’s work.
From Parametric Lighting to Urban Furniture: Join the 2nd Workshop in Beegraphy’s Computational Design Series
Dive into Cutting-Edge Design Techniques and Practical Applications with Industry Experts
Introducing Sphere by UNI: Pioneering a New Era in AEC Industry
Unlocking Global Potential with BIM and Agile Management
Explore Architecture Competitions
Discover active competitions in this discipline
The International Standard for Design Portfolios
The Global Benchmark for Architecture Dissertation Awards
The Global Benchmark for Graduation Excellence
Challenge to reimagine the Iron Throne
Comments (0)
Please login or sign up to add comments
No comments yet. Be the first to comment!