House Ona Argentina – A Contemporary Rural Retreat by Juliana Mondinalli and Franco Palacios Beltran
House Ona in Argentina by Mondinalli and Beltran reimagines rural architecture with sustainable design, red eucalyptus structure, and wild garden integration.
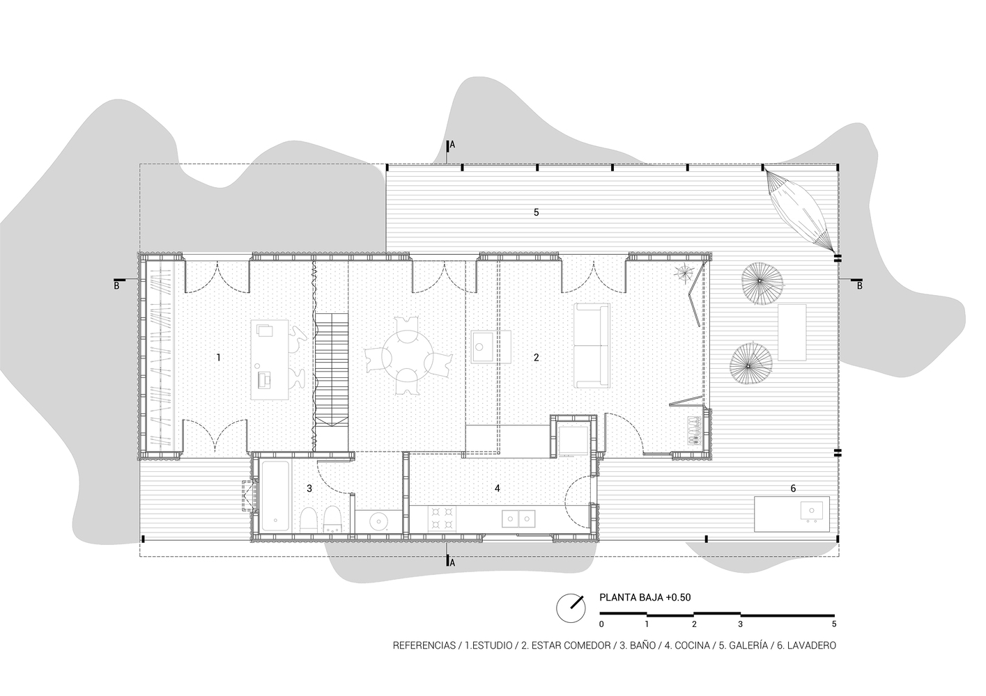
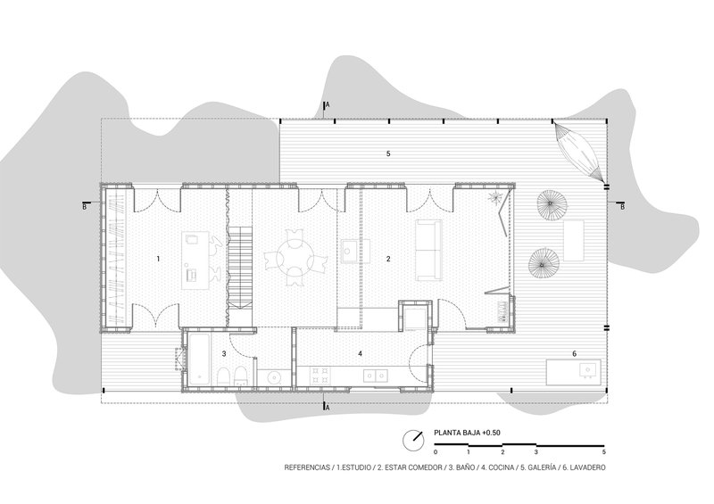
House Ona Argentina, designed by Juliana Mondinalli and Franco Palacios Beltran, is a 64 m² home located in Villa Garibaldi, near La Plata. Completed in 2022, this modest yet expressive residence is a contemporary reinterpretation of rural architecture, blending everyday rituals with an eco-conscious design approach. The architects envisioned a refuge that celebrates rain, wind, and landscape, creating a home that interacts closely with its surroundings rather than imposing itself on the land.




Concept and Inspiration
House Ona emerged from a combination of personal memories, travels, and everyday experiences. It reflects the desire for simple pleasures: listening to rain on a metal roof, enjoying mate under a shaded porch, and watching moonlight from a window. Situated in the floodplain of the El Pescado Stream, the last unpolluted watercourse of the region, the house respects its ecological setting by minimizing land disturbance and preserving the natural drainage and air quality of the site.



Rural Typology and Architectural Language
The design draws inspiration from traditional ranches and the historic "chorizo" houses of Argentina, particularly the use of porches as transitional spaces. The "C"-shaped porch of House Ona shields the home from heavy rains and the intense summer sun, while the northeast porch opens to the wild garden, providing a serene threshold between interior and exterior living.


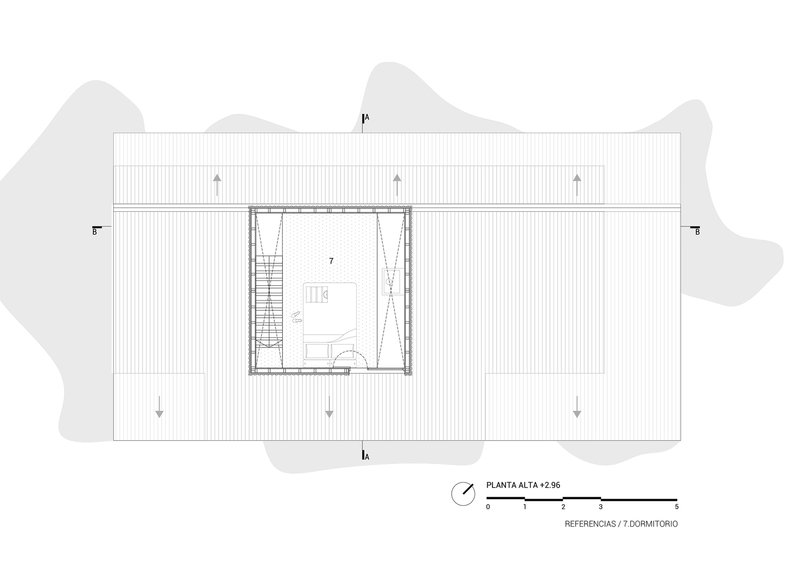
The form is defined by an asymmetrical gabled roof – one slope extends outward to form the protective porch, while the other rises to accommodate a mezzanine. While the exterior is intentionally austere, the interior is warm, bright, and flexible, organized around an open living area with kitchen and bathroom located in the southeast wing.


Materiality and Structure
Built primarily from red eucalyptus, the structure and interior finishes reflect a commitment to locally sourced, durable materials. The house is elevated on concrete pilings, rising 50 cm above ground level, which both reduces flood risk and protects the surrounding ecosystem. The use of phenolic wood panels enhances the tactile quality of the interiors, bringing warmth to the compact spaces.

A metal roof, chosen for its practicality and cultural symbolism, recalls the riverside homes of the delta regions of Berisso and Ensenada. During heavy rain, the sound of water transforms the house into an almost poetic vessel, like a floating raft connected to the natural cycles of its environment.


Landscape and Environment
Flux Estudio collaborated on the landscape design, ensuring that pre-existing vegetation, including bulrushes, grasses, and a black acacia, was preserved. Pathways and open spaces were strategically placed to enhance the experience of the surrounding landscape. The wild garden complements the house’s restrained design, reinforcing its dialogue with the natural terrain.


Construction and Community
The construction of House Ona was completed in just three months using local labor, which optimized resources and strengthened ties with the community. This collaborative approach ensured not only efficiency but also a sense of ownership and shared craftsmanship. The house was named "Ona" after the homeowners’ cat, who quickly made the space its own, symbolizing the house’s welcoming and adaptable nature.




Living Experience
With its compact footprint, House Ona offers a flexible living space where boundaries between inside and outside blur. A theater curtain is cleverly used to divide or open up the interior depending on the needs of daily life. The home emphasizes simplicity, connection to the elements, and the joy of everyday living, embodying a contemporary way of engaging with water, climate, and the landscape.



House Ona Argentina by Juliana Mondinalli and Franco Palacios Beltran is a thoughtful architectural response to both its environment and the rhythms of everyday life. Through its minimal impact construction, reinterpretation of rural forms, and celebration of rain and landscape, the house stands as a model for sustainable and emotionally resonant living.



All the photographs are works of Luis Barandiaran
Popular Articles
Popular articles from the community
A Contemporary Take on Iranian Residential Architecture
A modern interior design in Mashhad that reinterprets brick, light, and spatial flow to create a warm, contemporary residential architecture.
Louis Malle Cinema: A Limestone Cultural Landmark Revitalizing Community Life in Prayssac
Limestone cinema extension with public forecourt, blending heritage and modern design to create flexible cultural spaces and strengthen community interaction.
The Ken Roberts Memorial Delineation Competition (Krob)
As the most senior architectural drawing competition currently in operation anywhere in the world, it draws hundreds of entries each year, awarding the very best submissions in a series of medium-based categories.
On the Brooks House by Monsoon Collective – A Contemporary Kerala Home Rooted in Tradition
Kerala home blending tradition and modernity with water-inspired design, brick architecture, courtyard planning, and sustainable rainwater harvesting strategies.
Similar Reads
You might also enjoy these articles
Bamboo Housing Challenge 2026: Design Affordable, Sustainable Homes Using Bamboo
An international design competition by Bamboo U and IBUKU inviting architects and designers to reimagine affordable housing using bamboo — with the winning design built full-scale in Bali.
Computational Design & Education: Beegraphy Design Awards Introduces 7th Category (Featuring Jiyun's Innovative Approach)
Dive into Beegraphy’s 7th Design Awards category, where computational design meets education to create immersive, interactive learning tools, inspired by Jiyun’s work.
From Parametric Lighting to Urban Furniture: Join the 2nd Workshop in Beegraphy’s Computational Design Series
Dive into Cutting-Edge Design Techniques and Practical Applications with Industry Experts
Introducing Sphere by UNI: Pioneering a New Era in AEC Industry
Unlocking Global Potential with BIM and Agile Management
Explore Architecture Competitions
Discover active competitions in this discipline
The International Standard for Design Portfolios
The Global Benchmark for Architecture Dissertation Awards
The Global Benchmark for Graduation Excellence
Challenge to reimagine the Iron Throne
Comments (0)
Please login or sign up to add comments
No comments yet. Be the first to comment!