Introduction to School Building Renovation Architecture
This article explores the architectural renovation of Sun'ao Primary School in China, focusing on preserving history while enhancing functionality.
Renovating educational facilities presents unique challenges and opportunities for architects. A prime example of innovative school building renovation architecture is the transformation and regeneration of Sun'ao Primary School in Shaoxing, China. This project, executed by ZAOZUO ARCHITECTURE STUDIO, demonstrates how a dilapidated school can be revitalized while maintaining its historical essence and adapting to modern educational needs.






Overview of Sun'ao Primary School's Transformation
Sun'ao Primary School, situated in the mountains of Wangtan Town, encompasses an area of 6,700 square meters. Before the renovation, the school had been abandoned and was largely in ruins. The regeneration project, led by architects Shen Yue and Dai Wenzhu, focused on preserving the site’s original structures and adapting the school to serve as a youth center and research camp.






The Architectural Strategy
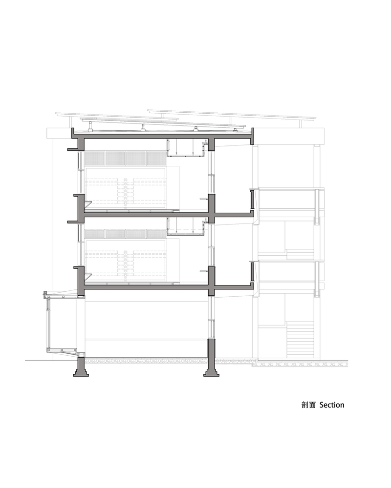
The renovation strategy involved a meticulous assessment of the existing structures, with a commitment to preserve as much of the original materials and design as possible. The main building, foundational site, and natural plantings were kept intact, showcasing the project's dedication to natural preservation.






Building Modifications and Functional Adjustments
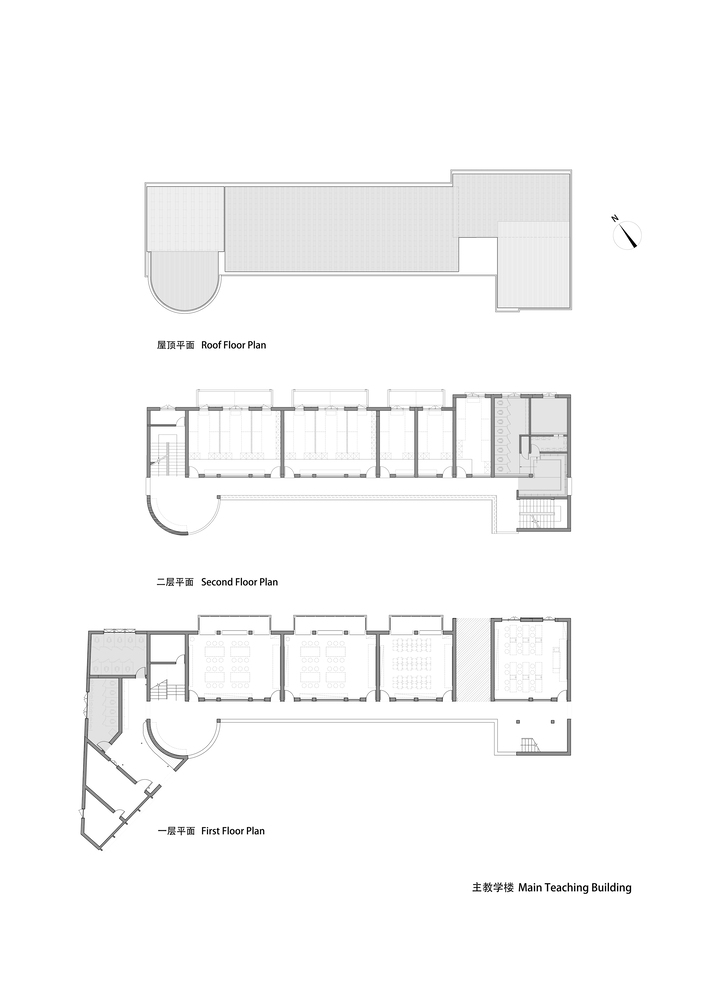
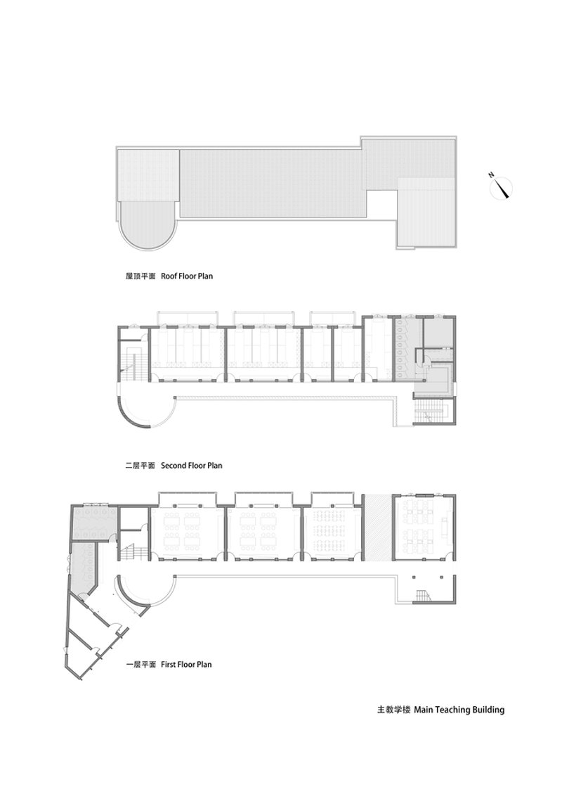
- Main Building Renovation: Modifications were limited to essential updates like the roof, bathrooms, and some doors and windows to ensure functionality and safety. The transformation included converting a classroom into the main entrance and adding a wedge-shaped corridor that seamlessly connects the interior and exterior spaces.
- Adaptive Reuse and New Constructions: The site was reorganized into three terraces, maintaining their historical relationships while introducing a new fourth terrace to create an entrance plaza. A miniature attic was constructed to serve as a focal point, facilitating the integration of the old and new structures.





Design Features and Innovations
Emphasizing Openness and Connectivity
Each building was redesigned to ensure compact connectivity, with large open spaces enhancing the interaction between different areas. Dense steps and ramps facilitated movement across the terraced landscape, embodying a blend of openness and structured design.


Introduction of a Big Greenhouse Canopy
A notable innovation in the project was the introduction of a "big greenhouse canopy" made of laminated wood and PC panels. This structure was designed to be light and uplifting, creating a semi-outdoor space that serves as a transitional area and a shelter for outdoor activities.




Impact on the Community and Educational Experience
Revitalizing a Community Landmark
Sun'ao Primary School has been more than just an educational facility; it has been a community landmark. The renovation breathed new life into the school, transforming it into a hub for extracurricular research and learning while preserving the memories cherished by the local community.





Sustainable Architecture and Local Involvement
The project's approach to sustainability was evident in the use of local materials and labor, minimizing the environmental footprint and boosting the local economy. Engaging local craftsmen, many of whom were former students of the school, added a personal touch to the renovation, ensuring that the new design remained true to its roots.


The transformation of Sun'ao Primary School by ZAOZUO ARCHITECTURE STUDIO is a testament to the potential of school building renovation architecture to preserve heritage while adapting to contemporary needs. This project not only serves as a model for similar architectural endeavors but also enriches the educational landscape by providing a dynamic, historical, and functional learning environment.



All photographs are work of Qingshan Wu
Popular Articles
Popular articles from the community
Louis Malle Cinema: A Limestone Cultural Landmark Revitalizing Community Life in Prayssac
Limestone cinema extension with public forecourt, blending heritage and modern design to create flexible cultural spaces and strengthen community interaction.
Solar Steam: A Climate-Responsive Architecture That Redefines the Monument
A climate-responsive memorial architecture that transforms heat, decay, and time into a living system reflecting humanity’s ecological impact.
On the Brooks House by Monsoon Collective – A Contemporary Kerala Home Rooted in Tradition
Kerala home blending tradition and modernity with water-inspired design, brick architecture, courtyard planning, and sustainable rainwater harvesting strategies.
Inverted Architecture Installation by Studio Link-Arc: Exploring the Intersection of Architecture and Living Organisms
Inverted Architecture Installation by Studio Link-Arc blends mycelium, sustainability, inverted design, ecological cycles, and urban adaptive architecture in Shenzhen.
Similar Reads
You might also enjoy these articles
Bamboo Housing Challenge 2026: Design Affordable, Sustainable Homes Using Bamboo
An international design competition by Bamboo U and IBUKU inviting architects and designers to reimagine affordable housing using bamboo — with the winning design built full-scale in Bali.
Computational Design & Education: Beegraphy Design Awards Introduces 7th Category (Featuring Jiyun's Innovative Approach)
Dive into Beegraphy’s 7th Design Awards category, where computational design meets education to create immersive, interactive learning tools, inspired by Jiyun’s work.
From Parametric Lighting to Urban Furniture: Join the 2nd Workshop in Beegraphy’s Computational Design Series
Dive into Cutting-Edge Design Techniques and Practical Applications with Industry Experts
Introducing Sphere by UNI: Pioneering a New Era in AEC Industry
Unlocking Global Potential with BIM and Agile Management
Explore Architecture Competitions
Discover active competitions in this discipline
The International Standard for Design Portfolios
The Global Benchmark for Architecture Dissertation Awards
The Global Benchmark for Graduation Excellence
Challenge to design public laboratory
Comments (0)
Please login or sign up to add comments
No comments yet. Be the first to comment!