Ligben Library – A New Learning Centre
A future-ready library where inclusive design, community learning, and digital media converge in one architectural experience.
As digital media and e-books continue to dominate the educational landscape, the role of libraries is being redefined. Yet, the need for a well-designed library persists—not just as a place to access knowledge but as an architectural cornerstone that fosters connection, focus, and inspiration.
The Ligben Library project by Edwin Yu, a shortlisted entry in Libgen 2019, explores this evolving identity through architectural innovation. Rooted in the typology of the Victorian library, the project brings forward a reimagined space that embraces multimedia, interaction, and solitude under one roof.


This proposal argues that a good library requires a diversity of architectural spaces that accommodate different modes of learning. From quiet study zones to collaborative and interactive learning areas, every space is equally vital. The Ligben Library does not prioritize one form of media over another—printed books and digital resources coexist harmoniously, affirming that architecture must be inclusive of all tools for learning.
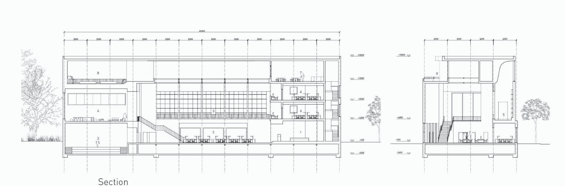
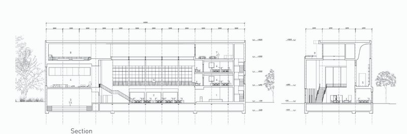
The design is structured with a clear spatial hierarchy:
- Silent Study Rooms allow for deep focus,
- Main Reading Halls and Group Study Spaces encourage discussion and collaboration,
- Interactive Learning Areas foster creativity and engagement through events and multimedia.

One of the project’s key strengths lies in its internal organization. The central stair acts not only as circulation but as a symbolic axis—guiding visitors into zones of knowledge while maintaining a sense of spatial drama and openness. Vertical voids and light wells enhance the sensory experience, making the act of learning feel immersive and communal.
Notably, the project incorporates thoughtful elements such as:
- A roof garden and deck offering informal reading and relaxation,
- A multi-level main collection with visually engaging shelves,
- Custom study desks designed to support posture and social interaction.

By integrating these features, the Ligben Library becomes more than a storage of information—it is an environment of architectural empathy and educational empowerment. In conclusion, the Ligben Library stands as a prototype for future-ready library architecture, where design adapts to evolving educational needs without compromising on serenity, spatial quality, or human connection.


Popular Articles
Popular articles from the community
Fifth NRE Jazz Club – De Bever Architecten: Eindhoven’s Revitalized Cultural Hub
Historic gas factory transformed into Fifth NRE Jazz Club blending modern sustainability, jazz culture, dining, and heritage architecture seamlessly.
Free Architecture Competitions You Can Enter Right Now
No entry fees, real prizes. Here are the best free architecture competitions open for submissions in 2026.
Solar Steam: A Climate-Responsive Architecture That Redefines the Monument
A climate-responsive memorial architecture that transforms heat, decay, and time into a living system reflecting humanity’s ecological impact.
Gads Hill Early Learning Center by JGMA: Adaptive Reuse Shaping Community-Focused Educational Architecture
Adaptive reuse transforms fragmented structure into vibrant early learning center with playful façade, natural light, and community-focused sustainable design.
Similar Reads
You might also enjoy these articles
The Ken Roberts Memorial Delineation Competition (Krob)
As the most senior architectural drawing competition currently in operation anywhere in the world, it draws hundreds of entries each year, awarding the very best submissions in a series of medium-based categories.
Waterfront Redevelopment and Urban Revitalization in Mumbai: Forging a New Dawn for Darukhana
A transformative waterfront redevelopment project reimagining Darukhana’s shipbreaking heritage into an inclusive urban future.
OUT-OF-MAP: A Call for Postcards on Feminist Narratives of Public Space
Rhizoma Design and Research Lab invites artists, designers, architects, researchers, and students to reflect on how feminist perspectives can reshape public space. Selected works will be exhibited in Barcelona, October 2026. Submissions open until 15 April 2026.
Documentation Work on Buddhist Wooden Temple
Architectural syncretism and cultural hybridity: A comparative study of the Buddhist temples in Chattogram Hill tracks
Explore Educational Building Competitions
Discover active competitions in this discipline
The Global Benchmark for Architecture Dissertation Awards
Challenge to design locus for the upliftment of human rights
Challenge to design a learning and healing center
Challenge to design public laboratory
Comments (0)
Please login or sign up to add comments
No comments yet. Be the first to comment!