Metamorphosis 70’s Bungalow Oss: A Model of Sustainable Home Renovation
Revitalizing a 70s bungalow in Oss with sustainable practices, merging indoor and outdoor living seamlessly.
In the serene environs of Oss, The Netherlands, a 1970s bungalow has undergone a transformative sustainable renovation under the visionary guidance of Bas Termeer Architect. This project, spanning an area of 475 m² and vividly captured by photographer Merle van de Veerdonk, is a testament to the harmonious integration of modern sustainability practices with meticulous aesthetic rejuvenation.




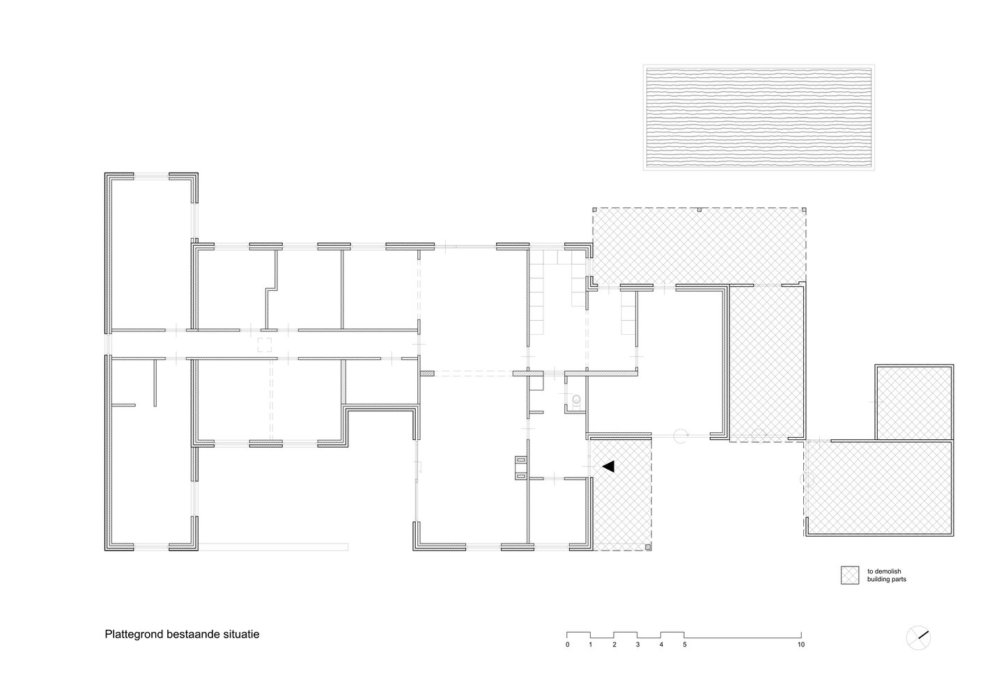
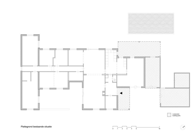
Reviving the Lost Qualities
Originally constructed in 1971, the bungalow had undergone various modifications that masked its original qualities. Tasked with reviving the building, the renovation focused on achieving energy neutrality, enhancing the connection between the living spaces and the expansive garden, and undergoing a complete aesthetic overhaul.





A Strategic Approach to Volume and Space
The architectural intervention began by stripping away non-original extensions, further emphasizing the irregularity of the existing structure through deliberate extensions that mimic the original's disjointed contours. This created enclosed outdoor spaces, defined by a sweeping roof that extends to form various outdoor functionalities—from carports to pergolas—while incorporating mature trees through strategic openings.



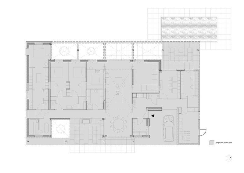
Harmonizing Indoor and Outdoor Living
The renovation introduces a raised section at the heart of the home, accentuating the central kitchen-diner with ample daylight and views of the surrounding trees. This central space acts as a conduit, seamlessly connecting the front and rear gardens and blurring the boundaries between indoor and outdoor living. Integrated verandas and the strategic layout offer a multitude of options for enjoying the outdoors, irrespective of the time of day.


Materiality in Dialogue with Nature
In keeping with the goal of natural integration, the facades are clad in vertical pre-greyed, thermally preserved wooden planks, creating a subtle dialogue with the lush green surroundings. The use of natural-colored oak for the structural columns, treated to prevent graying, introduces a lasting contrast against the grey backdrop. The addition of a brown natural stone-clad outdoor fireplace further complements the architectural ensemble, enhancing the bungalow’s connection to its environment.


A Collaborative Construction Process
The renovation was characterized by a collaborative approach, with the client actively participating in the procurement of building materials to manage costs effectively. A team of skilled professionals worked closely with the client and architect Bas Termeer to realize this ambitious renovation, ensuring that every detail aligns with the overarching vision of sustainability and aesthetic refinement.


A Blueprint for Sustainable Renovation
The metamorphosis of this 1970s bungalow in Oss by Bas Termeer Architect stands as a blueprint for sustainable home renovation, showcasing how energy efficiency, aesthetic renewal, and a deep connection with the natural environment can be achieved in harmony. This project not only revitalizes a dated structure but also sets a new standard for sustainable living in contemporary residential design.








All photographs are work of Merle van de Veerdonk
Popular Articles
Popular articles from the community
Treehouse Apartment: A Warm Timber Interior Blending Craft, Play, and Contemporary Living
Warm timber apartment with integrated treehouse, combining natural materials, craftsmanship, and playful design to create a flexible, family-oriented living environment.
An Miên Lumière Cafe by xưởng xép, Ho Chi Minh City, Vietnam
An industrial-inspired café where layered steel and warm light create a dynamic, immersive environment shaped by reflection, depth, and perception.
Louis Malle Cinema: A Limestone Cultural Landmark Revitalizing Community Life in Prayssac
Limestone cinema extension with public forecourt, blending heritage and modern design to create flexible cultural spaces and strengthen community interaction.
The Ken Roberts Memorial Delineation Competition (Krob)
As the most senior architectural drawing competition currently in operation anywhere in the world, it draws hundreds of entries each year, awarding the very best submissions in a series of medium-based categories.
Similar Reads
You might also enjoy these articles
The Ken Roberts Memorial Delineation Competition (Krob)
As the most senior architectural drawing competition currently in operation anywhere in the world, it draws hundreds of entries each year, awarding the very best submissions in a series of medium-based categories.
Waterfront Redevelopment and Urban Revitalization in Mumbai: Forging a New Dawn for Darukhana
A transformative waterfront redevelopment project reimagining Darukhana’s shipbreaking heritage into an inclusive urban future.
OUT-OF-MAP: A Call for Postcards on Feminist Narratives of Public Space
Rhizoma Design and Research Lab invites artists, designers, architects, researchers, and students to reflect on how feminist perspectives can reshape public space. Selected works will be exhibited in Barcelona, October 2026. Submissions open until 15 April 2026.
Documentation Work on Buddhist Wooden Temple
Architectural syncretism and cultural hybridity: A comparative study of the Buddhist temples in Chattogram Hill tracks
Explore Architecture Competitions
Discover active competitions in this discipline
The International Standard for Design Portfolios
The Global Benchmark for Architecture Dissertation Awards
The Global Benchmark for Graduation Excellence
Challenge to reimagine the Iron Throne
Comments (0)
Please login or sign up to add comments
No comments yet. Be the first to comment!