Modern Daycare Architecture in France: A Vibrant Crèche by Dominique Coulon & Associés
A sculptural, light-filled daycare in France that redefines modern childcare architecture through color, form, and spatial empathy.
Sculptural Form Meets Functional Design in a French Childcare Center
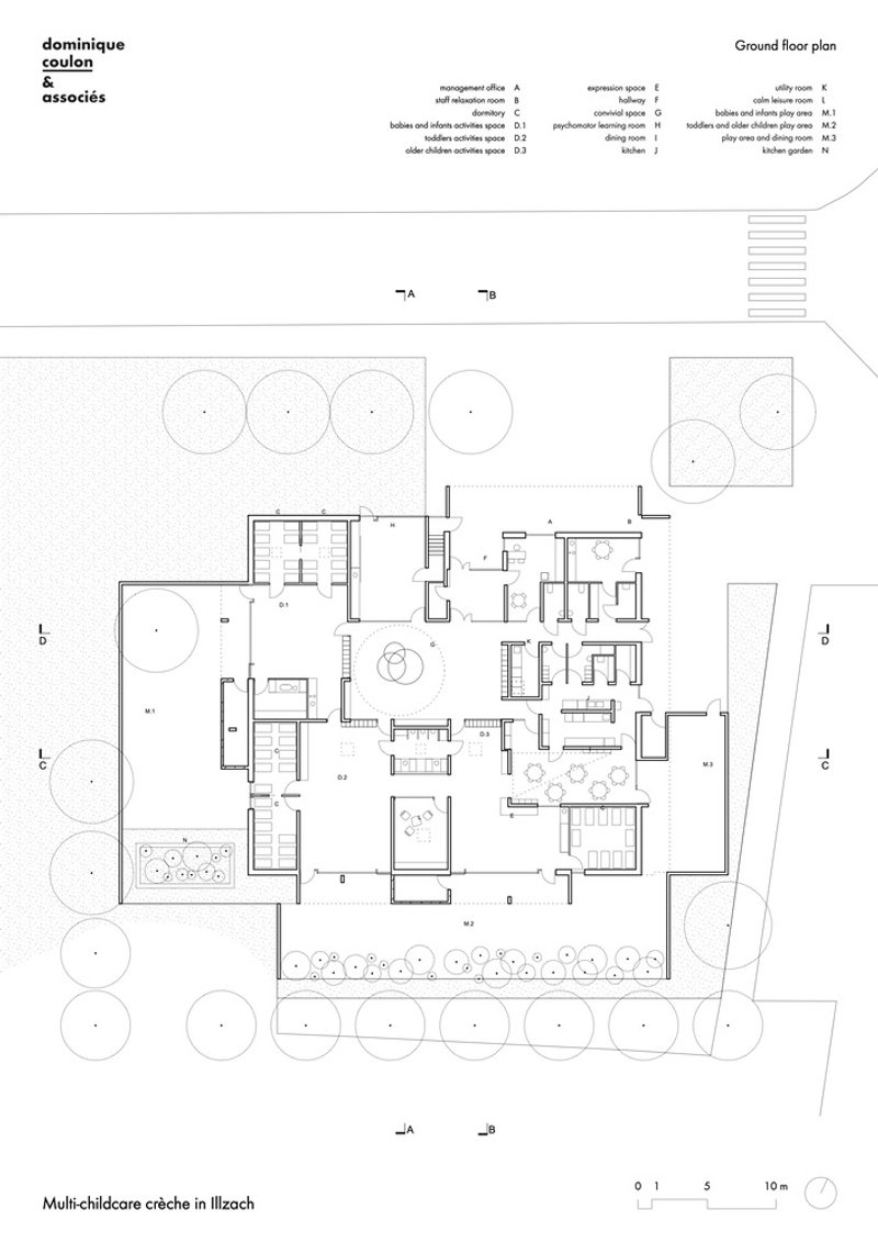
At the edge of a French town, the Multi-Childcare Crèche by Dominique Coulon & Associés redefines modern daycare architecture through a seamless blend of bold aesthetics, functionality, and a deep understanding of children's developmental needs. With a striking sculptural presence and carefully articulated spatial flow, this 705-square-meter structure becomes a civic and emotional landmark for both children and their caregivers.



The architecture combines form, light, and color into an immersive environment that supports learning, socialization, and well-being. Its vivid palette and spatial variety create a setting that is visually stimulating yet profoundly comforting—a design philosophy that elevates early childhood spaces beyond the ordinary.



A Landmark of Color and Form
Seen from the outside, the daycare center resembles a piece of public art. Angular and expressive, its pink and orange base appears playful yet grounded. These vibrant elevations bring joy to the neighboring dwellings, adding a sense of visual excitement to the urban setting.



Above this colorful base, crisp white geometric volumes rise into the sky, their outlines sharply contrasted against the blue. These sculptural elements contain double-height spaces that punctuate the ground floor and expand the children's spatial experience beyond the typical boxy classroom.



Architecture That Reflects the Energy of Early Childhood
At its core, the project is about creating a space that understands and responds to children’s needs. The courts and gardens are more than outdoor play areas—they are protected cocoons that allow children to explore safely while staying connected to nature. Sheltered from the roads and wind, these outdoor spaces mirror the energy, curiosity, and freedom of movement that defines early childhood.


Inside, the building offers a dynamic color environment. Natural light flows through generous glazed openings, especially in the double-height hallway, which becomes the symbolic and spatial heart of the crèche. Painted in a warm vermilion orange, the hallway reaches up to a skylight filled with blue circular patterns, bringing an emotional and sensory richness into daily routines.


Flexible Space for Learning and Imagination
Unlike traditional designs that rely on corridors, this crèche uses a central hallway to connect every part of its program. This space becomes a social hub—one that can host performances, seasonal events, or moments of gathering between parents and staff. The design fosters openness and adaptability, encouraging flexible use without sacrificing intimacy or order.


The classrooms for toddlers and older children are strategically placed side by side, fostering inclusion and age-specific care. Large south-facing windows allow natural light to flood the interiors, while the building’s orientation and materials ensure that spaces remain well-ventilated and thermally comfortable throughout the seasons.



A New Paradigm in Modern Daycare Architecture
Dominique Coulon & Associés have crafted a forward-thinking approach to modern daycare architecture—where function meets creativity, and where every design decision is rooted in empathy for young users. From color psychology to spatial play, from environmental responsiveness to social connectivity, the Multi-Childcare Crèche stands as an example of how architecture can uplift the earliest stages of life.



By transforming a daycare into a meaningful public space, this project challenges conventional ideas about what early learning environments should be. It proposes a new model—one that is inclusive, expressive, and profoundly human.


All Photographs are works of Eugeni Pons
Popular Articles
Popular articles from the community
Inverted Architecture Installation by Studio Link-Arc: Exploring the Intersection of Architecture and Living Organisms
Inverted Architecture Installation by Studio Link-Arc blends mycelium, sustainability, inverted design, ecological cycles, and urban adaptive architecture in Shenzhen.
On the Brooks House by Monsoon Collective – A Contemporary Kerala Home Rooted in Tradition
Kerala home blending tradition and modernity with water-inspired design, brick architecture, courtyard planning, and sustainable rainwater harvesting strategies.
Atelier Macri Concept Store Interior Design by CASE-REAL
Atelier Macri store features a "ko" counter, walnut wood details, cork displays, blending retail, gallery, and seamless customer experiences.
Gads Hill Early Learning Center by JGMA: Adaptive Reuse Shaping Community-Focused Educational Architecture
Adaptive reuse transforms fragmented structure into vibrant early learning center with playful façade, natural light, and community-focused sustainable design.
Similar Reads
You might also enjoy these articles
Bamboo Housing Challenge 2026: Design Affordable, Sustainable Homes Using Bamboo
An international design competition by Bamboo U and IBUKU inviting architects and designers to reimagine affordable housing using bamboo — with the winning design built full-scale in Bali.
Computational Design & Education: Beegraphy Design Awards Introduces 7th Category (Featuring Jiyun's Innovative Approach)
Dive into Beegraphy’s 7th Design Awards category, where computational design meets education to create immersive, interactive learning tools, inspired by Jiyun’s work.
From Parametric Lighting to Urban Furniture: Join the 2nd Workshop in Beegraphy’s Computational Design Series
Dive into Cutting-Edge Design Techniques and Practical Applications with Industry Experts
Introducing Sphere by UNI: Pioneering a New Era in AEC Industry
Unlocking Global Potential with BIM and Agile Management
Explore Architecture Competitions
Discover active competitions in this discipline
The International Standard for Design Portfolios
The Global Benchmark for Architecture Dissertation Awards
The Global Benchmark for Graduation Excellence
Challenge to reimagine the Iron Throne
Comments (0)
Please login or sign up to add comments
No comments yet. Be the first to comment!