Modern House Extension Design: The PAYZ House Transformation by Alors Studio
Exploring the PAYZ House extension by Alors Studio in Payzac, France, showcasing modern design's harmony with nature and improved home functionality.
The trend of extending and modernizing homes has become increasingly popular among homeowners looking to adapt their living spaces to new needs without moving. The PAYZ House project in Payzac, France, exemplifies a successful modern house extension design that enhances the functionality of the home while respecting its original architecture and natural surroundings.




The Vision Behind PAYZ House
Situated in a serene village in the south of Ardèche, the PAYZ House, originally built in 2007, stands as a modern insertion in a landscape dominated by traditional construction. This extension project by Alors Studio aimed to transform the holiday home into a more functional, everyday living space by connecting independent units and adding new living areas, all while maintaining a harmonious relationship with the breathtaking natural landscape.




Design Strategies for a Seamless Extension
Creating Connections
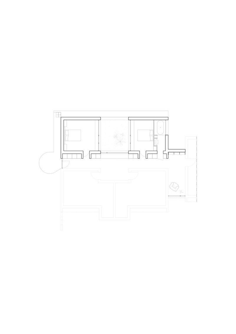
The key challenge was to connect the three separate units of the house into a cohesive whole. The solution came in the form of a long corridor, establishing a new entrance and linking the main existing blocks. This innovative distribution strategy not only enhanced the home's functionality but also introduced additional interior spaces, enriching the living experience.




Integrating with Nature
PAYZ House is distinguished by its oversized glass windows and concrete facades that reflect the rocky surroundings and the tradition of dry stone walls. The extension continues this dialogue with nature by introducing new perspectives and creating intimate atmospheres. Wide openings frame the landscape, turning formerly overlooked views into focal points of the interior design.




Fostering Intimacy and Interiority
Unlike the original structure's outward-facing orientation, the extension looks backward, offering a new form of interiority. It opens up to different panoramas, establishing a more intimate connection with the property's natural features. The design articulates bedrooms around a mineral patio, creating contemplative spaces that encourage residents to engage with their environment in a more profound way.




Materiality and Aesthetics
The use of rough concrete surfaces in the extension is balanced with wooden elements, introducing warmth to the spaces. This material choice ensures continuity with the existing structure while allowing the new additions to stand out subtly. The incorporation of built-in wooden benches and colorful sheers adds layers of texture and color, enriching the overall aesthetic.




Redefining Home with Modern Extensions
The PAYZ House by Alors Studio showcases the transformative potential of modern house extension design. By thoughtfully addressing the needs for connectivity and functionality, and by engaging in a respectful dialogue with the surrounding landscape, this project serves as a model for homeowners seeking to adapt and expand their living spaces. Modern extensions like PAYZ House not only enhance the usability and aesthetics of a home but also contribute to a sustainable approach to living, where existing structures are valued and revitalized for future generations.





All the photographs are work of Anne-Sophie Soudoplatoff
Popular Articles
Popular articles from the community
Fifth NRE Jazz Club – De Bever Architecten: Eindhoven’s Revitalized Cultural Hub
Historic gas factory transformed into Fifth NRE Jazz Club blending modern sustainability, jazz culture, dining, and heritage architecture seamlessly.
A Contemporary Take on Iranian Residential Architecture
A modern interior design in Mashhad that reinterprets brick, light, and spatial flow to create a warm, contemporary residential architecture.
Treehouse Apartment: A Warm Timber Interior Blending Craft, Play, and Contemporary Living
Warm timber apartment with integrated treehouse, combining natural materials, craftsmanship, and playful design to create a flexible, family-oriented living environment.
Gads Hill Early Learning Center by JGMA: Adaptive Reuse Shaping Community-Focused Educational Architecture
Adaptive reuse transforms fragmented structure into vibrant early learning center with playful façade, natural light, and community-focused sustainable design.
Similar Reads
You might also enjoy these articles
Bamboo Housing Challenge 2026: Design Affordable, Sustainable Homes Using Bamboo
An international design competition by Bamboo U and IBUKU inviting architects and designers to reimagine affordable housing using bamboo — with the winning design built full-scale in Bali.
Computational Design & Education: Beegraphy Design Awards Introduces 7th Category (Featuring Jiyun's Innovative Approach)
Dive into Beegraphy’s 7th Design Awards category, where computational design meets education to create immersive, interactive learning tools, inspired by Jiyun’s work.
From Parametric Lighting to Urban Furniture: Join the 2nd Workshop in Beegraphy’s Computational Design Series
Dive into Cutting-Edge Design Techniques and Practical Applications with Industry Experts
Introducing Sphere by UNI: Pioneering a New Era in AEC Industry
Unlocking Global Potential with BIM and Agile Management
Explore Architecture Competitions
Discover active competitions in this discipline
The International Standard for Design Portfolios
The Global Benchmark for Architecture Dissertation Awards
The Global Benchmark for Graduation Excellence
Challenge to reimagine the Iron Throne
Comments (0)
Please login or sign up to add comments
No comments yet. Be the first to comment!