Modern Restaurant Design: A Look Inside Hay Sushi by Odami
Hay Sushi Restaurant in Toronto blends industrial design with refined materials, offering an intimate and sophisticated dining experience.
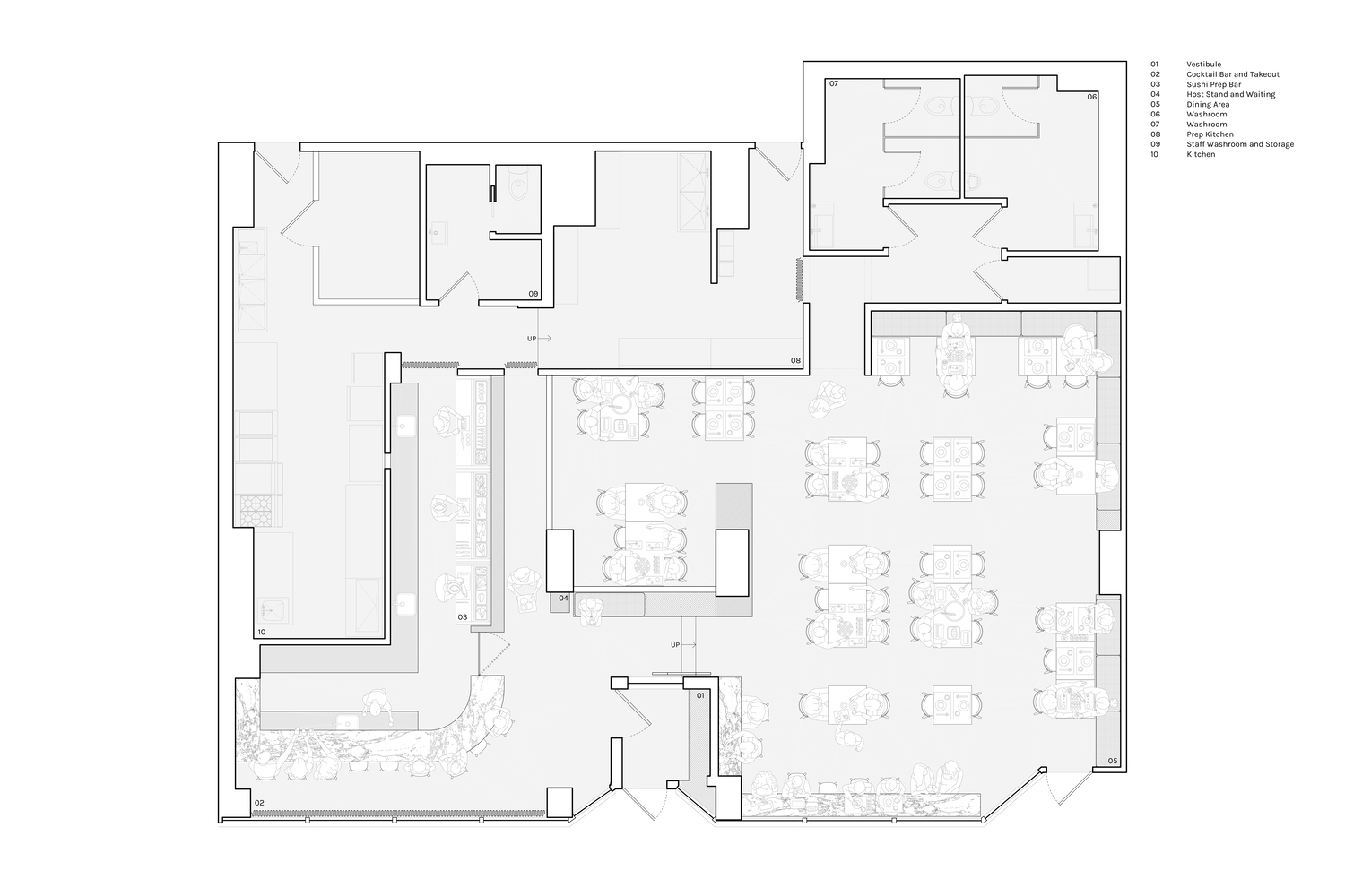
Located just steps away from Toronto's bustling Yonge and Sheppard intersection, Hay Sushi is a modern neighborhood eatery offering elevated Japanese cuisine in a relaxed dining atmosphere. For its new location, Odami Architects was tasked with reimagining the restaurant’s Spring Garden space, doubling its previous capacity while maintaining the core essence of its brand. The design translates the quiet confidence of the restaurant’s menu into a sophisticated interior that balances warmth, comfort, and a sense of familiarity.


Reclaiming the Industrial Space
Hay Sushi’s new 2,500-square-foot site is located in the ground-floor podium of a 1990s residential tower. Over the years, DIY renovations had obscured its inherent street presence and spatial qualities. Odami stripped away these layers to uncover the original industrial structure of the space, characterized by the heaviness of concrete and an abundance of natural light, thanks to restored floor-to-ceiling windows. The design embraces this raw, built environment, combining it with material layers that bring both comfort and surprise.


Design Elements: Materials and Geometry
The design philosophy of Hay Sushi merges the space’s industrial roots with a refined, inviting atmosphere. A warm palette of terracotta-colored tiles, sand-toned leather, and white oak furniture softens the heavy concrete structure. The strong, square geometry of the columns and beams interacts with circular reveals, subtly arched doorways, and glowing sphere pendants. The rounded cocktail bar further emphasizes the contrast between solidity and fluidity. Transparent and reflective materials, such as glass blocks, high-gloss epoxy flooring, and stainless steel millwork, are incorporated to create light, texture, and movement across the space, enhancing the industrial backdrop.


Creating a Flexible, Comfortable Dining Experience
The expansive layout of Hay Sushi incorporates subtle architectural interventions to create flexibility and ease of navigation. The raised dining room features exposed ceilings, creating a lofty, expansive atmosphere. The lowered canopy and dinner bar at the street level break this scale, drawing customers’ attention and enhancing the sense of intimacy. Cream-colored banquettes and floors recede into the walls, visually elevating two central glass-block partitions, which serve as both a focal point and a divider for the service area.

A seamless transition from the high-traffic entryway leads to the curved cocktail bar, which is wrapped in flecked marble and textured porcelain tiles. This bar provides a generous yet intimate arrival point for guests, offering a welcoming atmosphere. Behind it, a sushi prep area serves as the heart of the restaurant, with the chef-activated space on display for customers to observe the preparation of their meal.


A Dialogue Between Old and New
Odami’s design at Hay Sushi is marked by a commitment to contextually sensitive design and urban renewal. The architectural gestures, though subtle, create an honest and poignant dialogue with the space's original industrial elements. This approach demonstrates the power of simplicity and restraint, proving that sometimes the quietest interventions can make the most significant impact.

The design of Hay Sushi by Odami Architects perfectly balances modern aesthetics with the restaurant's established brand identity. The raw, industrial elements are juxtaposed with sophisticated finishes, creating a space that is both visually dynamic and comfortable for diners. The restaurant’s layout emphasizes flexibility, intimacy, and warmth, making it an ideal setting for enjoying high-quality Japanese cuisine in a contemporary, inviting environment.

All Photographs are work of Kurtis Chen
Popular Articles
Popular articles from the community
Solar Steam: A Climate-Responsive Architecture That Redefines the Monument
A climate-responsive memorial architecture that transforms heat, decay, and time into a living system reflecting humanity’s ecological impact.
Fifth NRE Jazz Club – De Bever Architecten: Eindhoven’s Revitalized Cultural Hub
Historic gas factory transformed into Fifth NRE Jazz Club blending modern sustainability, jazz culture, dining, and heritage architecture seamlessly.
Free Architecture Competitions You Can Enter Right Now
No entry fees, real prizes. Here are the best free architecture competitions open for submissions in 2026.
Split House: A Compact Urban Home Blending Privacy, Light, and Flexible Living in Japan
Compact Japanese home featuring DOMA space, flexible café potential, passive lighting, privacy zoning, and sustainable urban living design.
Similar Reads
You might also enjoy these articles
The Ken Roberts Memorial Delineation Competition (Krob)
As the most senior architectural drawing competition currently in operation anywhere in the world, it draws hundreds of entries each year, awarding the very best submissions in a series of medium-based categories.
Waterfront Redevelopment and Urban Revitalization in Mumbai: Forging a New Dawn for Darukhana
A transformative waterfront redevelopment project reimagining Darukhana’s shipbreaking heritage into an inclusive urban future.
OUT-OF-MAP: A Call for Postcards on Feminist Narratives of Public Space
Rhizoma Design and Research Lab invites artists, designers, architects, researchers, and students to reflect on how feminist perspectives can reshape public space. Selected works will be exhibited in Barcelona, October 2026. Submissions open until 15 April 2026.
Documentation Work on Buddhist Wooden Temple
Architectural syncretism and cultural hybridity: A comparative study of the Buddhist temples in Chattogram Hill tracks
Explore Architecture Competitions
Discover active competitions in this discipline
The International Standard for Design Portfolios
The Global Benchmark for Architecture Dissertation Awards
The Global Benchmark for Graduation Excellence
Challenge to reimagine the Iron Throne
Comments (0)
Please login or sign up to add comments
No comments yet. Be the first to comment!