Modern Tropical House Design: The Architectural Brilliance of Cumaru House
Cumaru House exemplifies modern tropical house design, seamlessly integrating structure, materials, and nature to create a transparent, light-filled home.
Cumaru House, designed by FGMF, is a striking example of modern tropical house design that masterfully integrates structure, materiality, and landscape. Situated in Brazil, this residence redefines the boundaries between indoor and outdoor spaces, embracing a light-filled, transparent design that enhances the relationship between architecture and nature. The innovative structural system suspends the entire upper floor, creating a floating effect that amplifies the openness of the living areas below. By seamlessly blending glass, wood, steel, and concrete, Cumaru House establishes itself as a benchmark for contemporary residential architecture in tropical settings.



Architectural Concept and Structural Ingenuity
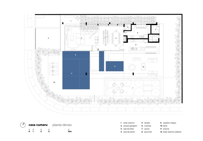
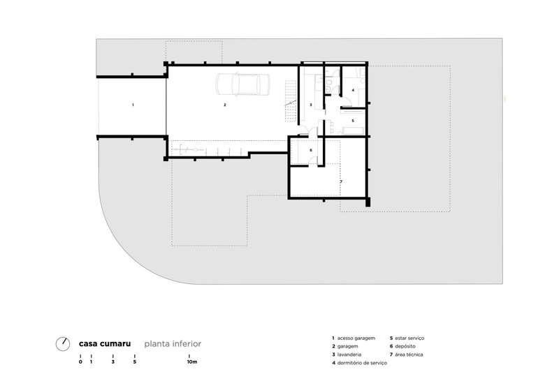
The design of Cumaru House is rooted in a unique structural concept that goes beyond conventional residential forms. Rather than a simple multi-story house, the residence is defined by a system of four large porticos that suspend the upper floor, giving the lower level a remarkable sense of transparency. This arrangement transforms the first floor into an airy, glass-enclosed space, reinforcing a deep connection with the surrounding environment.


On one side, the structural support relies on four concrete pillars, while on the other, a single massive steel truss spans 22 meters, resting on only two pillars. This hybrid system of concrete and steel not only supports the residence but also extends over a double-height balcony and a section of the swimming pool. The result is a design that defies gravity, creating a home that appears to hover effortlessly within its landscape.


Materiality and Integration with Nature
Material selection plays a pivotal role in enhancing the warm, organic character of Cumaru House. The upper level is clad in slatted cumaru wood, a material chosen for both its durability and aesthetic richness. This natural wood element is carried throughout the design, appearing in shrimp-type bedroom doors, adjustable brise-soleils over the pool, a wooden deck on the balcony, and carbonized wood in the gourmet space. These details contribute to the house’s tropical modernist aesthetic, where natural materials soften the presence of concrete and steel.



The architectural transparency of Cumaru House allows for an uninterrupted flow between indoor and outdoor spaces. Floor-to-ceiling glass panels erase the traditional barriers between the built environment and nature, inviting natural light to flood the interiors. The vegetation itself becomes an integral part of the experience—sometimes appearing as an extension of the house, sometimes framed as a scenic backdrop, and at times even covered by the structural slabs that shape the residence.



A Harmonious Dialogue Between Architecture and Landscape
The true brilliance of Cumaru House lies in its ability to create a cohesive, immersive living environment where architecture and nature exist in perfect harmony. The seamless integration of concrete, steel, glass, wood, water, and vegetation forms a unified composition that responds dynamically to the tropical climate. The interplay of light, shadow, and natural textures reinforces the home’s identity as a contemporary sanctuary, balancing structural innovation with environmental sensitivity.




More than just a residence, Cumaru House embodies the principles of modern tropical house design, where openness, material authenticity, and connection to nature define the living experience. FGMF’s architectural vision ensures that this home not only stands as a striking visual statement but also serves as a model for future residential designs that embrace sustainability and spatial fluidity.





All Photographs are works of Fran Parente
Popular Articles
Popular articles from the community
Fifth NRE Jazz Club – De Bever Architecten: Eindhoven’s Revitalized Cultural Hub
Historic gas factory transformed into Fifth NRE Jazz Club blending modern sustainability, jazz culture, dining, and heritage architecture seamlessly.
The Ken Roberts Memorial Delineation Competition (Krob)
As the most senior architectural drawing competition currently in operation anywhere in the world, it draws hundreds of entries each year, awarding the very best submissions in a series of medium-based categories.
Gads Hill Early Learning Center by JGMA: Adaptive Reuse Shaping Community-Focused Educational Architecture
Adaptive reuse transforms fragmented structure into vibrant early learning center with playful façade, natural light, and community-focused sustainable design.
Solar Steam: A Climate-Responsive Architecture That Redefines the Monument
A climate-responsive memorial architecture that transforms heat, decay, and time into a living system reflecting humanity’s ecological impact.
Similar Reads
You might also enjoy these articles
Free Architecture Competitions You Can Enter Right Now
No entry fees, real prizes. Here are the best free architecture competitions open for submissions in 2026.
Top 15 Architecture Competitions to Enter in 2026
From student-friendly idea competitions to prestigious international awards, here are the best architecture competitions open for entries in 2026. Updated regularly.
DIY & Engineering in Computational Design : Enter the BeeGraphy Design Awards
Showcase Your Creativity with Computational Design and Open Source Projects

Innovative Design Solutions: Award-Winning Projects from Recent Architecture Competitions
Exploring award-winning architectural projects shaping the future of design, sustainability, and community.
Explore Architecture Competitions
Discover active competitions in this discipline
The International Standard for Design Portfolios
The Global Benchmark for Architecture Dissertation Awards
The Global Benchmark for Graduation Excellence
Challenge to reimagine the Iron Throne
Comments (0)
Please login or sign up to add comments
No comments yet. Be the first to comment!