New Science and Technology Museum of Henan Province by TJAD Atelier L+: A Fusion of Culture, Innovation, and Environmental Intelligence
Iconic Zhengzhou museum merging culture, sustainability, and innovation with fluid parametric design inspired by rivers, wind, and Henan’s scientific heritage.
New Science and Technology Museum of Henan Province by TJAD Atelier L+: A Fusion of Culture, Innovation, and Environmental Intelligence
Standing majestically in the Baisha Xianghu district of Zhengzhou, the New Science and Technology Museum of Henan Province by TJAD Atelier L+ represents one of China’s most ambitious recent cultural and architectural achievements. Completed in 2024, this 129,365-square-meter landmark integrates science, nature, and astronomy under one roof, serving as a monumental gateway to the region’s evolving identity as a national innovation hub.


Inspired by the ancient Heluo Culture, where the Yellow River and Luo River converge, the building’s flowing form evokes a natural confluence of water, motion, and life. Its sweeping geometry suggests both the wings of a bird in flight and the cosmic orbits of scientific discovery—symbolic of the museum’s role as a space where nature and technology interlace seamlessly.

A Symbol of the Central Plains
Rooted in Henan’s deep cultural legacy, the museum fuses tradition with technological progress. Its form draws from the concept of terra et coelum—the unity of earth and sky—interpreting heritage through parametric design and environmental simulation.

Resting on an elevated triangular plot within Zhengzhou’s dense urban grid, the museum’s trident-like masterplan reflects a dynamic response to both geography and wind direction. The spatial logic aligns with the flow of air currents, sunlight, and pedestrian circulation, defining a new architectural order that balances monumental scale with ecological performance.


Spatial Organization: Connectivity and Fluidity
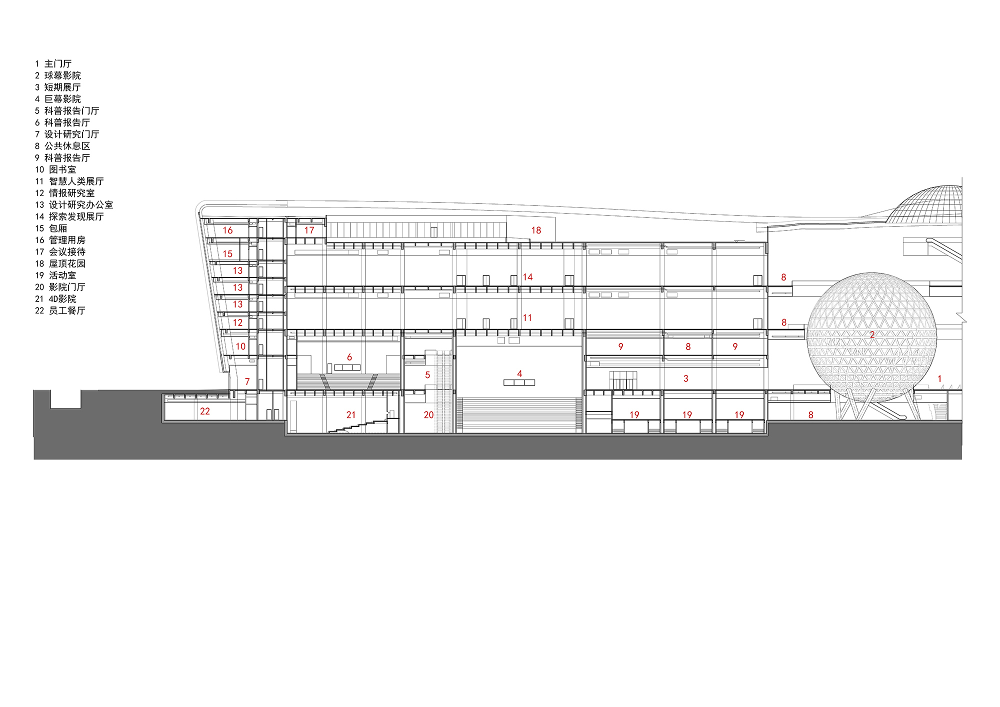
The building’s organization is shaped around a vast 3,000-square-meter central atrium, conceived as a gravitational core uniting exhibition wings and public spaces. Above the atrium, steel skybridges and interwoven platforms create a three-dimensional circulation network reminiscent of orbital paths.

At the heart of the atrium lies the spherical full-dome theater—China’s largest indoor immersive cinema—a symbolic heart of discovery and imagination. Radiating from this center, nearly twenty exhibition halls unfold across three wings, each dedicated to themes of Nature, Astronomy, and Intelligence, forming a cohesive journey through time and space.

The intent was to make the museum itself an exhibit—an architectural demonstration of “form follows flow”, where structure, circulation, and environment blend into one continuous system.
Environmental Intelligence and Sustainable Design
As a prototype for environmentally intelligent public buildings, the museum adopts multiple sustainable strategies guided by aerodynamic optimization, energy efficiency, and integrated technology. The architectural team employed BIM modeling, parametric simulations, and wind-tunnel testing to refine the façade and building massing.


The structure’s “fish-scale” aluminum double-layer façade not only defines its striking aesthetic identity but functions as a responsive climatic system—regulating airflow, filtering sunlight, and diffusing reflections across the surface. The façade was designed to achieve the 3-Star Green Building Evaluation Label, China’s highest environmental performance standard.


Key sustainable features include:
- A thermal chimney system within the central atrium promoting natural ventilation even in large volumes.
- Adjustable aluminum panels for passive cooling and daylight regulation.
- Flood-resilient plinths, elevating the building to manage river overflow and improve durability.
- Integration of local wind direction and water-flow patterns for microclimatic stability.
These strategies demonstrate how architectural form can emerge as a direct outcome of environmental intelligence rather than aesthetic formalism.


Structure and Construction Innovation
The museum’s construction represents an extraordinary collaboration of design precision and engineering complexity. The intricate roof structure spans enormous distances using 80-meter-long steel trusses that resolve intense torsional forces while retaining visual lightness.

To achieve this level of accuracy, the architects implemented 3D scanning, full-process BIM, and prefabrication techniques to synchronize structural, mechanical, and façade systems. The result is a megastructure of flowing, interconnected spaces where every component—from the façade curvature to the ceiling ribs—aligns with the museum’s aerodynamic logic.
Despite its massive footprint, the structure exudes transparency and lightness, making it an architectural performance in motion.

Museum and Park Integration
The concept of “museum and park integration” expands the building’s role beyond an exhibition venue into a public urban landscape. The museum connects directly to the nearby Guibiao Tower and adjacent waterfront zones through plazas, ramps, and landscaped terraces. The result is a multi-layered cultural campus bridging the built and natural realms.


Visitors experience a series of transitions—from open plazas to shaded walkways, from reflective pools to interior galleries—extending the museum’s educational mission into its surroundings. Each approach path is choreographed to heighten anticipation, emphasizing how architecture can frame both learning and leisure within one continuous environment.
Cultural and Technological Significance
The New Science and Technology Museum of Henan Province stands as the largest and most technologically advanced science museum in the province’s history. Since opening, it has welcomed over 6.5 million visitors, making it one of China’s most popular science destinations.


The project has received numerous awards, including the Shanghai Survey and Design Public Building Award, the Huaxia Architecture Science and Technology Award, and the Luban National Quality Project Award, recognizing excellence in both design and execution.
Through its fusion of culture, science, and sustainability, the museum embodies China’s vision for Henan as a national innovation highland—a place where the architecture of knowledge shapes the architecture of the future.



All the Photographs are works of Schran Image, ZY Architectural Photography
Popular Articles
Popular articles from the community
Split House: A Compact Urban Home Blending Privacy, Light, and Flexible Living in Japan
Compact Japanese home featuring DOMA space, flexible café potential, passive lighting, privacy zoning, and sustainable urban living design.
Free Architecture Competitions You Can Enter Right Now
No entry fees, real prizes. Here are the best free architecture competitions open for submissions in 2026.
Inverted Architecture Installation by Studio Link-Arc: Exploring the Intersection of Architecture and Living Organisms
Inverted Architecture Installation by Studio Link-Arc blends mycelium, sustainability, inverted design, ecological cycles, and urban adaptive architecture in Shenzhen.
Gads Hill Early Learning Center by JGMA: Adaptive Reuse Shaping Community-Focused Educational Architecture
Adaptive reuse transforms fragmented structure into vibrant early learning center with playful façade, natural light, and community-focused sustainable design.
Similar Reads
You might also enjoy these articles
The Ken Roberts Memorial Delineation Competition (Krob)
As the most senior architectural drawing competition currently in operation anywhere in the world, it draws hundreds of entries each year, awarding the very best submissions in a series of medium-based categories.
Waterfront Redevelopment and Urban Revitalization in Mumbai: Forging a New Dawn for Darukhana
A transformative waterfront redevelopment project reimagining Darukhana’s shipbreaking heritage into an inclusive urban future.
OUT-OF-MAP: A Call for Postcards on Feminist Narratives of Public Space
Rhizoma Design and Research Lab invites artists, designers, architects, researchers, and students to reflect on how feminist perspectives can reshape public space. Selected works will be exhibited in Barcelona, October 2026. Submissions open until 15 April 2026.
Documentation Work on Buddhist Wooden Temple
Architectural syncretism and cultural hybridity: A comparative study of the Buddhist temples in Chattogram Hill tracks
Explore Architecture Competitions
Discover active competitions in this discipline
The International Standard for Design Portfolios
The Global Benchmark for Architecture Dissertation Awards
The Global Benchmark for Graduation Excellence
Challenge to design an urban locus of culture and heritage
Comments (0)
Please login or sign up to add comments
No comments yet. Be the first to comment!