Parc des Loges Childhood and Sports Center By HEMAA Architectes
Parc des Loges is a nature-integrated childhood and sports center using rammed earth and timber to create sustainable, playful learning spaces.
Located in Évry-Courcouronnes, France, the Parc des Loges Childhood and Sports Center by HEMAA Architectes is a powerful example of contemporary public architecture rooted in landscape, ecology, and social purpose. Completed in 2025, the 2,444 m² complex brings together early childhood facilities, educational spaces, and sports infrastructure within a unified, nature-based composition that prioritizes sustainability, wellbeing, and community engagement.


Founded in 2018, HEMAA Architectes is known for a contextual and sobriety-driven architectural philosophy grounded in the living world. At Parc des Loges, this approach manifests in a campus-like arrangement that responds sensitively to topography, climate, and biodiversity. Rather than reshaping the land, the project follows the site’s natural slope, allowing architecture and landscape to merge seamlessly.


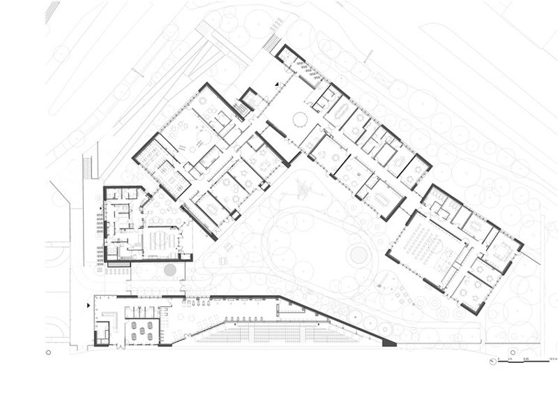
The program is divided into five distinct yet interconnected volumes: a nursery, an elementary school, a childminders’ hub, a cafeteria, and a sports stand. These entities are arranged around a protected central garden courtyard, creating a calm, inward-focused environment shielded from surrounding streets while remaining visually and physically open to the adjacent park. Light glazed walkways link the buildings, fostering transparency, intuitive circulation, and constant visual contact with nature.


Materiality plays a central role in shaping the identity of the project. The façades are constructed from load-bearing rammed earth, sourced directly from excavated soil from the Grand Paris metro works—665 cubic meters in total. This geo-sourced material not only significantly reduces embodied carbon but also offers excellent thermal inertia and natural breathability. Insulated with hemp wool, the thick earth walls create a healthy indoor climate while reinforcing the building’s tactile, grounded presence.


The interior structure is entirely timber, introducing warmth, softness, and human scale throughout the learning spaces. Exposed wood surfaces encourage sensory engagement, particularly important in a childhood environment. Low-carbon textured concrete at the base of the buildings provides durability, while strategically placed glazing at child height enhances daylight, visibility, and intimacy.


Landscape design is integral to the project’s educational philosophy. Inspired by Waldkindergarten principles, the children’s garden functions as a “tamed forest,” planted with oak, ash, maple, and elm trees. Meandering paths, clearings, and shaded areas invite free play, exploration, and learning through direct contact with nature. The school grounds extend naturally into the surrounding park, blurring boundaries between built and natural environments.


Environmental performance underpins every design decision. Green roofs with deep substrates improve insulation, support rainwater management, and enhance biodiversity. Deep roof overhangs and adjustable sunshades provide passive solar control, while building orientation maximizes winter sunlight and encourages natural cross-ventilation in summer. Abundant planting mitigates urban heat island effects and strengthens local ecosystems.

The sports facility completes the ensemble, featuring a 300-seat grandstand carefully integrated into the site’s slope. Its gently descending roof preserves light, views, and spatial continuity across the campus. More than a standalone sports venue, it reinforces the project’s role as a shared, intergenerational public facility—open to both students and the wider community.

In a dense urban context where many children have limited access to nature, the Parc des Loges Childhood and Sports Center offers more than education and recreation. It provides a place of escape, discovery, and connection to the living world—demonstrating how sustainable architecture, bio-based materials, and landscape-led design can shape meaningful civic spaces for future generations.

All the photographs are works of Charles Bouchaid, Sergio Grazia
Popular Articles
Popular articles from the community
Flamboyant House by Juliana Camargo + Prumo Projetos
Modern Brazilian house integrating existing tree, pool, and volumes with glass, wood, and transitional spaces blending interior, exterior, and landscape seamlessly.
Inverted Architecture Installation by Studio Link-Arc: Exploring the Intersection of Architecture and Living Organisms
Inverted Architecture Installation by Studio Link-Arc blends mycelium, sustainability, inverted design, ecological cycles, and urban adaptive architecture in Shenzhen.
On the Brooks House by Monsoon Collective – A Contemporary Kerala Home Rooted in Tradition
Kerala home blending tradition and modernity with water-inspired design, brick architecture, courtyard planning, and sustainable rainwater harvesting strategies.
The Ken Roberts Memorial Delineation Competition (Krob)
As the most senior architectural drawing competition currently in operation anywhere in the world, it draws hundreds of entries each year, awarding the very best submissions in a series of medium-based categories.
Similar Reads
You might also enjoy these articles
The Ken Roberts Memorial Delineation Competition (Krob)
As the most senior architectural drawing competition currently in operation anywhere in the world, it draws hundreds of entries each year, awarding the very best submissions in a series of medium-based categories.
Waterfront Redevelopment and Urban Revitalization in Mumbai: Forging a New Dawn for Darukhana
A transformative waterfront redevelopment project reimagining Darukhana’s shipbreaking heritage into an inclusive urban future.
OUT-OF-MAP: A Call for Postcards on Feminist Narratives of Public Space
Rhizoma Design and Research Lab invites artists, designers, architects, researchers, and students to reflect on how feminist perspectives can reshape public space. Selected works will be exhibited in Barcelona, October 2026. Submissions open until 15 April 2026.
Documentation Work on Buddhist Wooden Temple
Architectural syncretism and cultural hybridity: A comparative study of the Buddhist temples in Chattogram Hill tracks
Explore Architecture Competitions
Discover active competitions in this discipline
The International Standard for Design Portfolios
The Global Benchmark for Architecture Dissertation Awards
The Global Benchmark for Graduation Excellence
Challenge to design a barrier free sports center
Comments (0)
Please login or sign up to add comments
No comments yet. Be the first to comment!