Seaside Serenity: The Tranquil Escape at Saltwater Cottage
Is this charming coastal retreat the perfect getaway for you?

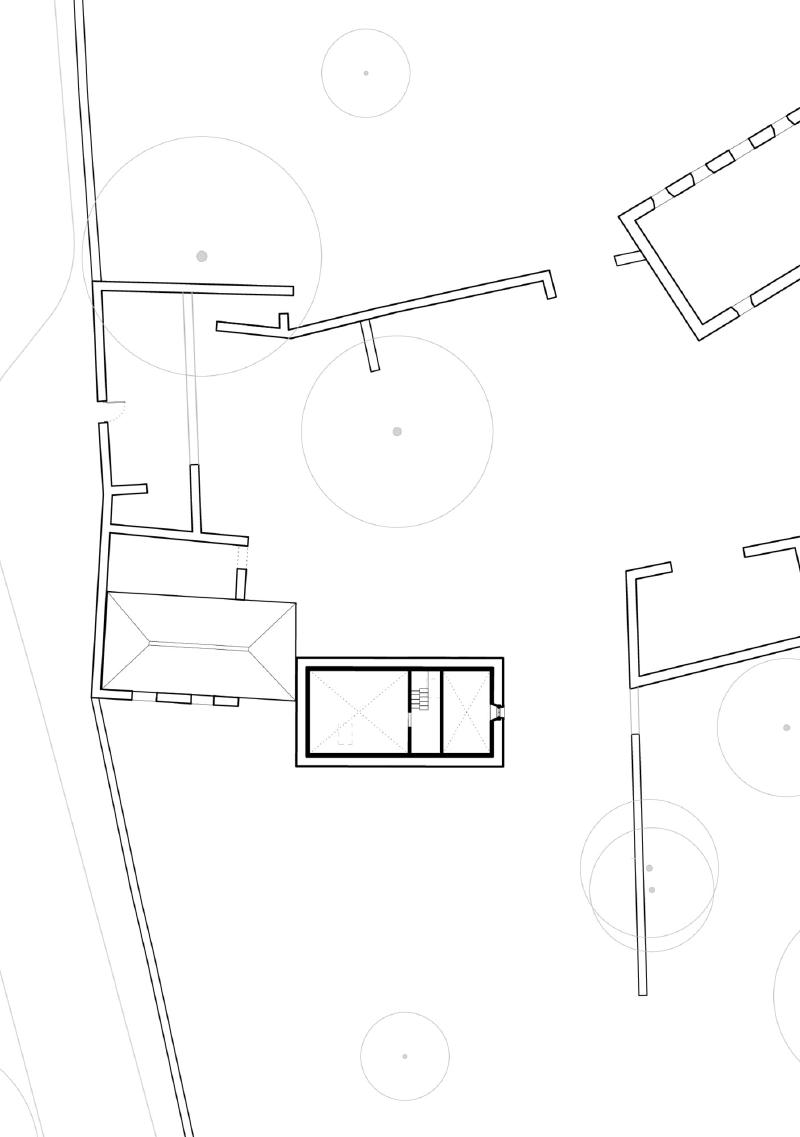
Tucked away on the edge of one of Ireland's three glacial fjords lies a mystical twelve-acre site steeped in history. This site, owned by the Delap family for over 300 years, contains several ruins and wallsteads, as well as remnants of formal landscaped gardens. Despite being a centre of salt production during the eighteenth century, the site had been left unused for almost 40 years until the family's desire to reoccupy it was finally realized through a new project.
One of the most notable features of the site is a twenty-meter-long and three-meter-high wallstead, which partially conceals the living quarters from the road. The southern edge of the yard is marked by the ruins of an eighteenth-century salt worker's cottage, whose stone walls have survived the test of time. The cottage walls were finely built and carefully constructed, and the lime render that once coated them has long since washed away, leaving only warm, natural tones and textures.
As part of the new project, the cottage has been restored to its former glory, with solid cornerstones ensuring its longevity. The walls have been patched with natural lime mortar, while the interior stone walls have been lined with corkboard insulation and lime render. The floors have been reconstructed using foam glass insulation and limecrete slabs. Notably, the decision was made not to render the cottage externally, preserving its natural tones and textures and allowing it to blend in with the suite of wall steads and ruins scattered throughout the site.
While the cottage's configuration has been reinstated to include a living space, a bedroom, and a small loft overlooking the living area, the site's formal landscaped gardens remain a highlight. The gardens, which peak through an otherwise wild setting, were once meticulously maintained and added a touch of elegance and sophistication to the rugged surroundings. The restored cottage and gardens are a testament to the Delap family's long-standing connection to the site and their commitment to preserving its rich history and natural beauty.
Nestled within a bucolic coastal setting, a quaint eighteenth-century cottage has received a modern, single-story extension that celebrates the surrounding landscape. The extension has been carefully designed to be subservient to the existing cottage form, occupying a gap space between the cottage and adjacent wall steads.
The extension's roof plane is expressed as a thin green line resting atop the existing stone walls, creating a small courtyard that boasts stunning views of the landscaped gardens. Inside, a new bedroom and bathroom look out onto the serene surroundings, inviting guests to unwind and embrace the tranquillity of the location.
The new interventions have been carefully curated to maintain the discreet and bucolic character of the existing structures and setting. The tones, materials, and textures employed throughout the space are Fern Green, a singular colour that tonally ties all the elements together in a calm and cohesive whole.
A particular highlight of the extension is the triple-glazed, floor-to-ceiling glazing that filters light through the cooking and dining area, creating a space for reflection and relaxation. The kitchen table occupies a central position in the extension, providing a vantage point that offers a visual history of the site's rich heritage.
In fully open mode, the boundaries between inside and outside blur, allowing guests to connect with the landscaped gardens and immerse themselves in the natural beauty of the surroundings. The extension's design represents a perfect example of how architecture can harmonize with the environment to create a unique and immersive experience for visitors.


























