Shenzhen University Affiliated Nanshan Kindergarten by SUIADR SML Design Studio: A Model of Innovative Kindergarten Renovation Architecture
A minimalist kindergarten transformed into a dynamic Montessori-inspired learning environment through strategic spatial renovation and child-centered design principles.
Transforming Modernism into a Child-Centered Space
The Shenzhen University Affiliated Nanshan Kindergarten, renovated by SUIADR SML Design Studio, showcases a pioneering example of kindergarten renovation architecture. Originally built under strict budget constraints, the white cubic structure was rigid, underutilized, and poorly lit. Through a deep spatial reconfiguration grounded in Montessori principles, the design team transformed the structure into a dynamic, light-filled learning environment that stimulates curiosity, exploration, and social interaction.




Original Constraints: Rigid Geometry and Limited Play Opportunities
The kindergarten was initially designed with functional austerity—minimalist white forms, west-facing blank facades to reduce solar gain, and a layout that restricted the variety and richness of children's experiences. Play spaces were uniform and predictable, while large roof areas remained unused. With little natural light and limited spatial diversity, the building lacked the environmental cues vital to Montessori-inspired development.




Design Philosophy: Environment as Educator
Guided by the Montessori ethos that the built environment educates, the architects set out to create a school where every surface, connection, and transition could become part of the learning journey. The intervention went far beyond cosmetic changes, restructuring the entire architectural system to serve educational goals, sensory stimulation, and child-friendly interaction.




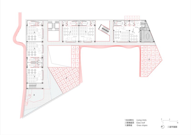
Spatial Strategy: From Monotony to Multilayered Exploration
The renovation's core strategy was spatial reorganization. The once flat rooftops were transformed into interactive green courtyards, complete with ecological lawns and winding exploration paths. A central courtyard, designed with irregular geometric forms, was introduced to break the uniformity of the site’s original plan. These spaces allow children to move, explore, observe, and engage freely, promoting both physical activity and imaginative play.



Architectural Language: Eaves and Courtyards as Transitional Devices
To connect indoor and outdoor environments fluidly, the design introduced a cantilevered eave system. These semi-enclosed transitional spaces around the courtyards serve as shaded, breezy in-between zones where children can rest, learn, or interact. They also enable visual and physical extension of indoor areas, encouraging free movement and light modulation.


The west facade, previously closed off to avoid sun exposure, was reopened with low window openings integrated with built-in cubbies. These new elements allow children to engage with the outdoors while resting or playing, and also bring filtered daylight deep into the classrooms.


Material and Aesthetic Transformation: Warmth and Texture
The original cold white facade was reclad with wood-grain panels, replacing sterile minimalism with a warm, natural texture. This move not only grounds the building in a more inviting and sensory-friendly material palette, but also evokes a sense of domesticity, comfort, and care—essential for young children.


Sunlight as Design Element: Parametric Eaves Optimization
The design team employed parametric tools to shape the eaves according to Shenzhen’s solar data. The cantilevers were adjusted in depth and angle to optimize shade while creating rhythmic, wave-like forms that animate the facades. As light filters through these architectural layers, dynamic shadow patterns are cast across walls and floors—turning sunlight into a moving design feature that enlivens children’s everyday routines.



Playful Landscaping: Climbable Tree Planters and Sensory Surfaces
The landscape elements reinforce the interior’s multidimensional approach. Undulating tree planters double as play structures, providing both greenery and vertical engagement. These and other sculpted landscape features invite touch, movement, and interaction—activating every corner of the site as part of the learning environment.


A New Standard in Kindergarten Renovation Architecture
The Shenzhen University Affiliated Nanshan Kindergarten sets a new benchmark for kindergarten renovation architecture, proving that even modest buildings can become educationally rich, spatially layered, and emotionally resonant environments. By reframing space through the lens of exploration and adaptability, SUIADR SML Design Studio has delivered a project that embodies the future of early childhood design—one that is not just built for children, but built around them.

All Phtographs are works of ACF
Popular Articles
Popular articles from the community
Flamboyant House by Juliana Camargo + Prumo Projetos
Modern Brazilian house integrating existing tree, pool, and volumes with glass, wood, and transitional spaces blending interior, exterior, and landscape seamlessly.
Treehouse Apartment: A Warm Timber Interior Blending Craft, Play, and Contemporary Living
Warm timber apartment with integrated treehouse, combining natural materials, craftsmanship, and playful design to create a flexible, family-oriented living environment.
An Miên Lumière Cafe by xưởng xép, Ho Chi Minh City, Vietnam
An industrial-inspired café where layered steel and warm light create a dynamic, immersive environment shaped by reflection, depth, and perception.
Louis Malle Cinema: A Limestone Cultural Landmark Revitalizing Community Life in Prayssac
Limestone cinema extension with public forecourt, blending heritage and modern design to create flexible cultural spaces and strengthen community interaction.
Similar Reads
You might also enjoy these articles
Bamboo Housing Challenge 2026: Design Affordable, Sustainable Homes Using Bamboo
An international design competition by Bamboo U and IBUKU inviting architects and designers to reimagine affordable housing using bamboo — with the winning design built full-scale in Bali.
Computational Design & Education: Beegraphy Design Awards Introduces 7th Category (Featuring Jiyun's Innovative Approach)
Dive into Beegraphy’s 7th Design Awards category, where computational design meets education to create immersive, interactive learning tools, inspired by Jiyun’s work.
From Parametric Lighting to Urban Furniture: Join the 2nd Workshop in Beegraphy’s Computational Design Series
Dive into Cutting-Edge Design Techniques and Practical Applications with Industry Experts
Introducing Sphere by UNI: Pioneering a New Era in AEC Industry
Unlocking Global Potential with BIM and Agile Management
Explore Architecture Competitions
Discover active competitions in this discipline
The International Standard for Design Portfolios
The Global Benchmark for Architecture Dissertation Awards
The Global Benchmark for Graduation Excellence
Challenge to reimagine the Iron Throne
Comments (0)
Please login or sign up to add comments
No comments yet. Be the first to comment!