Solhagaparken Residential Complex: A Sustainable Urban Living Solution by Murman Arkitekter
Solhagaparken Residential Complex by Murman Arkitekter blends sustainable materials, modern design, and urban connectivity for efficient, eco-friendly living in Stockholm.
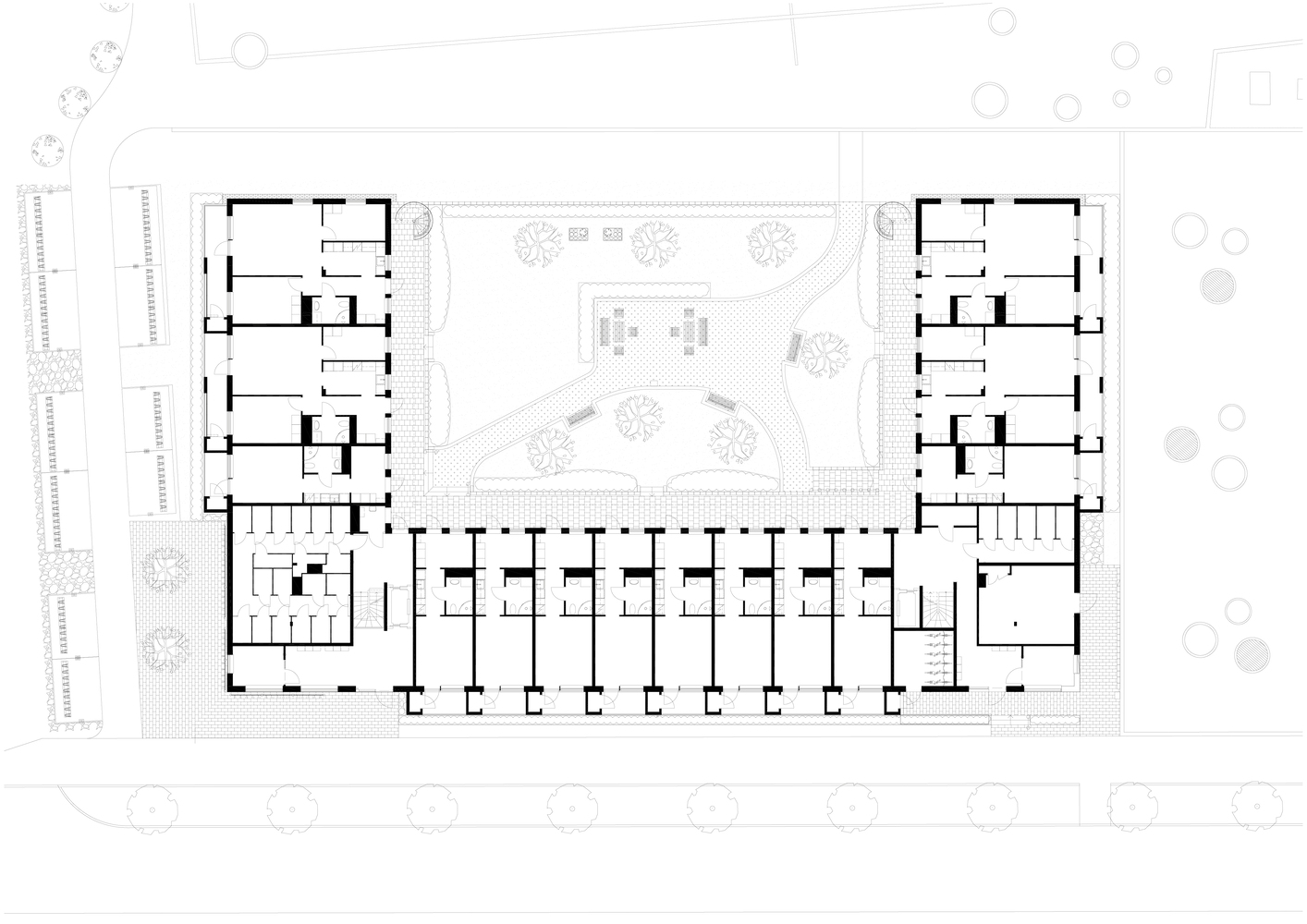
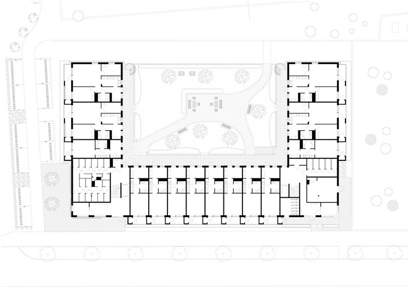
Located in Masmo, Vårby, Sweden, the Solhagaparken Residential Complex is a contemporary housing project designed by Murman Arkitekter. Completed in 2021, this five-story development spans 5,120 square meters and integrates seamlessly with the surrounding landscape, offering modern, sustainable living near Stockholm.


Urban Context and Architectural Integration
Masmo, a suburb approximately 20 kilometers south of Stockholm, is known for its mix of modernist architecture, lush green spaces, and efficient public transport links. The area, originally developed in 1964, features large red brick apartment buildings surrounding Solhagaparken, a central green hub. The new residential complex respects the area's existing urban fabric while introducing contemporary design elements that enhance the neighborhood’s livability.
Bordered by Botkyrkaleden and Södertäljevägen highways, Masmo presents a dynamic urban environment with contrasting landscapes—from the steep Masmoberget slopes to the westward waterways connecting Huddinge and Botkyrka. The Solhagaparken project is carefully designed to respond to these conditions, ensuring both aesthetic appeal and functional efficiency.



Innovative Design for Urban Living
The U-shaped building layout maximizes natural light and optimizes acoustic insulation, providing residents with comfortable living spaces despite nearby traffic noise. The structure is strategically placed along Varvsvägen, enclosing a protected inner courtyard adjacent to Solhagaparken.
Key design features include:
- Dual-aspect apartments for enhanced natural ventilation and daylight.
- Outdoor walkways offering access to the apartments from the inner courtyard.
- Generous balconies along the street-facing façade, designed to balance privacy, noise reduction, and usability.
- Integrated storage units between balconies to create semi-private outdoor spaces.
- Partially glazed balconies on exposed apartments, further reducing noise impact.


Sustainable Materials and Construction
The project emphasizes sustainability through locally sourced, eco-friendly materials. The facades feature thermally treated wood, ensuring durability while blending harmoniously with the surrounding natural environment. Windows and balcony doors are crafted from anodized aluminum, known for its longevity and low maintenance requirements.
Other notable material choices include:
- Dark brown steel railings and balcony details, adding a sense of unity and modernity.
- Vertical wooden pillars, painted in a complementary brown shade, reinforcing the building’s architectural identity.


Enhancing Community and Connectivity
The Solhagaparken Residential Complex is more than just an apartment building—it contributes to the urban regeneration of Masmo by introducing cost-effective, well-designed homes near public transportation hubs. The majority of the new apartments are compact, catering to modern urban dwellers seeking accessibility and efficiency.
With sustainable design, thoughtful urban planning, and a strong connection to its natural surroundings, Solhagaparken sets a new benchmark for residential architecture in Sweden.
All Photographs are works of Johan Dehlin
Popular Articles
Popular articles from the community
Split House: A Compact Urban Home Blending Privacy, Light, and Flexible Living in Japan
Compact Japanese home featuring DOMA space, flexible café potential, passive lighting, privacy zoning, and sustainable urban living design.
The Ken Roberts Memorial Delineation Competition (Krob)
As the most senior architectural drawing competition currently in operation anywhere in the world, it draws hundreds of entries each year, awarding the very best submissions in a series of medium-based categories.
Solar Steam: A Climate-Responsive Architecture That Redefines the Monument
A climate-responsive memorial architecture that transforms heat, decay, and time into a living system reflecting humanity’s ecological impact.
Alton Cliff House: A Harmonious Retreat by f2a Architecture in Lake Country, Canada
Alton Cliff House blends corten steel, prefabrication, and sustainable design, creating a luxurious, energy-efficient retreat perched on Canadian cliffs.
Similar Reads
You might also enjoy these articles
The Ken Roberts Memorial Delineation Competition (Krob)
As the most senior architectural drawing competition currently in operation anywhere in the world, it draws hundreds of entries each year, awarding the very best submissions in a series of medium-based categories.
Waterfront Redevelopment and Urban Revitalization in Mumbai: Forging a New Dawn for Darukhana
A transformative waterfront redevelopment project reimagining Darukhana’s shipbreaking heritage into an inclusive urban future.
OUT-OF-MAP: A Call for Postcards on Feminist Narratives of Public Space
Rhizoma Design and Research Lab invites artists, designers, architects, researchers, and students to reflect on how feminist perspectives can reshape public space. Selected works will be exhibited in Barcelona, October 2026. Submissions open until 15 April 2026.
Documentation Work on Buddhist Wooden Temple
Architectural syncretism and cultural hybridity: A comparative study of the Buddhist temples in Chattogram Hill tracks
Explore Architecture Competitions
Discover active competitions in this discipline
The International Standard for Design Portfolios
The Global Benchmark for Architecture Dissertation Awards
The Global Benchmark for Graduation Excellence
Challenge to design mud housing for contemporary communities
Comments (0)
Please login or sign up to add comments
No comments yet. Be the first to comment!