Sustainable Container Home: A Closer Look at House 28 by Studio Edwards
Explore House 28 by Studio Edwards, a sustainable container home blending innovative design with eco-friendly features in Wye River, Australia.
Sustainable container homes are revolutionizing the concept of residential architecture by combining affordability with eco-friendly design. House 28, designed by Studio Edwards and located on the Surf Coast in Wye River, Victoria, is a stellar example of how innovative materials and design can transform standard shipping containers into a stylish, functional dwelling.






Design and Construction of House 28
Utilizing Shipping Containers for Eco-Friendly Living
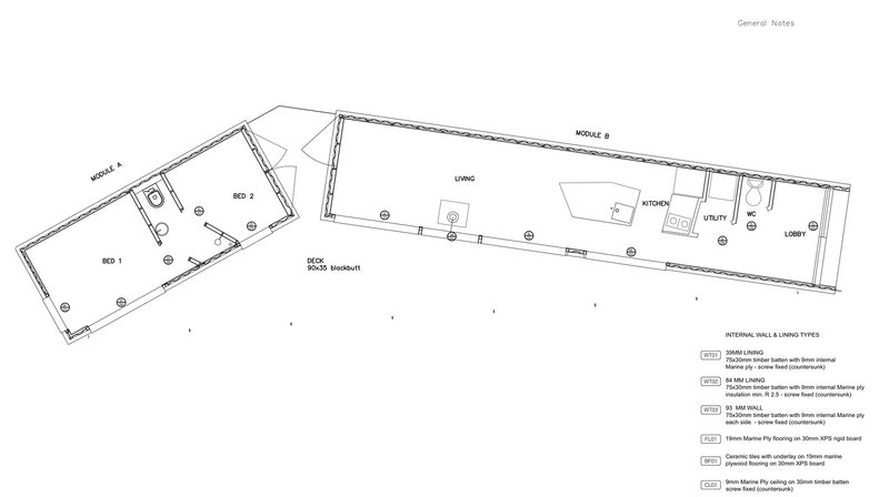
House 28 comprises three 20ft shipping containers that form a compact yet highly functional 70 m² weekend retreat. The project not only uses repurposed containers to reduce material waste but also features sustainable practices in its construction and design.








Architectural Layout
Two containers are joined to create the main living area, which includes a kitchen, toilet, and laundry facilities, with an entry point designed to maximize space and functionality. The third container serves as a private sleeping wing, housing two bedrooms alongside additional bathroom facilities. These modules are connected by an external deck made from durable steel stilts, which anchor the home to the hillside, demonstrating a thoughtful approach to its environmental impact.








Sustainable Features and Materials
Interior and Exterior Materials
Internally, House 28 is lined with marine plywood, a material known for its durability and resistance to moisture. Externally, the home is insulated and finished with galvanized steel sheeting, which provides weather resistance and longevity.






Energy Efficiency and Insulation
The northern facade of House 28 includes fixings for planting wires that encourage the growth of native plants over the structure, integrating it with the local ecosystem and providing natural insulation. The southern side features extensive glazing with double-glazed doors and windows that open onto a deck, offering expansive views and enhancing indoor-outdoor connectivity.





Additional Eco-Friendly Features
Green Roof System
One of the standout sustainable features of House 28 is its green roof. Planted with native dichondra, the roof provides excellent thermal insulation and natural rainwater filtration. This not only helps in maintaining a more stable indoor temperature but also reduces runoff and the home's overall impact on the local environment.






Optimizing for Views and Light
The strategic placement of windows and doors ensures ample natural light while offering unobstructed views of the ocean through the trees. This design choice reduces the need for artificial lighting during the day, lowering energy consumption and enhancing the connection to the surrounding landscape.






The Future of Eco-Friendly Architecture
House 28 by Studio Edwards exemplifies how sustainable container homes can offer innovative, eco-friendly housing solutions without compromising on design or comfort. As the demand for sustainable living options grows, projects like House 28 pave the way for future developments in the field of environmentally conscious architecture.




All photographs are work of Tony Gorsevski