The Essence of Modern Coffee Shop Design: A Case Study of We Coffee Anália Franco by JPG.ARQ
Exploring We Coffee Anália Franco's innovative design by JPG.ARQ, blending modern aesthetics with functional space.
In the bustling eastern zone of São Paulo, a new beacon of modern coffee shop design has emerged, manifesting the innovative approach of JPG.ARQ in the creation of We Coffee Anália Franco. This establishment not only serves as a testament to contemporary architectural ingenuity but also redefines the coffee shop experience, blending functionality with aesthetic appeal. The project, spearheaded by lead architect José Paulo Gouvêa, embodies the principles of modern design through its clever use of space, materials, and light, offering a fresh perspective on the traditional café layout.



The Architectural Narrative
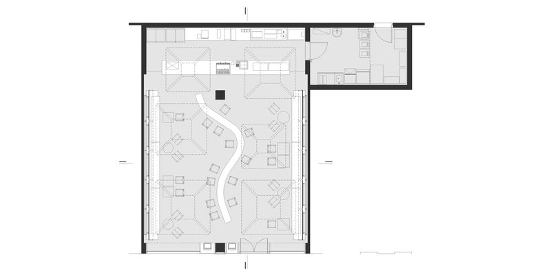
At the heart of We Coffee Anália Franco lies a high, sinuous table that gracefully extends towards the counter, guiding visitors through the space and inviting interaction. This central element is complemented by side benches nestled under inclined panels, which, together with the tables and chairs, create a cohesive and welcoming environment for patrons. The strategic placement of the storage area and preparation annex underscores the design’s emphasis on operational efficiency without sacrificing aesthetic considerations.





A Tribute to Material Authenticity
The café's design uses the building's original structure. It had precast concrete pillars and Pi slabs. JPG.ARQ decided to keep these parts and make them a focus. This shows they value real materials, which is important in today's architecture. The concrete blocks are painted black. The concrete surfaces were refreshed and left open. This creates a contrast you can see and feel, making the space richer. experienced architectural firm often turn simple structures into beautiful spaces by valuing how materials look and feel and keeping the design clear. This decision also makes the precast structure's shapes more noticeable. Plus, it matches the brand, which is known for using a lot of white.




Lighting as a Design Element
A distinctive feature of We Coffee Anália Franco is the use of large inverted pyramid-shaped luminaires, which not only serve a functional purpose but also contribute to the space's visual identity. These fixtures, set against the dark background of the concrete surfaces, become focal points, drawing the eye upward and emphasizing the voluminous height of the ceilings. The white side panels, designed to echo the modulation of the precast slabs, further reinforce the interplay between light and shadow, structure and openness.


Redefining the Coffee Shop Experience
We Coffee Anália Franco stands as a testament to the power of modern coffee shop design to create spaces that are both beautiful and functional. Through the thoughtful application of design principles, JPG.ARQ has crafted an environment that encourages social interaction, appreciates materiality, and respects the historical context of its location. As patrons enjoy their coffee within this thoughtfully designed space, they are enveloped in an atmosphere that speaks to the future of café culture, where design and coffee come together to create memorable experiences.
In the realm of architecture and interior design, the project serves as an inspiration for future endeavors, demonstrating how spaces can be transformed to meet the evolving demands of contemporary society. The case of We Coffee Anália Franco by JPG.ARQ is a compelling example of how modern coffee shop design can shape the way we think about, and engage with, our built environment.





All photographs are work of Pedro Kok
Popular Articles
Popular articles from the community
Split House: A Compact Urban Home Blending Privacy, Light, and Flexible Living in Japan
Compact Japanese home featuring DOMA space, flexible café potential, passive lighting, privacy zoning, and sustainable urban living design.
Marvila Apartment Renovation in Lisbon: A Bright Minimalist Attic Transformation by KEMA Studio
Bright attic transformed into minimalist Lisbon apartment with skylights, sustainable materials, open plan layout, and industrial-inspired interior design elements.
Free Architecture Competitions You Can Enter Right Now
No entry fees, real prizes. Here are the best free architecture competitions open for submissions in 2026.
TGK Nirasaki Plant: A Smart Factory Blending Technology, Landscape, and Wellness
Smart factory in Japan blending IoT manufacturing, scenic trail design, natural ventilation, and landscape integration to enhance user experience and sustainability.
Similar Reads
You might also enjoy these articles
Rede Arquitetos Builds an Open-Air School in Fortaleza That Doubles as a Neighborhood Living Room
Educar II SESC-CE folds sports, dance, and community gathering into a courtyard campus wrapped in mesh and tropical color.
NZ10 Apartment by auba studio: Adaptive Reuse in Palma de Mallorca
Adaptive reuse apartment transforms bakery into light-filled home with patios, privacy layers, and wood interiors enhancing urban living experience.
TGK Nirasaki Plant: A Smart Factory Blending Technology, Landscape, and Wellness
Smart factory in Japan blending IoT manufacturing, scenic trail design, natural ventilation, and landscape integration to enhance user experience and sustainability.
House in Macieira by Nelson Resende Arquitecto: A Sensitive Transformation Rooted in Context and Materiality
Adaptive reuse house blending wood, glass, and landscape, transforming traditional Portuguese architecture into a warm, open, contemporary living environment.
Explore Architecture Competitions
Discover active competitions in this discipline
The International Standard for Design Portfolios
The Global Benchmark for Architecture Dissertation Awards
The Global Benchmark for Graduation Excellence
Challenge to design luxury tourism on rails
Comments (0)
Please login or sign up to add comments
No comments yet. Be the first to comment!