Threshold House by Studio McW – A Contemporary Victorian Renovation Blending Hospitality, Functionality, and Garden Living
Threshold House blends Victorian charm with modern extensions, creating flexible living, seamless garden connections, and refined spaces for entertaining and everyday comfort.
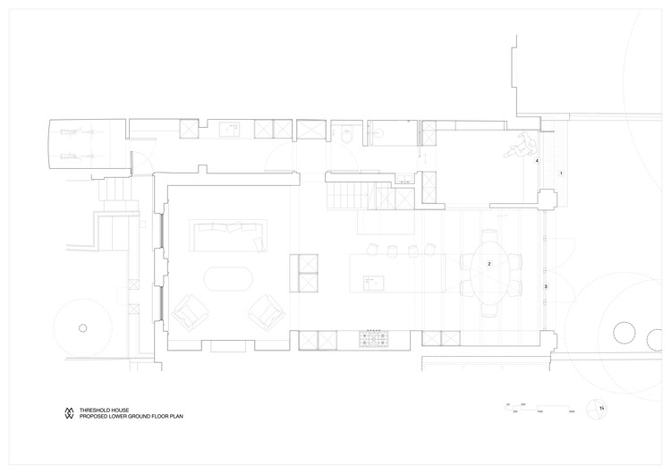
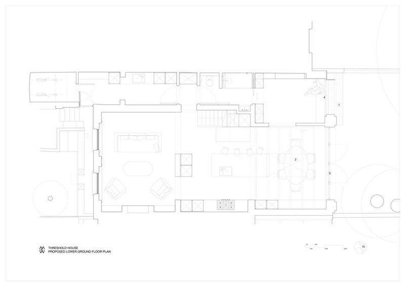
Threshold House by Studio McW is a striking renovation and lower-ground-floor extension of a Victorian semi-detached home located in London’s leafy De Beauvoir neighbourhood. Designed for a busy professional couple, the project reimagines the lower level of the split-level residence as a warm, inviting, and highly functional space for both intimate living and large social gatherings.
The original upper floors—previously modernised—already included a bright reception room, guest room, and a primary bedroom suite. The challenge lay in transforming the lower ground floor into a dynamic extension of these spaces, balancing private domestic moments with vibrant, open areas crafted for entertaining. The clients requested a layout that felt like a “moment of discovery” when descending from the upper ground, allowing the lower floor to unfold and expand gracefully toward the garden.


A Garden-Facing Social Hub with Flexible, Private Spaces
Studio McW thoughtfully reorganised the floor plan, cleverly concealing an interplay of rooms that form the main entertaining suite while retaining a flexible room that doubles as an office or an additional guest bedroom. This versatile space enhances the home’s adaptability—ideal for overnight guests, remote work, or quiet retreat.
The rear addition stretches to the furthest extent permitted by planning regulations. The larger footprint accommodates:
- A generous open kitchen and dining space
- A light-filled living room with enlarged openings
- A dual-access, multifunctional bathroom
- A utility room
- A flexible study/guest bedroom
Two tall, protected palm trees in the rear garden influenced the design, prompting Studio McW to heighten the visual and physical connection between interior spaces and the outdoors.


A Layered Facade Blending Victorian Character with Contemporary Strength
The extension’s exterior is defined by a beautifully layered façade designed to sit comfortably beside the original Victorian architecture. A monolithic brick wall links two complementary elevations, each expressing a different architectural quality.
On the left, a larger brick volume frames full-height Crittall-style doors, creating depth and directing sightlines toward the living room beyond. Tiered brick detailing provides sculptural richness and solidity.
To the right, Studio McW introduced a lighter metal framework—initially intended as brickwork—to prevent the extension from feeling too heavy when viewed from the garden. This metal structure, colour-matched to the steel doors, also future-proofs the building for a potential upper-floor extension. A sliding window opens onto an external brick bench, while inside, a matching built-in seat creates a calming nook.


Natural Light, Green Roof, and an Immersive Indoor-Outdoor Experience
A low-maintenance green roof softens the extension’s visual impact from the upper ground floor. Inside, the sense of openness is amplified by a large rooflight above the dining table, set against exposed timber beams that add warmth and architectural texture.
The living room, positioned below street level, remains visually connected to the kitchen-dining space through two widened openings—promoting a seamless sense of flow across the entire floor.
At the plan’s centre, the kitchen anchors a gentle circular movement between public and private areas. The dual-access bathroom allows practical use during gatherings but also serves as a private ensuite when the study functions as a guest room. Open bathroom doors during the day bring additional daylight into the central areas, enhancing spatial generosity.



A Thoughtful Blend of Function, Architecture, and Lifestyle
Threshold House demonstrates Studio McW’s refined approach to contemporary residential design. The renovation pairs practicality with architectural elegance, using natural materials, carefully framed views, and sophisticated layering to enrich everyday living.
The result is a flexible, generous, and garden-connected home—a modern sanctuary designed for both quiet living and spirited hospitality.


All the photographs are works of Lorenzo Zandri
Popular Articles
Popular articles from the community
Split House: A Compact Urban Home Blending Privacy, Light, and Flexible Living in Japan
Compact Japanese home featuring DOMA space, flexible café potential, passive lighting, privacy zoning, and sustainable urban living design.
Inverted Architecture Installation by Studio Link-Arc: Exploring the Intersection of Architecture and Living Organisms
Inverted Architecture Installation by Studio Link-Arc blends mycelium, sustainability, inverted design, ecological cycles, and urban adaptive architecture in Shenzhen.
Fifth NRE Jazz Club – De Bever Architecten: Eindhoven’s Revitalized Cultural Hub
Historic gas factory transformed into Fifth NRE Jazz Club blending modern sustainability, jazz culture, dining, and heritage architecture seamlessly.
Solar Steam: A Climate-Responsive Architecture That Redefines the Monument
A climate-responsive memorial architecture that transforms heat, decay, and time into a living system reflecting humanity’s ecological impact.
Similar Reads
You might also enjoy these articles
The Ken Roberts Memorial Delineation Competition (Krob)
As the most senior architectural drawing competition currently in operation anywhere in the world, it draws hundreds of entries each year, awarding the very best submissions in a series of medium-based categories.
Waterfront Redevelopment and Urban Revitalization in Mumbai: Forging a New Dawn for Darukhana
A transformative waterfront redevelopment project reimagining Darukhana’s shipbreaking heritage into an inclusive urban future.
OUT-OF-MAP: A Call for Postcards on Feminist Narratives of Public Space
Rhizoma Design and Research Lab invites artists, designers, architects, researchers, and students to reflect on how feminist perspectives can reshape public space. Selected works will be exhibited in Barcelona, October 2026. Submissions open until 15 April 2026.
Documentation Work on Buddhist Wooden Temple
Architectural syncretism and cultural hybridity: A comparative study of the Buddhist temples in Chattogram Hill tracks
Explore Architecture Competitions
Discover active competitions in this discipline
The International Standard for Design Portfolios
The Global Benchmark for Architecture Dissertation Awards
The Global Benchmark for Graduation Excellence
Challenge to reimagine the Iron Throne
Comments (0)
Please login or sign up to add comments
No comments yet. Be the first to comment!