Transforming Educational Environments: Flexible School Architecture at Brühl Solothurn School Complex
Discover the Brühl Solothurn School Complex by Kollektiv Marudo, a paradigm of flexible school architecture that enhances modern education in Switzerland.
The Brühl Solothurn School Complex, designed by Kollektiv Marudo, stands as a stellar example of flexible school architecture in Solothurn, Switzerland. Completed in 2022, this extension to an existing school complex showcases how architectural innovation can facilitate dynamic educational environments.



Architectural Concept and Design Strategy
Integration of Interior and Exterior Spaces
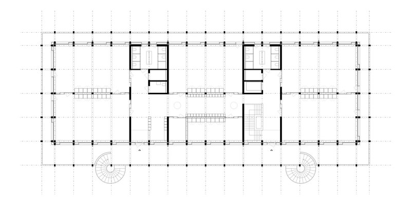
One of the key features of the Brühl Solothurn School Complex is its seamless integration of interior and exterior spaces. The design incorporates exterior staircases and an encompassing arcade that not only connects various parts of the school but also serves as a multifunctional space for access, meeting, and recreation. This thoughtful integration highlights the complex’s openness and accessibility, essential traits of modern educational architecture.



Structural and Architectural Flexibility
The school's architecture is built on a modular principle, using a concrete static framework that supports spatial flexibility. This modular approach is vital for adapting to various educational activities and future needs. The structure is designed to allow easy reconfiguration of learning spaces, supporting a progressive educational model where environments are tailored to enhance student interaction and learning.



Sustainable Features and Material Use
Eco-Friendly Construction
Sustainability is a core element of the Brühl Solothurn School Complex. The building employs a lightweight wooden construction for its façade elements, space-creating cabinets, and interior doors, which not only provides aesthetic warmth but also ensures environmental sustainability. The visible concrete skeleton combined with wood elements exemplifies a commitment to eco-friendly building practices.




Enhancing Natural Light and Ventilation
The design maximizes the use of natural light and encourages ventilation, reducing the need for artificial lighting and air conditioning. This not only creates a healthier learning environment but also reduces the building's energy consumption.


Impact on Educational Experience
Creating a Conducive Learning Environment
The flexible design of the Brühl Solothurn School Complex directly impacts the educational experience by providing versatile learning spaces that can be adapted as educational practices evolve. The open and fluid layout encourages a more collaborative and interactive form of education, moving away from traditional rigid classroom settings.



Community Interaction and Engagement
The school’s design fosters a strong sense of community by integrating shared spaces that encourage interaction among students, teachers, and visitors. The covered outdoor areas and interconnected spaces promote informal learning and social interaction, crucial for building social skills and community engagement among students.




A Model for Future School Designs
The Brühl Solothurn School Complex by Kollektiv Marudo is a benchmark in flexible school architecture. It not only addresses current educational needs but is also designed to adapt to future changes. This project illustrates the potential of architectural innovation to create dynamic, sustainable, and engaging educational environments. As schools continue to evolve, the principles demonstrated in the Brühl Solothurn School Complex will likely inspire future designs that prioritize flexibility, sustainability, and community engagement.



All photographs are work of Rasmus Norlander
Popular Articles
Popular articles from the community
Flamboyant House by Juliana Camargo + Prumo Projetos
Modern Brazilian house integrating existing tree, pool, and volumes with glass, wood, and transitional spaces blending interior, exterior, and landscape seamlessly.
The Ken Roberts Memorial Delineation Competition (Krob)
As the most senior architectural drawing competition currently in operation anywhere in the world, it draws hundreds of entries each year, awarding the very best submissions in a series of medium-based categories.
Treehouse Apartment: A Warm Timber Interior Blending Craft, Play, and Contemporary Living
Warm timber apartment with integrated treehouse, combining natural materials, craftsmanship, and playful design to create a flexible, family-oriented living environment.
Atelier Macri Concept Store Interior Design by CASE-REAL
Atelier Macri store features a "ko" counter, walnut wood details, cork displays, blending retail, gallery, and seamless customer experiences.
Similar Reads
You might also enjoy these articles
The Ken Roberts Memorial Delineation Competition (Krob)
As the most senior architectural drawing competition currently in operation anywhere in the world, it draws hundreds of entries each year, awarding the very best submissions in a series of medium-based categories.
Waterfront Redevelopment and Urban Revitalization in Mumbai: Forging a New Dawn for Darukhana
A transformative waterfront redevelopment project reimagining Darukhana’s shipbreaking heritage into an inclusive urban future.
OUT-OF-MAP: A Call for Postcards on Feminist Narratives of Public Space
Rhizoma Design and Research Lab invites artists, designers, architects, researchers, and students to reflect on how feminist perspectives can reshape public space. Selected works will be exhibited in Barcelona, October 2026. Submissions open until 15 April 2026.
Documentation Work on Buddhist Wooden Temple
Architectural syncretism and cultural hybridity: A comparative study of the Buddhist temples in Chattogram Hill tracks
Explore Architecture Competitions
Discover active competitions in this discipline
The International Standard for Design Portfolios
The Global Benchmark for Architecture Dissertation Awards
The Global Benchmark for Graduation Excellence
Challenge to design public laboratory
Comments (0)
Please login or sign up to add comments
No comments yet. Be the first to comment!