Westergaarden: A Summer House Shaped by Wind
N+P Architecture designs a sharply defined holiday house on Denmark's Sjællands Odde coastline, balancing openness and shelter in equal measure.
The Danish summer house has long occupied a particular position in Scandinavian residential culture: modest in scale, intimate in ambition, and deeply entangled with the landscape it occupies. At Sjællands Odde, a narrow peninsula jutting into the Kattegat between Zealand and Jutland, the conditions are specific. Wind is constant, vegetation is hardy and wind-sculpted, and the horizon line between land and sea is thin. Westergaarden, completed in 2022 by N+P Architecture, takes these conditions seriously, producing a 170 m² holiday house that reads less as an object placed in a field and more as an inhabitable threshold between exposure and refuge.
What makes the project worth studying is its refusal to treat shelter and openness as opposites. The house's L-shaped plan creates a protected courtyard while its full-height glazing dissolves walls into landscape views. Corrugated metal and vertical timber cladding give the exterior a utilitarian directness, but inside, the material palette shifts to dark oak cabinetry, polished concrete floors, and layered curtains that filter coastal light into something soft and inhabitable. The tension between these two registers, the rough and the refined, is where the architecture lives.
A Landscape Strategy, Not Just a Building



Before you even register the architecture, you see the landscape. Windswept pines lean permanently in the direction of the prevailing breeze. Dry coastal grasses carpet the ground. The calm water of the Kattegat sits low on the horizon. Westergaarden is deliberately horizontal, a single-story volume that never competes with the tree canopy or the sky. From a distance, its corrugated metal roof and muted timber walls recede into the scene.
The siting is the first design decision and arguably the most important one. By keeping the profile low and stretching the plan along the terrain, the house avoids becoming a landmark. It is a companion to the pines, not a competitor.
Timber and Metal: An Honest Skin



The exterior cladding alternates between vertical timber boards and standing-seam corrugated metal. Neither material pretends to be anything it isn't. The timber will grey and weather; the metal will resist the salt air. Together, they create a facade language that borrows from the agricultural and maritime vernacular of the Danish coast without becoming nostalgic about it.
Look at the entrance sequence: stepping stones set in gravel lead to a timber-slatted wall where the door is all but concealed. There is no grand gesture, no canopy or portico announcing arrival. The house asks you to slow down and find your way in, which is exactly the right mood for a holiday.
The Courtyard as Protected Room



The L-shaped plan wraps around a timber-decked courtyard that functions as the social heart of the house. Shielded from the prevailing wind by the building's own mass, this outdoor room is furnished with dining furniture, lounge chairs, and string lights strung beneath overhanging branches. It is the kind of space that extends a Scandinavian summer evening for as long as possible.
The standing-seam metal roofs of the two wings are visible through glazed corner openings, reinforcing the sense that you are inside a composition of volumes rather than a single box. The courtyard reads as the missing piece of the plan, a void that gives the solid forms their logic.
Inside, Out: Glazing and Threshold



Full-height glazing appears throughout the house, but it is never simply a wall of glass. Sliding doors open the living areas directly onto timber decks. Interior corridors are flanked on one side by floor-to-ceiling windows and on the other by timber-clad storage walls, creating a layered experience of movement. You are always walking alongside the landscape, not just looking at it.
The sheer curtains that appear in nearly every room are a critical detail. They diffuse the coastal light and soften the boundary between inside and outside, turning the glazing from a transparent wall into a luminous membrane. In a climate where summer light can be simultaneously flat and intense, this kind of control matters.
Dark Timber, Polished Concrete, Filtered Light



The interior material palette is restrained and warm. Dark oak cabinetry dominates the kitchen and storage walls, its grain visible and tactile. Polished concrete floors run continuously through the house, unifying rooms and corridors into a single ground plane. A slatted timber ceiling adds rhythm and texture overhead without breaking the calm.
The kitchen island is the best example of the house's approach to craft. Integrated sinks, built-in ovens, and a recessed espresso niche with open shelving are all handled with the same dark timber and minimal hardware. Nothing is decorated; everything is resolved. The result is a space that feels considered rather than styled.
Living with Detail



Several details across the house reveal the care behind the apparent simplicity. Floor-to-ceiling storage walls use recessed handles that keep surfaces flush and continuous. A concrete skylight shaft introduces a narrow band of zenithal light above a pleated grey curtain, turning a functional element into a quiet moment of spatial drama. Wardrobe doors in dark oak meet pale plaster walls with the kind of precision that only reads as effortless because it isn't.
Private Rooms: Restraint Carried Through



The bathrooms continue the material discipline of the public spaces. Floating dark timber vanities support rectangular vessel sinks, set against grey plaster walls and black-framed mirrors. Black tapware and brass fittings provide just enough metallic contrast. A dark marble countertop with prominent veining appears at one vanity, the single moment of geological richness in an otherwise wood-and-concrete world.
These are not luxury bathrooms in the hotel sense. They are summer house bathrooms that happen to be very well made. The distinction matters: comfort here comes from material quality and spatial proportion, not from excess.
Outdoor Living: Decks and Edges



Beyond the courtyard, additional decks and seating areas extend the house's footprint into the landscape. Metal-framed seating beneath the sloped roof overhang, glass doors reflecting surrounding greenery, and upholstered lounge furniture on pale wood decking all suggest a house designed for occupation well beyond its interior walls. The transition from inside to outside is calibrated in layers: concrete floor, threshold, timber deck, gravel, grass, sky.
Even the interior corridors participate. One dark, slatted passage tapers toward a doorway lit by a narrow strip of light, creating a compression that makes the eventual release into an outdoor room all the more effective.
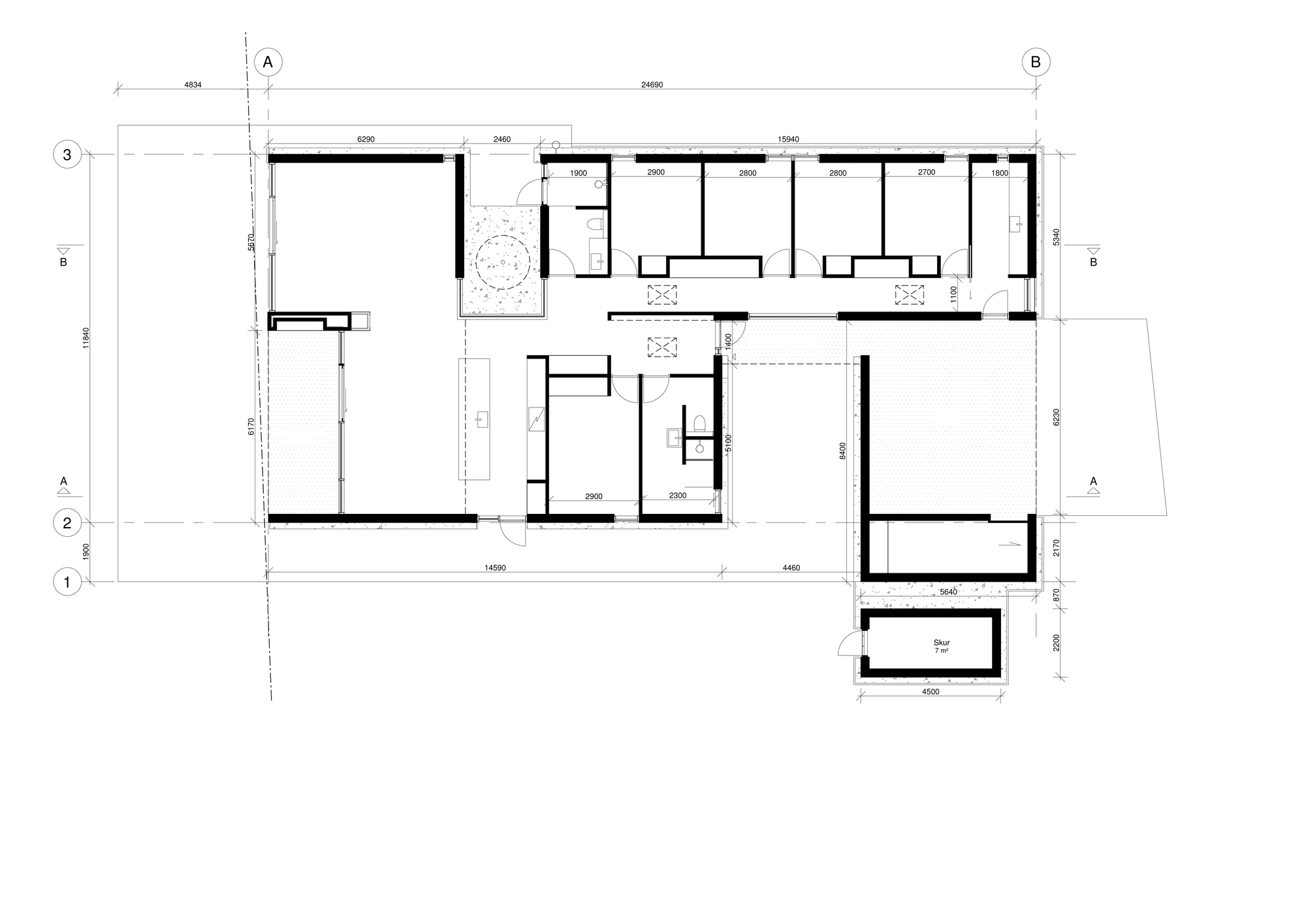
Plans and Drawings


The floor plan confirms what the experience suggests: an L-shaped layout that wraps around a courtyard, with a circular element hinting at a landscape gesture or planting bed that anchors the outdoor room. The arrangement separates public living spaces from private bedrooms while keeping all rooms oriented toward either the courtyard or the broader landscape. Circulation is handled along the glazed corridors rather than through the rooms themselves, preserving the privacy of each space while maintaining visual continuity with the terrain.
Why This Project Matters
Westergaarden is not trying to reinvent the Danish summer house. It is trying to get one right, which is harder. The building responds to wind, light, and vegetation with moves that are specific to this site, not imported from a catalog of gestures. Its material palette is durable and honest. Its plan creates shelter without closing off the landscape. These are not revolutionary ideas, but they are executed here with a precision and consistency that elevates the project above the average coastal retreat.
In a market saturated with summer houses that either fetishize minimalism or dress up in barn chic, N+P Architecture has produced something grounded. Westergaarden earns its quiet authority by doing what good architecture has always done: reading the conditions of a place, responding with clarity, and knowing when to stop.
Westergaarden Summer House by N+P Architecture (Jesper Korf, Lars Bo Poulsen, Thomas Nørkær). Sjællands Odde, Denmark. 170 m². Completed 2022. Photography by Nicolaj B.
About the Studio
Share Your Own Work on uni.xyz
If projects like this are the kind of work you want to make, uni.xyz is a place to publish your own, find collaborators, and enter design competitions.
Popular Articles
Popular articles from the community
TGK Nirasaki Plant: A Smart Factory Blending Technology, Landscape, and Wellness
Smart factory in Japan blending IoT manufacturing, scenic trail design, natural ventilation, and landscape integration to enhance user experience and sustainability.
Magic Box Office Barcelona Innovative Sustainable Workplace Design
Innovative sustainable office design featuring triangular form, ceramic façade, flexible interiors, natural light optimization, and creative workspace for modern work culture.
Gads Hill Early Learning Center by JGMA: Adaptive Reuse Shaping Community-Focused Educational Architecture
Adaptive reuse transforms fragmented structure into vibrant early learning center with playful façade, natural light, and community-focused sustainable design.
Similar Reads
You might also enjoy these articles
20 Most Popular Commercial Architecture Projects of 2025
From sustainable market concepts to heritage factories, the commercial buildings and proposals that drew the most attention on uni.xyz this year.
Magic Box Office Barcelona Innovative Sustainable Workplace Design
Innovative sustainable office design featuring triangular form, ceramic façade, flexible interiors, natural light optimization, and creative workspace for modern work culture.
Mantiqueira House by SysHaus and M Magalhães Estúdio
A linear modular house embedded in Serra da Mantiqueira, integrating panoramic views, sustainable prefabrication, minimal terrain impact, and contemporary interiors.
Guardia di Finanza Office Building by DEMOGO
Stepped institutional office in Bologna integrates terraces, red-toned facade, and linear staircase, reconnecting military complex with surrounding urban landscape.
Comments (0)
Please login or sign up to add comments
No comments yet. Be the first to comment!