Wood Up Tower: A Sustainable Architectural Landmark by LAN Architecture in Paris
Wood Up Tower redefines sustainable urban living with timber construction, innovative design, and community-focused architecture in Paris.
Wood Up Tower, designed by LAN Architecture, is an innovative and sustainable residential project that redefines urban living in Paris. Situated in the Massena-Bruneseau sector of Paris Rive Gauche, this 8,949-square-meter timber tower is a cornerstone of the city’s evolving urban landscape. Combining sustainability with modern architectural practices, the Wood Up Tower harmonizes urban connectivity, residential comfort, and environmental responsibility.



Integrating Urbanity and Connectivity
The Wood Up Tower plays a critical role in Paris Rive Gauche, a large-scale urban project transforming the eastern side of the 13th arrondissement. This initiative emphasizes creating connections between the neighborhoods of the 13th arrondissement and the Seine, as well as bridging Paris and Ivry.


Situated along the Seine and Boulevard du Général d'Armée Jean Simon, the tower integrates seamlessly into the surrounding urban landscape. Its design considers the area's road infrastructure, spacing between buildings, and elevation changes, ensuring the tower complements its metropolitan environment. The architectural vision creates a fluid connection between cityscapes, acting as both a functional structure and a visual landmark.


A New Standard for Collective Housing
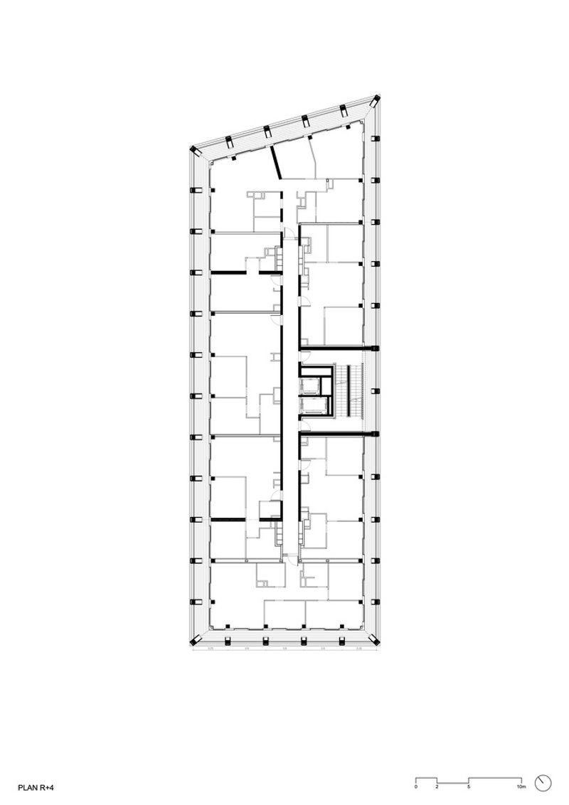
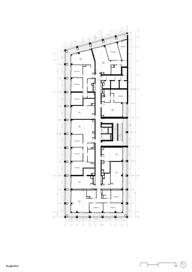
At its core, the Wood Up Tower exemplifies a modern approach to collective housing. Designed to offer the advantages of single-family homes within a community setting, the tower blends privacy, independence, and communal spaces. Each unit is crafted with attention to light, space, and flexibility, ensuring residents enjoy maximum comfort and adaptability in their living spaces.


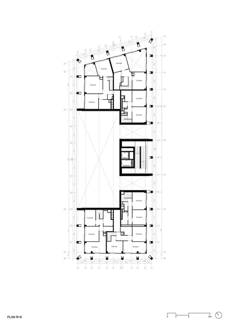
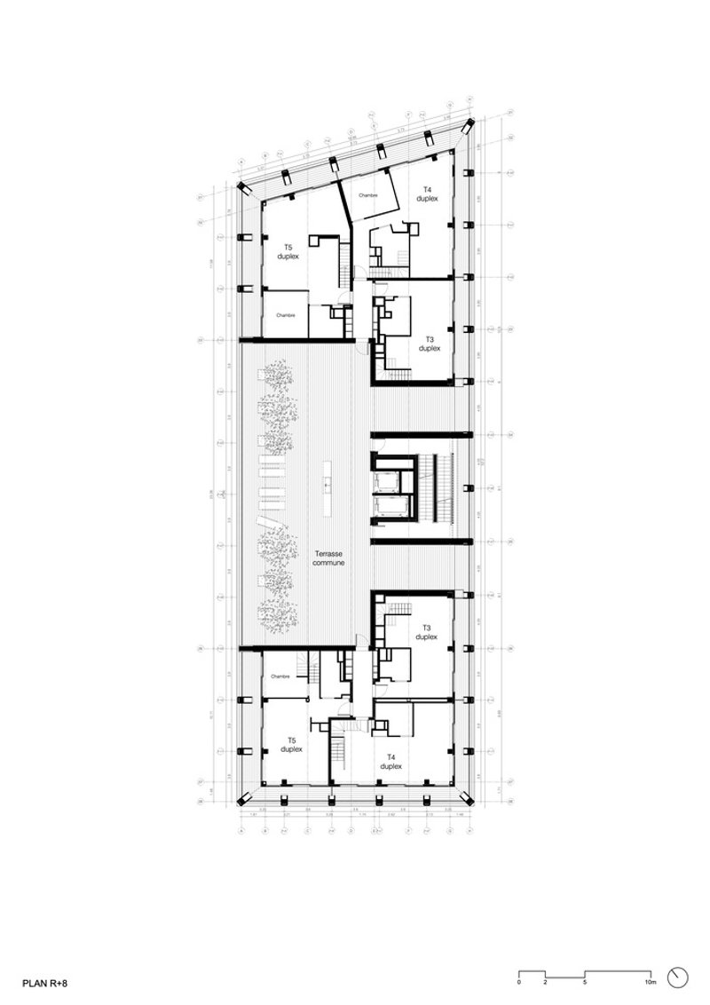
The 132-unit tower features a unique typology, alternating larger apartments with smaller units and duplexes. This innovative arrangement fosters diversity and long-term adaptability. Residents have access to over 1,700 square meters of outdoor spaces, including private terraces and communal gardens, enhancing the connection between indoor and outdoor living.


Communal Spaces for Interaction and Enjoyment
The tower emphasizes community through thoughtfully designed shared spaces. A standout feature is the 300-square-meter terrace on the 8th floor, offering panoramic views of Paris and Ivry. This versatile space, comparable to a tennis court in size, is a hybrid between a loggia, courtyard, and event area. It accommodates both daily activities and larger gatherings for up to 300 people.


Residents can also enjoy modular furniture crafted from recycled wood, further underscoring the project’s commitment to sustainability. These communal spaces create opportunities for interaction, fostering a sense of belonging and community among residents.


Pioneering Sustainable Architecture
Wood Up Tower is one of France’s first timber buildings to exceed typical height limits, marking a significant milestone in sustainable architecture. The project showcases how wood, as a building material, can contribute to combating climate change. Timber not only absorbs and retains CO2 but is also a renewable resource when sourced from sustainably managed forests.

The tower utilizes locally sourced wood certified by PEFC and FSC standards, minimizing its environmental impact and supporting the local economy. The use of prefabrication techniques enables efficient construction, reducing energy consumption and project timelines.

Innovative Structural Design
The tower’s structure incorporates a blend of materials, optimizing the unique properties of each for maximum efficiency and durability. The foundation and base are constructed from concrete, while the primary load-bearing framework features glulam posts and beams. A central core and wall elements provide additional stability, while the mixed wood and concrete floors enhance structural integrity.


Beech, a dense hardwood, is used for interior posts due to its excellent compression resistance, while spruce beams offer superior bending strength. Douglas fir, known for its resistance to humidity, is used for exterior posts and encapsulation elements. These materials are carefully selected and combined to ensure longevity and environmental sustainability.


A Vision for Sustainable Urban Living
Wood Up Tower represents a paradigm shift in urban architecture. By prioritizing sustainability, community interaction, and innovative design, it sets a new standard for residential living in dense urban environments. The project exemplifies how architecture can address pressing environmental challenges while enhancing quality of life for its inhabitants.

As a model of sustainable construction, Wood Up Tower redefines the role of architecture in modern cities, paving the way for a greener, more connected future.

All Photographs are works of Daisy Reillet, Charly Broyez, Nicolas Grosmond
Popular Articles
Popular articles from the community
Alton Cliff House: A Harmonious Retreat by f2a Architecture in Lake Country, Canada
Alton Cliff House blends corten steel, prefabrication, and sustainable design, creating a luxurious, energy-efficient retreat perched on Canadian cliffs.
Atelier Macri Concept Store Interior Design by CASE-REAL
Atelier Macri store features a "ko" counter, walnut wood details, cork displays, blending retail, gallery, and seamless customer experiences.
Split House: A Compact Urban Home Blending Privacy, Light, and Flexible Living in Japan
Compact Japanese home featuring DOMA space, flexible café potential, passive lighting, privacy zoning, and sustainable urban living design.
Free Architecture Competitions You Can Enter Right Now
No entry fees, real prizes. Here are the best free architecture competitions open for submissions in 2026.
Similar Reads
You might also enjoy these articles
The Ken Roberts Memorial Delineation Competition (Krob)
As the most senior architectural drawing competition currently in operation anywhere in the world, it draws hundreds of entries each year, awarding the very best submissions in a series of medium-based categories.
Waterfront Redevelopment and Urban Revitalization in Mumbai: Forging a New Dawn for Darukhana
A transformative waterfront redevelopment project reimagining Darukhana’s shipbreaking heritage into an inclusive urban future.
OUT-OF-MAP: A Call for Postcards on Feminist Narratives of Public Space
Rhizoma Design and Research Lab invites artists, designers, architects, researchers, and students to reflect on how feminist perspectives can reshape public space. Selected works will be exhibited in Barcelona, October 2026. Submissions open until 15 April 2026.
Documentation Work on Buddhist Wooden Temple
Architectural syncretism and cultural hybridity: A comparative study of the Buddhist temples in Chattogram Hill tracks
Explore Architecture Competitions
Discover active competitions in this discipline
The International Standard for Design Portfolios
The Global Benchmark for Architecture Dissertation Awards
The Global Benchmark for Graduation Excellence
Challenge to reimagine the Iron Throne
Comments (0)
Please login or sign up to add comments
No comments yet. Be the first to comment!