Adaptive Reuse Architecture in Coworking Spaces: The Alenya Project by OMA Octavio Mestre Arquitectos
The Alénya coworking project revitalizes historic wineries into functional coworking spaces through adaptive reuse and modular design.
Transforming Historic Wineries into Modern Workspaces
In the heart of Alénya, France, a remarkable architectural transformation has taken place in Les Caves Ecoiffier, a historic set of 19th-century wineries. These old structures, characterized by their robust wooden beams stretching from façade to façade, have been reimagined into a modern coworking space by OMA Octavio Mestre Arquitectos. This project highlights the essence of adaptive reuse architecture, blending the charm of the past with the functionality required by the dynamic needs of local start-ups and young companies.




Revitalizing Historic Spaces with a Purpose
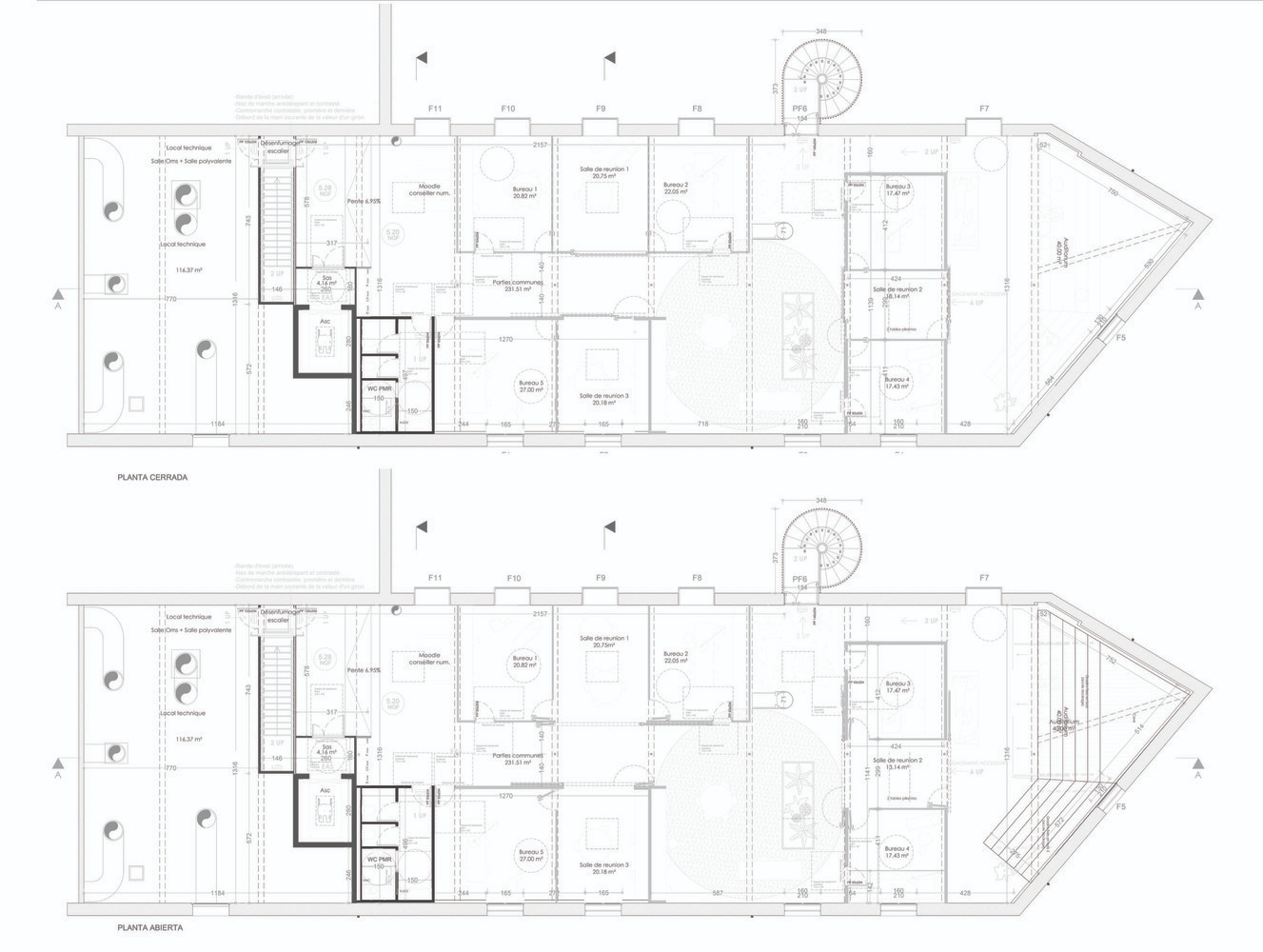
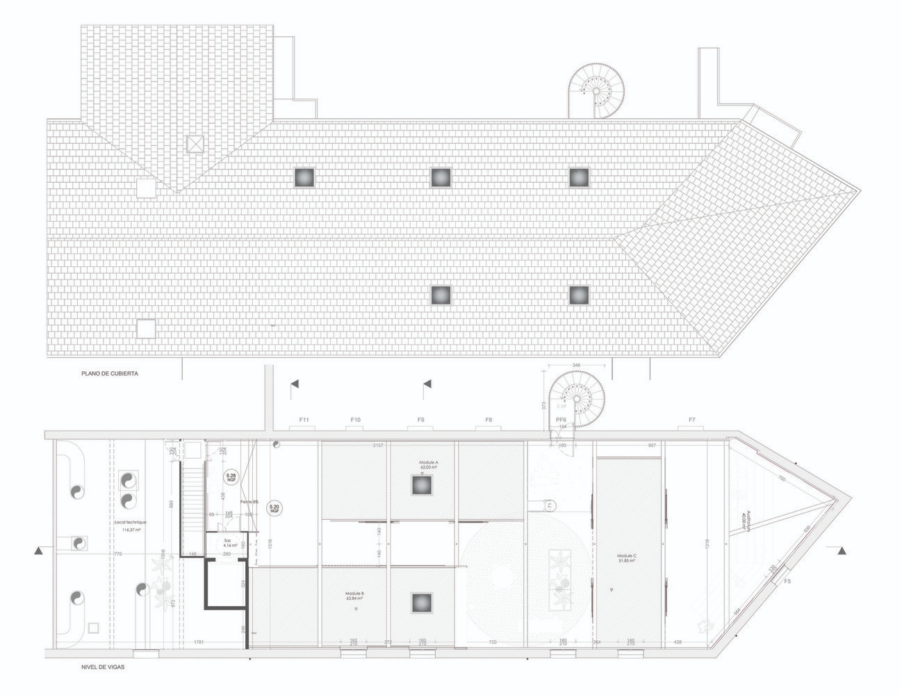
The architectural intervention involved significant modifications to adapt the space to its new purpose. Openings were introduced into the rear façade, incorporating corten steel window boxes that provide both aesthetic appeal and functional use. Similarly, the roof was punctuated with skylights designed for optimal solar control, bringing natural light into what was once a dimly lit interior.


These thoughtful interventions not only brighten the space but also enhance its usability for its new role as a flexible coworking environment. The contrast between old and new materials underscores the creative vision behind the project.



Modular Design for Maximum Flexibility
Flexibility is at the heart of this coworking space's design. The architects established a series of modular workstations, many of which are mobile and adaptable to meet a variety of user needs. Sliding doors allow these modules to be connected or separated as required, creating spaces that can evolve with the demands of its users.


At the end of the main hall, a small stand serves as a venue for presentations and community events, fostering collaboration among users. This versatility ensures the space remains dynamic and responsive to the diverse needs of the community it serves.


Sculptural Staircases and Recreational Spaces
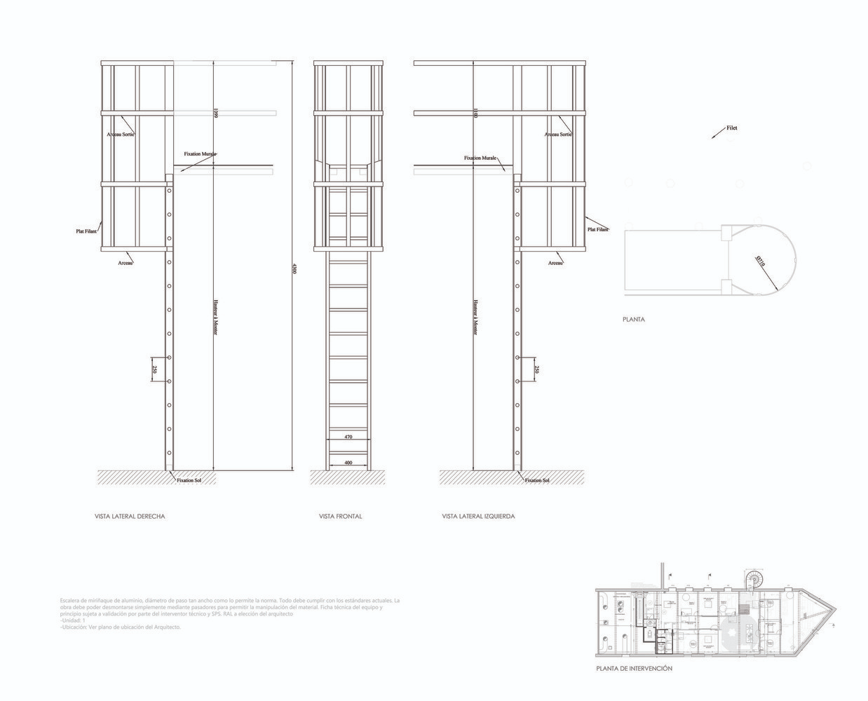
One of the standout features of the project is the emergency staircase on the rear façade. Designed to meet regulatory requirements, the staircase becomes a sculptural element, harmonizing with the newly added windows and serving as a visual focal point.

Above the coworking space, the architects proposed recreational areas at the level of the wooden beams. Initially envisioned as a series of hanging networks for relaxation and providing a unique spatial perspective, these elements ultimately faced regulatory challenges and were not implemented. However, this concept reflects the innovative and user-centered approach of the design.

Material Harmony and Spatial Contrast
The design deliberately juxtaposes new and old materials to create a dialogue between past and present. Exposed concrete flooring contrasts with the warmth of the new wooden modules, while the original stone walls and wooden roof beams remain visible, preserving the historic character of the building.


This careful balance between modern interventions and the preservation of historical elements reflects a sensitive approach to adaptive reuse, ensuring the building retains its unique identity while meeting contemporary functional needs.


A Community-Centric Architectural Achievement
The coworking space in Alénya is not just an example of adaptive reuse but also a community-focused project. As one of three public tenders won by OMA Octavio Mestre Arquitectos in France in recent years, this project serves as a model for revitalizing underutilized historic spaces for modern purposes.


By blending innovation, sustainability, and respect for heritage, the Alénya coworking space demonstrates the potential of architecture to breathe new life into old structures, creating environments that inspire and foster creativity.


The Alénya coworking project by OMA Octavio Mestre Arquitectos exemplifies the power of adaptive reuse architecture. Through thoughtful interventions, modular design, and a focus on community needs, the architects have transformed a historic winery into a vibrant and functional coworking space. This project is a testament to the ability of architecture to merge history with innovation, creating spaces that honor the past while embracing the future.



All Photographs are work of Adrià Goula
Popular Articles
Popular articles from the community
An Miên Lumière Cafe by xưởng xép, Ho Chi Minh City, Vietnam
An industrial-inspired café where layered steel and warm light create a dynamic, immersive environment shaped by reflection, depth, and perception.
Treehouse Apartment: A Warm Timber Interior Blending Craft, Play, and Contemporary Living
Warm timber apartment with integrated treehouse, combining natural materials, craftsmanship, and playful design to create a flexible, family-oriented living environment.
Louis Malle Cinema: A Limestone Cultural Landmark Revitalizing Community Life in Prayssac
Limestone cinema extension with public forecourt, blending heritage and modern design to create flexible cultural spaces and strengthen community interaction.
On the Brooks House by Monsoon Collective – A Contemporary Kerala Home Rooted in Tradition
Kerala home blending tradition and modernity with water-inspired design, brick architecture, courtyard planning, and sustainable rainwater harvesting strategies.
Similar Reads
You might also enjoy these articles
The Ken Roberts Memorial Delineation Competition (Krob)
As the most senior architectural drawing competition currently in operation anywhere in the world, it draws hundreds of entries each year, awarding the very best submissions in a series of medium-based categories.
Waterfront Redevelopment and Urban Revitalization in Mumbai: Forging a New Dawn for Darukhana
A transformative waterfront redevelopment project reimagining Darukhana’s shipbreaking heritage into an inclusive urban future.
OUT-OF-MAP: A Call for Postcards on Feminist Narratives of Public Space
Rhizoma Design and Research Lab invites artists, designers, architects, researchers, and students to reflect on how feminist perspectives can reshape public space. Selected works will be exhibited in Barcelona, October 2026. Submissions open until 15 April 2026.
Documentation Work on Buddhist Wooden Temple
Architectural syncretism and cultural hybridity: A comparative study of the Buddhist temples in Chattogram Hill tracks
Explore Architecture Competitions
Discover active competitions in this discipline
The International Standard for Design Portfolios
The Global Benchmark for Architecture Dissertation Awards
The Global Benchmark for Graduation Excellence
Challenge to reimagine the Iron Throne
Comments (0)
Please login or sign up to add comments
No comments yet. Be the first to comment!