Adaptive Reuse Coffee Shop Architecture: District 27 by INS Studio in Indonesia
This article explores the adaptive reuse of a former clinic into District 27 Coffee Shop, blending sustainability and spatial transformation.
Introduction to Adaptive Reuse in Coffee Shop Architecture
Adaptive reuse has become a leading approach in sustainable architecture, merging environmental responsibility with spatial creativity. District 27 Coffee Shop in Indonesia, designed by INS Studio, is a prime example of this architectural philosophy. Situated in a repurposed medical laboratory, the project transforms a defunct health clinic into a vibrant community hub and coffee destination.



From Medical Lab to Community Coffee Space
The original structure was a medical laboratory, part of a health clinic that had ceased operations. Instead of demolishing the building, the new tenant saw an opportunity to inject new life into the site by converting it into a community coffee shop. This transformation not only conserved the existing structural framework but also reduced material waste—demonstrating the core values of adaptive reuse architecture.



West-Facing Façade and Sunlight Control
Facing west, the building’s façade was subjected to harsh afternoon sunlight. To moderate this exposure, the architects introduced frosted glass blocks and curved concrete walls. These interventions diffuse sunlight while casting dynamic shadows across the front of the building from midday to evening. The result is a softened, filtered ambiance that reduces solar heat gain while enriching the visual quality of the architecture.



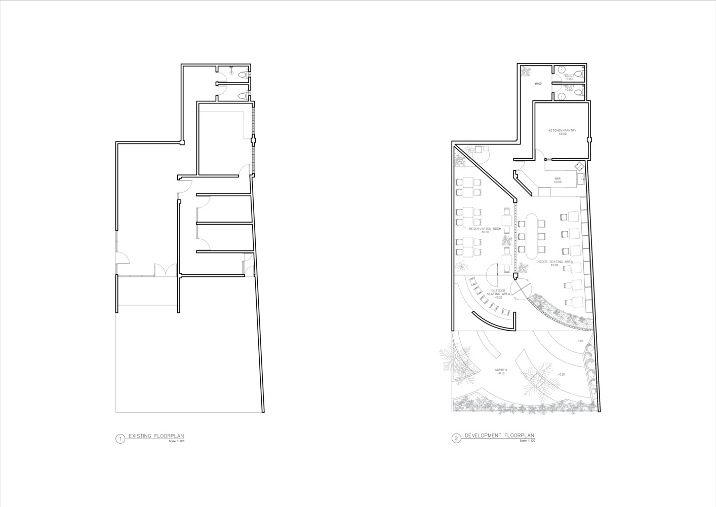
Interior Layout and Spatial Strategy
INS Studio worked with the constraints of the existing floor plan and partitions to create an efficient and inviting layout. Given the limited footprint of 216 m², the designers divided the interior into two seating zones using frosted glass block walls. These partial partitions provide both visual privacy and a sense of openness, ensuring the space feels intimate yet unconfined.



The coffee bar was strategically placed at the center of the space, becoming the architectural and operational focal point. This positioning ensures a direct connection with the kitchen and service areas, streamlining workflow while enhancing customer engagement.



Spatial Optimization Through Design Details
A previously underutilized “dead corner” was transformed into a popular “mirror selfie” zone. A large mirror not only draws attention to this zone but also amplifies the perception of space, making the café feel larger and more immersive. This design decision blends functionality with contemporary social behaviors, tapping into the visual culture of café-goers.



Material Expression and Local Identity
The entire exterior was treated with a cement finish tinted in terracotta. This finish reflects the dominant color palette of the local urban environment while distinguishing the café from neighboring structures. The choice of terracotta not only strengthens the building’s identity but also references Indonesia’s material heritage, grounding the design in a sense of place.


A New Life Through Adaptive Reuse Coffee Shop Architecture
District 27 Coffee Shop exemplifies how adaptive reuse architecture can offer sustainable, community-oriented, and visually compelling solutions. INS Studio’s sensitive approach to repurposing an abandoned clinic into a social space embraces environmental efficiency and design intelligence. Through strategic spatial planning, material honesty, and climate response, this coffee shop demonstrates the power of architectural transformation through reuse.


All the photographs are works of Akasa Rana
Popular Articles
Popular articles from the community
Louis Malle Cinema: A Limestone Cultural Landmark Revitalizing Community Life in Prayssac
Limestone cinema extension with public forecourt, blending heritage and modern design to create flexible cultural spaces and strengthen community interaction.
Treehouse Apartment: A Warm Timber Interior Blending Craft, Play, and Contemporary Living
Warm timber apartment with integrated treehouse, combining natural materials, craftsmanship, and playful design to create a flexible, family-oriented living environment.
Gads Hill Early Learning Center by JGMA: Adaptive Reuse Shaping Community-Focused Educational Architecture
Adaptive reuse transforms fragmented structure into vibrant early learning center with playful façade, natural light, and community-focused sustainable design.
On the Brooks House by Monsoon Collective – A Contemporary Kerala Home Rooted in Tradition
Kerala home blending tradition and modernity with water-inspired design, brick architecture, courtyard planning, and sustainable rainwater harvesting strategies.
Similar Reads
You might also enjoy these articles
Bamboo Housing Challenge 2026: Design Affordable, Sustainable Homes Using Bamboo
An international design competition by Bamboo U and IBUKU inviting architects and designers to reimagine affordable housing using bamboo — with the winning design built full-scale in Bali.
Computational Design & Education: Beegraphy Design Awards Introduces 7th Category (Featuring Jiyun's Innovative Approach)
Dive into Beegraphy’s 7th Design Awards category, where computational design meets education to create immersive, interactive learning tools, inspired by Jiyun’s work.
From Parametric Lighting to Urban Furniture: Join the 2nd Workshop in Beegraphy’s Computational Design Series
Dive into Cutting-Edge Design Techniques and Practical Applications with Industry Experts
Introducing Sphere by UNI: Pioneering a New Era in AEC Industry
Unlocking Global Potential with BIM and Agile Management
Explore Architecture Competitions
Discover active competitions in this discipline
The International Standard for Design Portfolios
The Global Benchmark for Architecture Dissertation Awards
The Global Benchmark for Graduation Excellence
Challenge to reimagine the Iron Throne
Comments (0)
Please login or sign up to add comments
No comments yet. Be the first to comment!