Aga Khan Academy by SHATOTTO and Feilden Clegg Bradley Studios: A Landmark in Sustainable School Architecture in Dhaka
Aga Khan Academy in Dhaka is a visionary school that blends sustainable architecture with cultural and environmental learning.
Reimagining Education through Contextual Architecture
The Aga Khan Academy in Dhaka, Bangladesh, designed in collaboration between SHATOTTO architecture for green living and UK-based Feilden Clegg Bradley Studios (FCBS), stands as a monumental example of sustainable school architecture in Dhaka. Rooted in local heritage yet innovatively modern, this project presents a bold architectural vision that blends environmental consciousness with the cultural and educational needs of a rapidly urbanizing city.




Inspired by Ancient Wisdom
The design draws from the architectural philosophy of ancient Buddhist Mahaviharas, adapting their emphasis on spatial harmony, introspection, and natural interaction into a 21st-century academic environment. Set on a vast 74,150 square meter plot beside one of Dhaka’s busy roads, the Academy offers a serene refuge within the city's dense urban fabric.




A Green Lung in the City
The campus is planned as a green lung—a self-sustaining ecosystem of courtyards, open spaces, and shaded pathways. Carefully composed with exposed brick, the architecture is highly responsive to Dhaka's tropical climate. The layout allows cooling summer winds to circulate while welcoming the soft winter sun. The use of brickwork not only pays homage to local building traditions but also enhances thermal performance and durability.




The Maidan: A Heart of Reflection
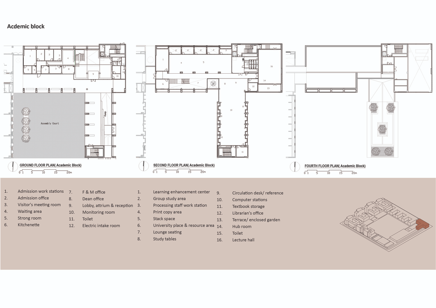
At the core of the campus lies the Maidan, a large central green inspired by historical courtyards in Buddhist monastic architecture. It functions not just as a gathering space but as a spiritual and visual anchor, promoting contemplation and community. Surrounding it are various academic buildings that frame smaller, age-specific courtyards designed with precise climatic and social intent.



Courtyards as Learning Spaces
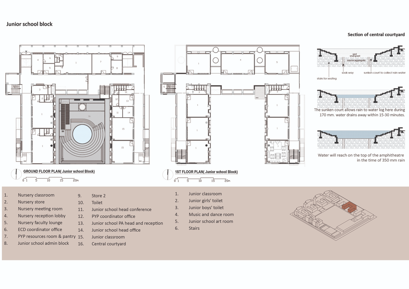
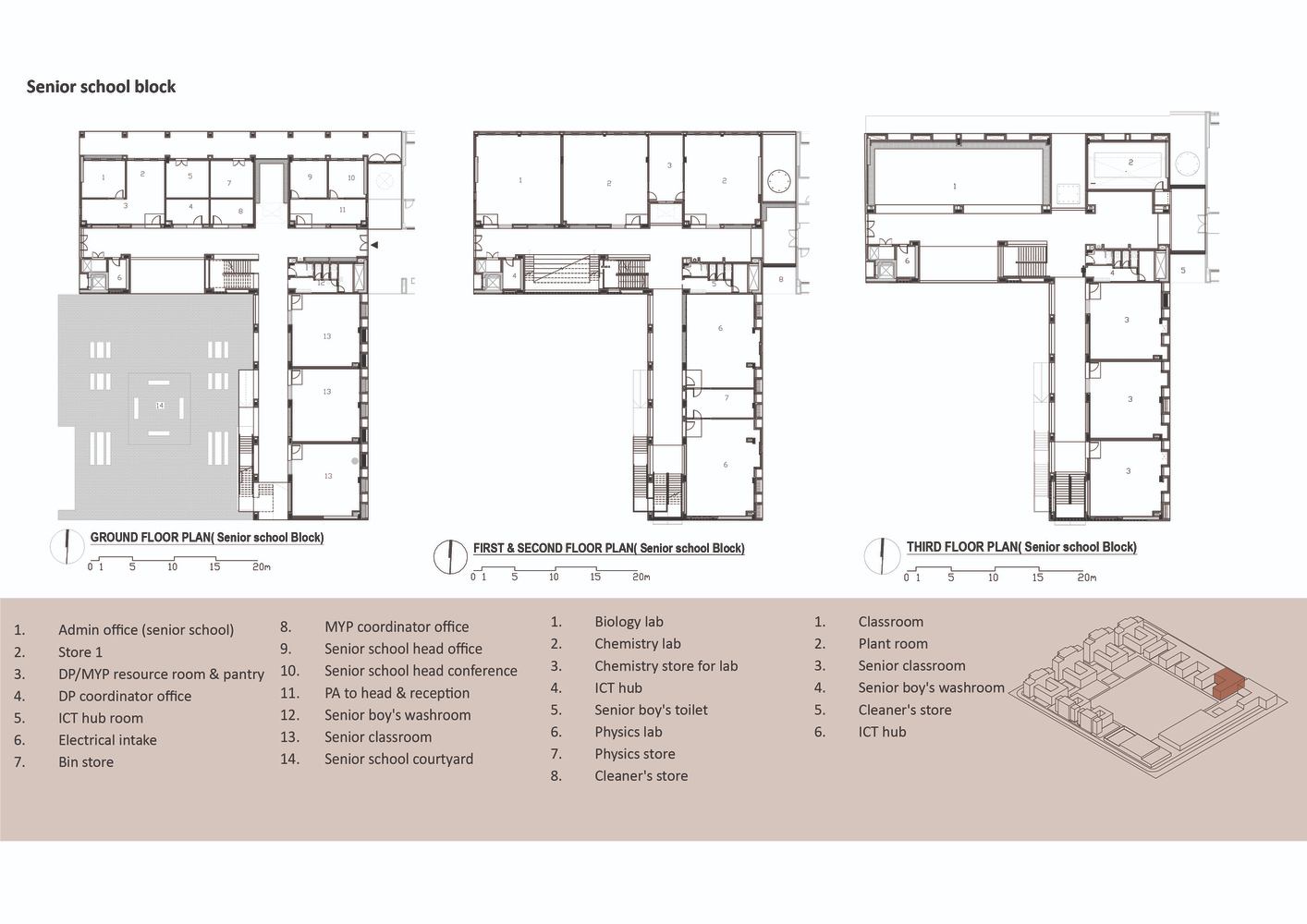
Each courtyard supports different learning modes based on student age groups. The senior courtyard, shaded by planted trees, fosters informal group gatherings. In contrast, the assembly courtyard near the academic block is intentionally open, defined only by four Dhaak trees—an homage to Dhaka’s botanical origins. These spaces promote a didactic approach to learning, where children observe and interact with nature directly.




Nature as an Educational Tool
Sustainability at the Aga Khan Academy goes beyond material choices. The site integrates landscape and architecture to reinforce environmental awareness among students. A sand pit within the amphitheater transforms into a temporary pond during monsoon rains, encouraging children to celebrate the seasonal rhythm of water. Such spatial narratives encourage playful, immersive learning and deepen respect for natural processes.



Modern Infrastructure with Traditional Sensibility
Despite its ancient inspirations, the academy is equipped with state-of-the-art infrastructure. Passive cooling techniques, open ventilation corridors, and strategic shading are integrated seamlessly into the architecture. The collaboration between SHATOTTO and FCBS ensured that global design standards were met while deeply rooting the project in local culture and construction techniques.


A Vision for the Future of Learning
The Aga Khan Academy is not just a school; it is an architectural statement about how education, culture, and sustainability can intersect meaningfully. By balancing historical reverence with modern needs, it sets a precedent for sustainable school architecture in Dhaka and beyond. It invites architects, educators, and urban planners to reconsider the future of academic environments—places that nurture not only knowledge but also environmental stewardship and cultural identity.



All Photographs are works of Asif salman, Sarker Protick, SHATOTTO architecture for green living
Popular Articles
Popular articles from the community
Atelier Macri Concept Store Interior Design by CASE-REAL
Atelier Macri store features a "ko" counter, walnut wood details, cork displays, blending retail, gallery, and seamless customer experiences.
Flamboyant House by Juliana Camargo + Prumo Projetos
Modern Brazilian house integrating existing tree, pool, and volumes with glass, wood, and transitional spaces blending interior, exterior, and landscape seamlessly.
The Ken Roberts Memorial Delineation Competition (Krob)
As the most senior architectural drawing competition currently in operation anywhere in the world, it draws hundreds of entries each year, awarding the very best submissions in a series of medium-based categories.
Treehouse Apartment: A Warm Timber Interior Blending Craft, Play, and Contemporary Living
Warm timber apartment with integrated treehouse, combining natural materials, craftsmanship, and playful design to create a flexible, family-oriented living environment.
Similar Reads
You might also enjoy these articles
Bamboo Housing Challenge 2026: Design Affordable, Sustainable Homes Using Bamboo
An international design competition by Bamboo U and IBUKU inviting architects and designers to reimagine affordable housing using bamboo — with the winning design built full-scale in Bali.
Computational Design & Education: Beegraphy Design Awards Introduces 7th Category (Featuring Jiyun's Innovative Approach)
Dive into Beegraphy’s 7th Design Awards category, where computational design meets education to create immersive, interactive learning tools, inspired by Jiyun’s work.
From Parametric Lighting to Urban Furniture: Join the 2nd Workshop in Beegraphy’s Computational Design Series
Dive into Cutting-Edge Design Techniques and Practical Applications with Industry Experts
Introducing Sphere by UNI: Pioneering a New Era in AEC Industry
Unlocking Global Potential with BIM and Agile Management
Explore Architecture Competitions
Discover active competitions in this discipline
The International Standard for Design Portfolios
The Global Benchmark for Architecture Dissertation Awards
The Global Benchmark for Graduation Excellence
Challenge to reimagine the Iron Throne
Comments (0)
Please login or sign up to add comments
No comments yet. Be the first to comment!