Artisanal Cheese Cultural Center Architecture: A Celebration of Gastronomy and Design in Belo Horizonte
The article explores the architectural design and cultural significance of the Artisanal Cheese Cultural Center in Belo Horizonte.
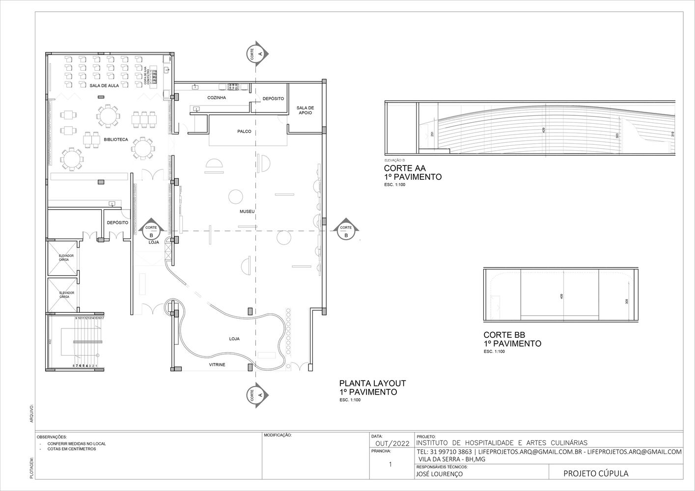
The Artisanal Cheese Cultural Center (Centro de Referência do Queijo Artesanal, or CRQA) in Belo Horizonte, Brazil, is a landmark for cultural and architectural enthusiasts. Designed by Life Projects and Portuguese architect José Lourenço, this 530-square-meter center combines architectural beauty with a profound appreciation for artisanal cheese, a celebrated aspect of Minas Gerais’ cultural heritage. Here, visitors can explore a permanent cheese exhibition, engage in immersive culinary experiences, and learn in spaces specially crafted to foster community and education.


A Cultural Landmark in Belo Horizonte
Located within Space 356, the Artisanal Cheese Cultural Center was established to preserve and promote the region’s artisanal cheese tradition. The center’s design celebrates both cheese-making and the rolling mountains of Minas Gerais through its architectural elements, which draw the eye and invite curiosity. Architect José Lourenço has implemented iron rods throughout the structure, creating a series of sweeping curves that evoke the shape and spirit of the surrounding landscape. This thoughtfully curated ambiance enhances the experience, grounding visitors in the culinary heritage of the region.



Architectural Features: Iron Rods and Natural Curves
One of the most striking elements of the center’s design is its use of iron rods to create dynamic, flowing lines. These rods are arranged in a way that mirrors the sinuous curves of Minas Gerais' mountainous terrain, blending nature-inspired architecture with modern exhibition design. The complex geometry of these curves was meticulously planned, allowing the architecture itself to become an immersive element of the exhibition. Each iron rod seems to tell its own story, inviting visitors to explore the spaces within while evoking the earthy, authentic feel of the region’s traditional cheese-making process.


Materials and Texture: A Natural Palette
To highlight the local roots of the center, the architects used materials sourced from regional manufacturers. Companies such as ALPEC, BH Stones, and Divinal Vidros contributed to the project, while EPO, Gerdau, and Rational provided essential materials and finishes. The use of local materials not only supports the region’s economy but also ensures that the building remains visually and thematically connected to Minas Gerais.
Each material was chosen for its durability and natural aesthetic, enhancing the center’s organic feel. Stone, glass, and wood are prominent throughout, adding warmth and texture to the space.

Exploring the Interior: Spaces Designed for Learning and Experience
The Artisanal Cheese Cultural Center offers a range of carefully designed spaces, each serving a specific purpose in the promotion of artisanal cheese and the culinary arts. These spaces include a permanent exhibition, a collaborative store, a library, a theater, and a culinary classroom.

The Permanent Cheese Exhibition
At the heart of the center is its permanent exhibition, a tribute to the art of cheese-making. Here, visitors can learn about the history, processes, and culture surrounding artisanal cheese production in Minas Gerais. The exhibition features interactive displays, historical artifacts, and tasting stations, creating a multisensory experience that immerses visitors in the world of cheese.

The Collaborative Store
The collaborative store provides an opportunity for local cheesemakers and artisans to showcase their products. This space is designed to foster a sense of community and collaboration, offering visitors a taste of the region’s flavors while supporting local businesses. Architectural details, such as high ceilings and open displays, allow natural light to flood the area, highlighting the products and creating a welcoming atmosphere.

The Culinary Library: A First for Minas Gerais
One of the most unique aspects of the center is its library, which is the first in Minas Gerais to focus exclusively on gastronomy. This library offers an extensive collection of books on cuisine and food culture, including national titles and Portuguese translations of internationally renowned culinary works. The library serves as a resource for chefs, researchers, and anyone interested in expanding their culinary knowledge.

Amphitheater and Social Area
An amphitheater within the center provides a venue for events, lectures, and workshops, drawing chefs, researchers, and cheese enthusiasts from around the world. The social area surrounding the amphitheater is designed for networking and relaxation, featuring comfortable seating and views of the exhibition spaces. Together, these areas create a vibrant community hub where ideas, skills, and passions can be shared.

The Didactic Kitchen: A Hands-On Learning Experience
The center includes a full culinary classroom complete with a didactic kitchen. This space is designed for hands-on training sessions, allowing students, chefs, and visitors to learn the art of cheese-making directly from experts. The kitchen is equipped with state-of-the-art appliances and facilities provided by brands like Macom and Suggar, ensuring that participants have access to high-quality tools for their learning experience.

Architectural Design Inspired by the Minas Mountains
The Artisanal Cheese Cultural Center’s design was heavily influenced by the iconic Minas Gerais landscape. The building’s sweeping curves and natural textures reflect the hills and valleys that define the region. This connection to the land is more than just visual; it is a fundamental part of the building’s identity, celebrating the intersection of natural beauty, tradition, and culinary artistry.
The center is a fine example of how architecture can be used to create a space that is not only functional but also symbolic. The careful choice of materials, the use of light, and the interplay between interior and exterior spaces all contribute to an environment that honors the spirit of Minas Gerais and the art of artisanal cheese-making.

A Cultural and Architectural Jewel
The Artisanal Cheese Cultural Center stands as a testament to the rich culinary heritage of Minas Gerais. With its innovative use of materials, its thoughtfully designed spaces, and its commitment to promoting local traditions, the center is more than just a building; it is a cultural landmark that brings people together through the shared love of food, craftsmanship, and design.
This architectural gem by Life Projects not only preserves the tradition of artisanal cheese but also inspires future generations to appreciate and contribute to Brazil’s culinary legacy. The center's architecture serves as a powerful reminder of the connection between culture and space, making it a must-visit destination for anyone interested in the intersection of food, art, and architecture.

All photographs are work of Estudio NY18
Popular Articles
Popular articles from the community
An Miên Lumière Cafe by xưởng xép, Ho Chi Minh City, Vietnam
An industrial-inspired café where layered steel and warm light create a dynamic, immersive environment shaped by reflection, depth, and perception.
A Contemporary Take on Iranian Residential Architecture
A modern interior design in Mashhad that reinterprets brick, light, and spatial flow to create a warm, contemporary residential architecture.
Solar Steam: A Climate-Responsive Architecture That Redefines the Monument
A climate-responsive memorial architecture that transforms heat, decay, and time into a living system reflecting humanity’s ecological impact.
Atelier Macri Concept Store Interior Design by CASE-REAL
Atelier Macri store features a "ko" counter, walnut wood details, cork displays, blending retail, gallery, and seamless customer experiences.
Similar Reads
You might also enjoy these articles
The Ken Roberts Memorial Delineation Competition (Krob)
As the most senior architectural drawing competition currently in operation anywhere in the world, it draws hundreds of entries each year, awarding the very best submissions in a series of medium-based categories.
Waterfront Redevelopment and Urban Revitalization in Mumbai: Forging a New Dawn for Darukhana
A transformative waterfront redevelopment project reimagining Darukhana’s shipbreaking heritage into an inclusive urban future.
OUT-OF-MAP: A Call for Postcards on Feminist Narratives of Public Space
Rhizoma Design and Research Lab invites artists, designers, architects, researchers, and students to reflect on how feminist perspectives can reshape public space. Selected works will be exhibited in Barcelona, October 2026. Submissions open until 15 April 2026.
Documentation Work on Buddhist Wooden Temple
Architectural syncretism and cultural hybridity: A comparative study of the Buddhist temples in Chattogram Hill tracks
Explore Architecture Competitions
Discover active competitions in this discipline
The International Standard for Design Portfolios
The Global Benchmark for Architecture Dissertation Awards
The Global Benchmark for Graduation Excellence
Challenge to design an urban locus of culture and heritage
Comments (0)
Please login or sign up to add comments
No comments yet. Be the first to comment!