Bagh Borj Residence: Reinventing Urban Living in Isfahan's Historical Context
Exploring Bagh Borj Residence by BA Studio: A modern urban sanctuary blending traditional Isfahani elements with innovative design in a historic neighborhood.
Nestled within the historic Khajo neighborhood of Isfahan, the Bagh Borj Residence by BA Studio is a testament to the innovative adaptation of urban residential architecture. Spanning 290 m², this project transforms a fragmented urban plot into a sanctuary of light, space, and privacy, amidst the dense fabric of the city. This article, inspired by Hugh Pearman's insightful critique, delves into the architectural narrative of Bagh Borj Residence, exploring how it confronts and overcomes the challenges of its constrained urban context while paying homage to Isfahan's rich architectural heritage.




The Genesis of Bagh Borj Residence
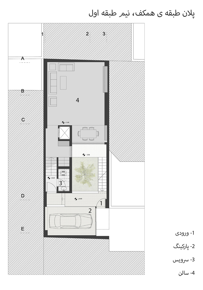
The Bagh Borj Residence emerges from the division of a larger, deteriorated residential plot into several smaller parcels, epitomizing the challenges of modern urban development in historical contexts. Faced with limitations such as a narrow entrance, the proximity of neighboring buildings, and stringent height restrictions, BA Studio embarked on a journey to craft a dwelling that not only addresses these challenges but also elevates the quality of urban living.





Architectural Strategy: An Introverted Oasis
At the core of the residence's design philosophy is the creation of an introverted oasis, a central courtyard that becomes the heart of the home, ensuring a close connection with all living spaces. This design decision fosters a serene, light-filled environment, shielded from the urban chaos. The innovative use of a brick grid module on the façade addresses privacy concerns while allowing for natural light penetration and visual harmony with the surrounding architecture.







Bridging Tradition and Modernity
The Bagh Borj Residence stands as a beacon of spatial diversity and multifunctionality, seamlessly integrating open and closed spaces. The residence's design pays meticulous attention to the visual and spatial coherence amidst the chaotic urban environment, ensuring privacy while maintaining a dialogue with Isfahan's architectural essence. The meticulous crafting of the brick façade not only serves functional requirements, such as minimizing views from adjacent properties and maximizing light, but also adds a contemporary layer to the traditional urban fabric.



Environmental Considerations and Material Innovation
BA Studio's approach to the Bagh Borj Residence also includes a focus on environmental considerations and material innovation. The unique brick module, specifically designed for this project, represents a commitment to bespoke solutions that respect the historical context while addressing modern needs. The challenges of production and implementation of these bricks highlight the project's dedication to craftsmanship and detail.

The Bagh Borj Residence by BA Studio redefines urban residential architecture within the historic confines of Isfahan. Through its introverted design, innovative use of materials, and sensitivity to its historical context, the project offers a blueprint for revitalizing urban plots in historic neighborhoods. Bagh Borj Residence not only provides a high-quality living space but also contributes to the architectural dialogue between past and present, serving as a model for urban renewal and sustainable living in dense historical contexts.













All the photographs are work of Mohammad Soroosh Jooshesh, COMO Photography Studio, Sara Mahmoudimanesh