Casa Azzurra by Studio AdM: A Joshua Tree Desert Retreat Architecture Immersed in Color and Connection
A vibrant architectural retreat in Joshua Tree blending Italian hospitality, bold design, and immersive desert living.
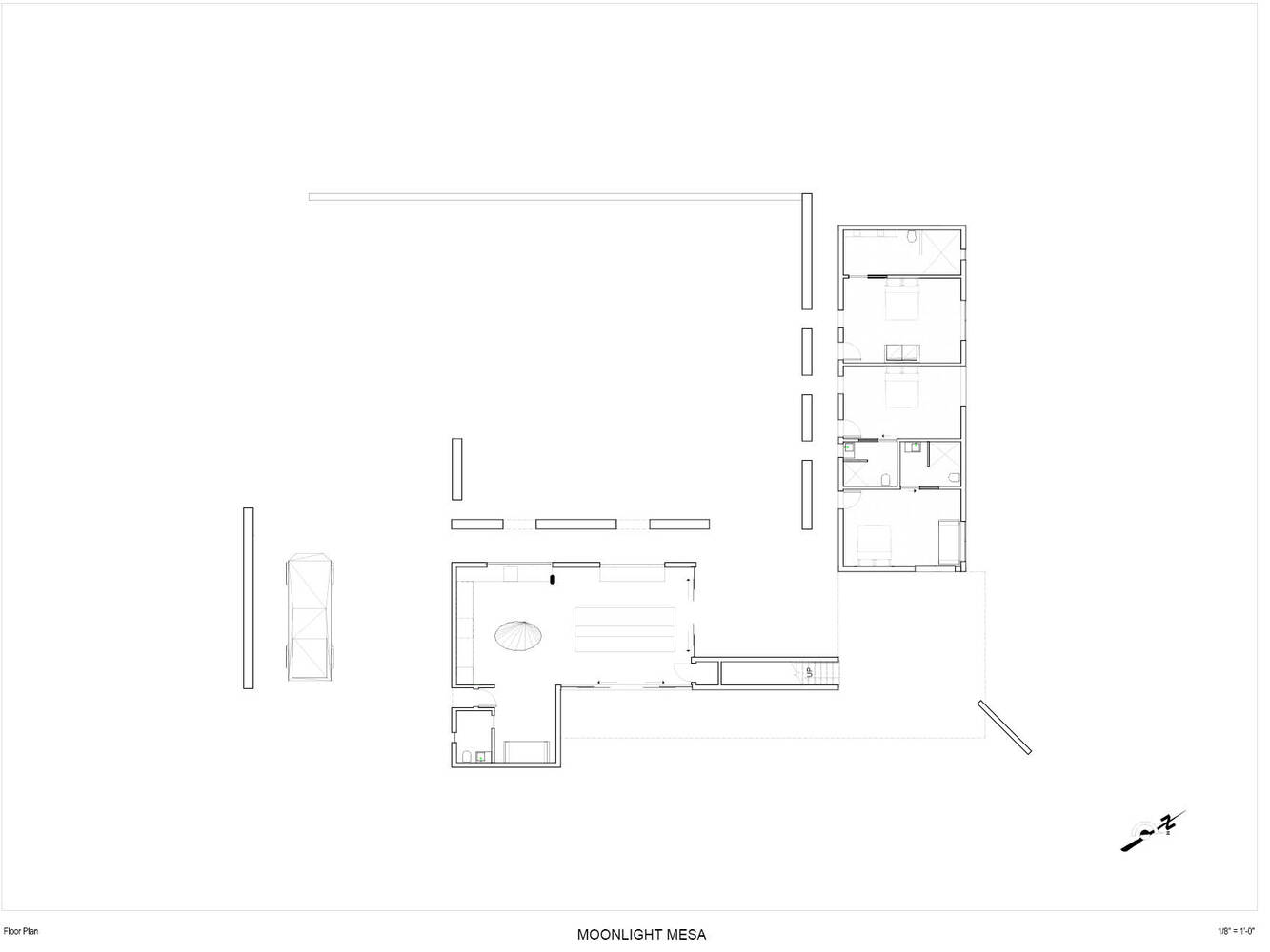
Casa Azzurra, designed by Studio AdM and led by architect Mirtilla Alliata, is an evocative architectural retreat nestled in the rugged tranquility of Joshua Tree, California. More than a home, this 2,200-square-foot desert retreat architecture project functions as a living experience—one that fuses the soulful hospitality of Italian summers with the meditative stillness of the desert.




Rooted in Personal Narrative and Cultural Memory
Casa Azzurra serves as the inaugural site for Mirtilla Alliata’s upcoming hospitality brand, scheduled for launch in 2026. The architect, raised between Hawaii and Italy, brings a deeply personal lens to the project—drawing from summers in the Aeolian Islands and design influences shaped by her time at SCI-Arc and work with visionaries like Frank Gehry and Kulapat Yantrasast. This residence encapsulates her belief in architecture as storytelling, designed to engage, inspire, and transport.





A 10-Acre Canvas of Landscape and Design
Set against a 10-acre canvas of high desert terrain, the house perches atop a slope that captures sweeping views of the Joshua Tree National Park mountain range. This rare siting not only offers visual drama but also sets the stage for immersive indoor-outdoor experiences. The home unfolds around a vivid blue courtyard—its centerpiece and a tonal anchor for the rest of the property—emphasizing the chromatic theme inspired by the ever-changing desert sky.




Bold Textures and Chromatic Expression
Casa Azzurra’s exterior features a distinctive cat-face stucco finish painted in five nuanced shades of blue. This deliberate color story continues inside with rich material layers and jewel-toned interiors that echo familial warmth and Mediterranean vibrancy. Natural light filters through expansive sliding glass doors, highlighting materials like linen, stone, and wood. Every corner is a fusion of tactile comfort and visual sophistication.




A Living Space Designed for Gathering and Stillness
Inside, a chef’s kitchen flows seamlessly into a communal living area where conversation is encouraged by design. Each of the four bedrooms presents its own color identity—from deep forest greens to burnished ochres—imbued with Mirtilla’s memories of Italy and curated with Murano glass lighting, Salvador Dalí artwork, and artisan furnishings. The skylit bathrooms with rain showers offer a sensory connection to the natural environment, reinforcing the home's ethos of retreat and reflection.





Outdoor Living as Architectural Extension
Beyond the interiors, the architecture extends into the landscape through a series of curated outdoor zones. A private guest retreat with minimalist wood finishes and panoramic views enables stargazing in total silence. The surrounding grounds, landscaped by Geoponika, include a secluded desert garden, a 30-foot swimming pool, bocce and pickleball courts, and a bespoke outdoor dining area. Each space invites a movement between leisure and play, solitude and togetherness.





Casa Azzurra and the Future of Desert Retreat Architecture
As an architectural prototype for a new era of desert living, Casa Azzurra exemplifies how personal narrative, cultural richness, and environmental sensitivity can converge. It isn’t just a house—it’s a world that invites its inhabitants to slow down, reconnect, and reimagine what retreat truly means. In a landscape dominated by neutrals, Casa Azzurra’s vibrant identity marks a refreshing and intentional counterpoint—one rooted in joy, memory, and connection.






All the photographs are works of Katia Grozov
Popular Articles
Popular articles from the community
Fifth NRE Jazz Club – De Bever Architecten: Eindhoven’s Revitalized Cultural Hub
Historic gas factory transformed into Fifth NRE Jazz Club blending modern sustainability, jazz culture, dining, and heritage architecture seamlessly.
Gads Hill Early Learning Center by JGMA: Adaptive Reuse Shaping Community-Focused Educational Architecture
Adaptive reuse transforms fragmented structure into vibrant early learning center with playful façade, natural light, and community-focused sustainable design.
Louis Malle Cinema: A Limestone Cultural Landmark Revitalizing Community Life in Prayssac
Limestone cinema extension with public forecourt, blending heritage and modern design to create flexible cultural spaces and strengthen community interaction.
Solar Steam: A Climate-Responsive Architecture That Redefines the Monument
A climate-responsive memorial architecture that transforms heat, decay, and time into a living system reflecting humanity’s ecological impact.
Similar Reads
You might also enjoy these articles
Bamboo Housing Challenge 2026: Design Affordable, Sustainable Homes Using Bamboo
An international design competition by Bamboo U and IBUKU inviting architects and designers to reimagine affordable housing using bamboo — with the winning design built full-scale in Bali.
Computational Design & Education: Beegraphy Design Awards Introduces 7th Category (Featuring Jiyun's Innovative Approach)
Dive into Beegraphy’s 7th Design Awards category, where computational design meets education to create immersive, interactive learning tools, inspired by Jiyun’s work.
From Parametric Lighting to Urban Furniture: Join the 2nd Workshop in Beegraphy’s Computational Design Series
Dive into Cutting-Edge Design Techniques and Practical Applications with Industry Experts
Introducing Sphere by UNI: Pioneering a New Era in AEC Industry
Unlocking Global Potential with BIM and Agile Management
Explore Architecture Competitions
Discover active competitions in this discipline
The International Standard for Design Portfolios
The Global Benchmark for Architecture Dissertation Awards
The Global Benchmark for Graduation Excellence
Challenge to reimagine the Iron Throne
Comments (0)
Please login or sign up to add comments
No comments yet. Be the first to comment!