Churruca Residential Building: A Model of Sustainable Urban Living in Mataró, Spain
Churruca Residential Building: Sustainable, adaptable urban living blending Mediterranean aesthetics with eco-friendly design in Mataró, Spain.
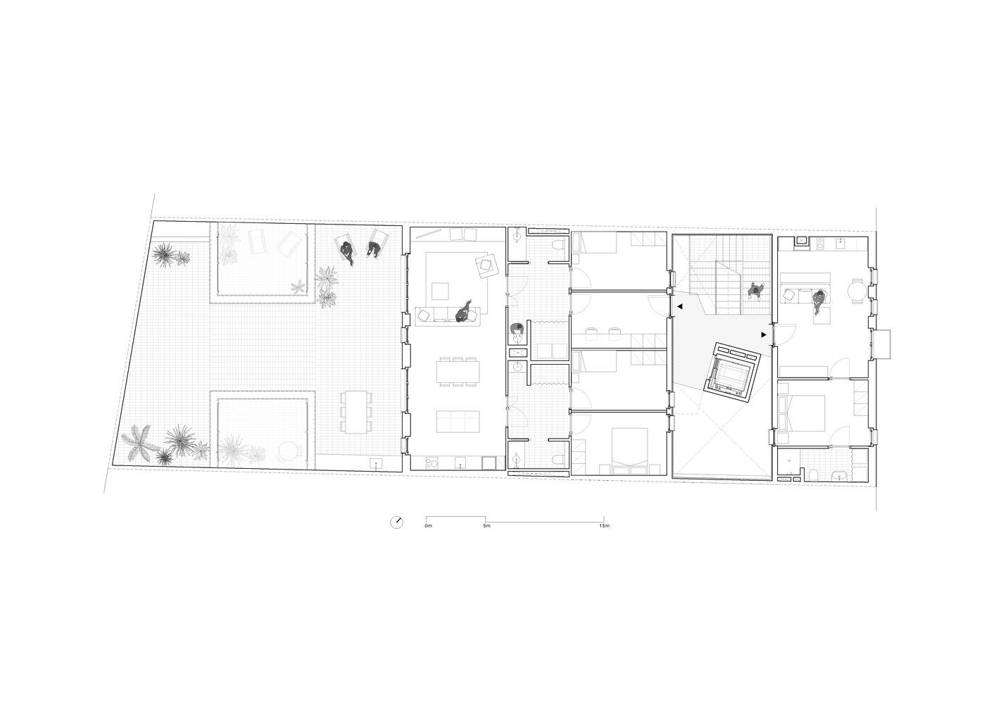
Nestled in the historic Old Eixample of Mataró, Spain, the Churruca Residential Building by BE STUDIO stands as a beacon of sustainable urban living. This 1,092 m² development, documented through the lens of Adrià Goula, is a testament to architectural ingenuity, blending seamlessly with its Mediterranean surroundings while pushing the boundaries of eco-conscious design.


Embracing the Mediterranean Lifestyle
The architects embarked on this project with a clear vision: to evoke the essence of Mediterranean architecture while optimizing the coastal city's temperate climate for residential enjoyment. The resulting volume harmonizes with the existing urban fabric, creating a facade that, while contemporary, resonates with the traditional aesthetics of the area.




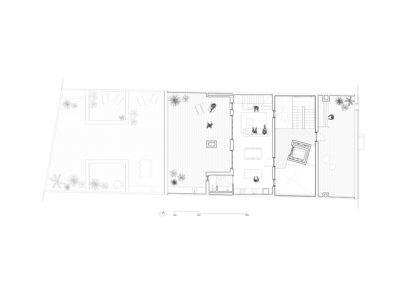
A Central Courtyard: The Heart of Community and Sustainability
At the core of the building's design is a spacious central courtyard, serving as a multifunctional space that transitions from public to private. This strategic inclusion not only fosters community interaction among residents but also plays a crucial role in the building's passive energy strategy, ensuring efficient ventilation and dual-aspect lighting for all seven residences.



Innovative Design for Flexibility and Gender Inclusivity
BE STUDIO's approach to the interior layout emphasizes adaptability and inclusivity. By adopting a linear / stripped pattern, the design efficiently organizes space, allowing for easy modification of living areas to suit changing lifestyles. Moreover, the project takes a gender-inclusive perspective, with generously sized kitchens and laundry areas designed for shared use, reflecting a modern understanding of domestic spaces.






Commitment to Energy Efficiency and Ecological Footprint Reduction
A guiding principle of the Churruca Residential Building is its focus on energy efficiency. Incorporating a courtyard significantly enhances natural ventilation and sunlight penetration, complemented by external cord blinds for seasonal adaptability. The building's construction minimizes thermal bridges, features high-quality insulation, and employs aerothermal energy for heating, culminating in a low-energy-demand structure.


Sustainable Materials and Construction Techniques
The project's ecological footprint was meticulously considered, leading to the selection of sustainable materials and construction methods. A metallic load-bearing structure ensures recyclability, while non-plastic insulation, wooden window frames, and natural stoneware finishes contribute to the building's environmentally friendly profile.



A New Paradigm for Urban Development
The Churruca Residential Building in Mataró is more than just a housing project; it's a forward-thinking exploration of how urban residences can contribute to a sustainable future. Through its thoughtful integration of social, environmental, and architectural principles, BE STUDIO has created a living space that is not only in harmony with its Mediterranean context but also sets a new standard for urban development in the 21st century.






All photographs are work of Adrià Goula
Popular Articles
Popular articles from the community
On the Brooks House by Monsoon Collective – A Contemporary Kerala Home Rooted in Tradition
Kerala home blending tradition and modernity with water-inspired design, brick architecture, courtyard planning, and sustainable rainwater harvesting strategies.
Flamboyant House by Juliana Camargo + Prumo Projetos
Modern Brazilian house integrating existing tree, pool, and volumes with glass, wood, and transitional spaces blending interior, exterior, and landscape seamlessly.
A Contemporary Take on Iranian Residential Architecture
A modern interior design in Mashhad that reinterprets brick, light, and spatial flow to create a warm, contemporary residential architecture.
Treehouse Apartment: A Warm Timber Interior Blending Craft, Play, and Contemporary Living
Warm timber apartment with integrated treehouse, combining natural materials, craftsmanship, and playful design to create a flexible, family-oriented living environment.
Similar Reads
You might also enjoy these articles
The Ken Roberts Memorial Delineation Competition (Krob)
As the most senior architectural drawing competition currently in operation anywhere in the world, it draws hundreds of entries each year, awarding the very best submissions in a series of medium-based categories.
Waterfront Redevelopment and Urban Revitalization in Mumbai: Forging a New Dawn for Darukhana
A transformative waterfront redevelopment project reimagining Darukhana’s shipbreaking heritage into an inclusive urban future.
OUT-OF-MAP: A Call for Postcards on Feminist Narratives of Public Space
Rhizoma Design and Research Lab invites artists, designers, architects, researchers, and students to reflect on how feminist perspectives can reshape public space. Selected works will be exhibited in Barcelona, October 2026. Submissions open until 15 April 2026.
Documentation Work on Buddhist Wooden Temple
Architectural syncretism and cultural hybridity: A comparative study of the Buddhist temples in Chattogram Hill tracks
Explore Architecture Competitions
Discover active competitions in this discipline
The International Standard for Design Portfolios
The Global Benchmark for Architecture Dissertation Awards
The Global Benchmark for Graduation Excellence
Challenge to reimagine the Iron Throne
Comments (0)
Please login or sign up to add comments
No comments yet. Be the first to comment!