Community Center Architecture in Gdynia: Widna Haven by PB STUDIO, studiomania & IPA IpreferanalogCommunity Center Architecture in Gdynia: Widna Haven by PB STUDIO, studiomania & IPA Ipreferanalog

Community Center Architecture in Gdynia: Widna Haven by PB STUDIO, studiomania & IPA Ipreferanalog

UNI Editorial
UNI Editorial published News under Architecture on

Reimagining Public Space Through Inclusive Community Architecture

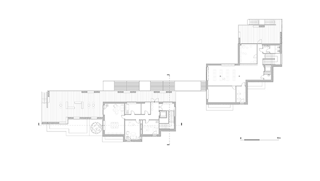
Widna Haven Community Center and Library in Gdynia, Poland, is a standout example of community center architecture that redefines the role of public buildings in contemporary urban life. Designed collaboratively by PB STUDIO, studiomania, and IPA Ipreferanalog, the 850 m² complex creates an inviting and versatile environment for social connection, learning, and relaxation in a busy residential district.

Article image
Article image
Article image

A Design Rooted in Urban Engagement

Located at a prominent intersection in Gdynia, the site posed unique spatial and acoustic challenges. The architects tackled this by designing the building as a protective barrier—shielding its central courtyard from traffic noise while opening inward toward community life. The layout places the new structures strategically around an intimate courtyard, forming a calm interior world surrounded by bustling city streets.

Article image
Article image

This inward-facing configuration fosters a sense of enclosure, safety, and shared experience, anchoring the building within the neighborhood both physically and socially.

Article image
Article image

Two Functions, One Vision: Library and Community Hub

The building is divided into two primary volumes: a public library and a community center. These wings flank the courtyard and also serve as a visual gateway to the adjacent residential estate. The separation of functions allows for flexible programming while maintaining strong visual and spatial cohesion.

Article image
Article image

The orientation and setback of the façade were designed to align with pedestrian routes and urban sightlines, creating intuitive access points for all visitors.

Article image
Article image

Material Strategy and Acoustic Design

The street-facing façade is clad in vertical wooden slats, not only softening the urban elevation but also functioning as an acoustic screen. These slats double as trellises for climbing greenery, adding life and seasonal variation to the building’s exterior. The courtyard-facing walls, rendered in a warm off-white finish, respond to municipal aesthetic guidelines and offer a gentle, human-scale visual experience.

Article image
Article image

A terrazzo-paved courtyard blurs the boundary between indoor and outdoor, transitioning seamlessly into terraced seating and public gathering spaces. This integration of materials enhances the immersive and approachable nature of the architecture.

Article image
Article image

An Active Courtyard for Collective Use

At the heart of Widna Haven is the amphitheater-like square, an adaptable venue for outdoor film screenings, workshops, public talks, and performances. A central fountain provides auditory comfort, masking surrounding noise and adding to the courtyard’s sensory richness.

Article image
Article image

The complex was also designed with intergenerational engagement in mind. Chess tables, sunny benches, and greenery cater to older residents, while children and young people benefit from open space, rooftop terraces, and dynamic programming opportunities.

Article image

Architecture as Infrastructure for Wellbeing

In line with the best of community center architecture, Widna Haven integrates landscape, accessibility, and wayfinding with elegance and clarity. All elements—from the rooftop terraces to the ground-level entry plaza—are connected through a unified system that prioritizes inclusivity. The rooftops, accessible via interior stairs and outdoor paths, expand the usable public space and offer panoramic views of the neighborhood.

Article image

Vegetation plays a key role in the overall design. Ornamental grasses, fruit trees, and perimeter planting contribute to urban biodiversity while softening hard edges and providing a natural buffer from the street.

Article image

A Sustainable and Social Urban Anchor

The Widna Haven project reflects a new vision for civic architecture—one where community identity, environmental quality, and social interaction are given equal weight. Its materials are tactile and enduring, its spaces flexible and welcoming, and its purpose rooted in the collective good. As cities seek to foster more inclusive public life, this project sets a precedent for how architecture can create environments where everyone feels at home.

Article image
Article image
Article image

All the photographs are works of Nate Cook, Jakub Piórkowski

UNI Editorial

UNI Editorial

Where architecture meets innovation, through curated news, insights, and reviews from around the globe.

Share your ideas with the world

Share your ideas with the world

Write about your design process, research, or opinions. Your voice matters in the architecture community.

Comments (0)

No comments yet. Be the first to comment!

Similar Reads

You might also enjoy these articles

publishedNews3 weeks ago
Bamboo Housing Challenge 2026: Design Affordable, Sustainable Homes Using Bamboo
publishedNews1 year ago
Computational Design & Education: Beegraphy Design Awards Introduces 7th Category (Featuring Jiyun's Innovative Approach)
publishedNews1 year ago
From Parametric Lighting to Urban Furniture: Join the 2nd Workshop in Beegraphy’s Computational Design Series
publishedNews2 years ago
Introducing Sphere by UNI: Pioneering a New Era in AEC Industry

Explore Architecture Competitions

Discover active competitions in this discipline

UNI Editorial
Search in