Cooperative Housing Feld4: Pioneering Sustainable Cooperative Housing in Basel
The article details Cooperative Housing Feld4 by MASStudio, focusing on its sustainable design and community-oriented living spaces in Basel, Switzerland.
Located in Basel, Switzerland, Cooperative Housing Feld4 designed by MASStudio exemplifies the principles of sustainable cooperative housing. This project focuses on creating a community-oriented living environment that fosters neighborly interaction and sustainable architectural practices.


Design Philosophy and Community Focus
Emphasizing Collective Living
The core concept behind Feld4 is the creation of spaces that promote intensive, neighborly interactions akin to those found in familial settings. This cooperative project was shaped through a participatory planning process that involved future residents from the outset, influencing everything from typology decisions to material selections.


Flexible Living Arrangements
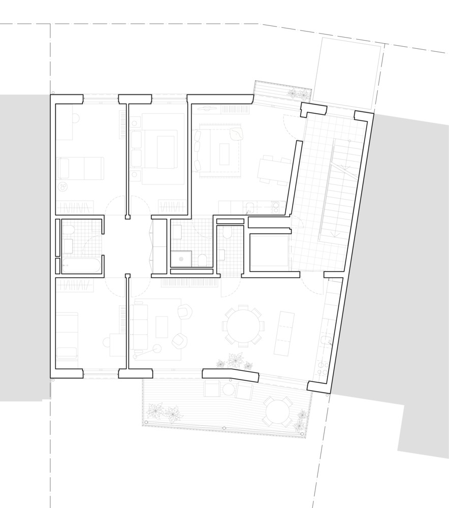
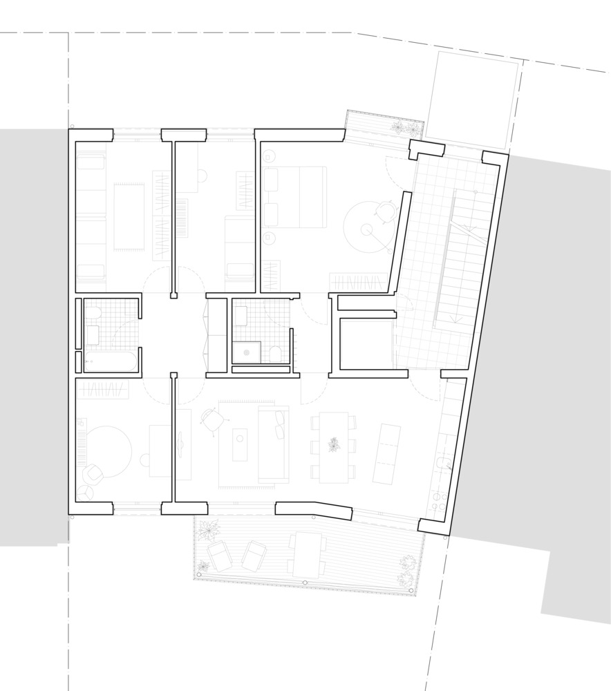
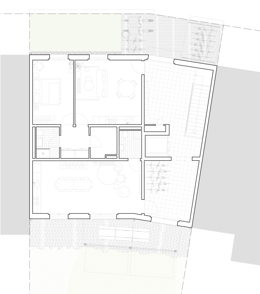
Feld4 offers a range of apartment types from studios to large 5.5-room units, catering to diverse resident needs. The design includes innovative 'switch rooms' that allow apartments to be easily reconfigured, supporting different life stages and family dynamics without significant renovations.


Architectural Features and Adaptability
Structural Innovations for Flexible Use
The building’s architecture is centered on adaptability. It features potential door recesses in concrete walls and lightweight internal walls that can be reconfigured as residents’ needs evolve. This flexibility ensures that the cooperative can adapt over time, reflecting the changing demographics and preferences of its community.


Materialization and Sustainability
The structure combines solid construction with a timber frame façade, integrating the building with its former industrial site's history. The exterior features industrial panels contrasted with natural wood elements, balancing modern aesthetics with traditional materials to reflect the building's dual character.


Sustainability and Environmental Considerations
Eco-Friendly Construction Practices
Cooperative Housing Feld4 is built with a focus on sustainability, utilizing local and sustainable materials such as timber and incorporating features that promote energy efficiency. The design also includes provisions for future technological upgrades, emphasizing long-term sustainability.




Creating a Homely Atmosphere
Internally, the focus is on creating a bright and natural environment. White plastered ceilings and walls complement the polished screed floors, while the external timber façade mirrors the interior’s warmth, enhancing the connection between indoor and outdoor spaces.



Setting a New Standard for Housing
Cooperative Housing Feld4 by MASStudio sets a new standard for sustainable cooperative housing. By combining innovative design with sustainable practices and a strong community focus, Feld4 offers a blueprint for future developments aiming to enhance urban living through cooperative principles.



All photographs are work of Daisuke Hirabayashi
Popular Articles
Popular articles from the community
An Miên Lumière Cafe by xưởng xép, Ho Chi Minh City, Vietnam
An industrial-inspired café where layered steel and warm light create a dynamic, immersive environment shaped by reflection, depth, and perception.
On the Brooks House by Monsoon Collective – A Contemporary Kerala Home Rooted in Tradition
Kerala home blending tradition and modernity with water-inspired design, brick architecture, courtyard planning, and sustainable rainwater harvesting strategies.
Flamboyant House by Juliana Camargo + Prumo Projetos
Modern Brazilian house integrating existing tree, pool, and volumes with glass, wood, and transitional spaces blending interior, exterior, and landscape seamlessly.
Solar Steam: A Climate-Responsive Architecture That Redefines the Monument
A climate-responsive memorial architecture that transforms heat, decay, and time into a living system reflecting humanity’s ecological impact.
Similar Reads
You might also enjoy these articles
The Ken Roberts Memorial Delineation Competition (Krob)
As the most senior architectural drawing competition currently in operation anywhere in the world, it draws hundreds of entries each year, awarding the very best submissions in a series of medium-based categories.
Waterfront Redevelopment and Urban Revitalization in Mumbai: Forging a New Dawn for Darukhana
A transformative waterfront redevelopment project reimagining Darukhana’s shipbreaking heritage into an inclusive urban future.
OUT-OF-MAP: A Call for Postcards on Feminist Narratives of Public Space
Rhizoma Design and Research Lab invites artists, designers, architects, researchers, and students to reflect on how feminist perspectives can reshape public space. Selected works will be exhibited in Barcelona, October 2026. Submissions open until 15 April 2026.
Documentation Work on Buddhist Wooden Temple
Architectural syncretism and cultural hybridity: A comparative study of the Buddhist temples in Chattogram Hill tracks
Explore Architecture Competitions
Discover active competitions in this discipline
The International Standard for Design Portfolios
The Global Benchmark for Architecture Dissertation Awards
The Global Benchmark for Graduation Excellence
Challenge to reimagine the Iron Throne
Comments (0)
Please login or sign up to add comments
No comments yet. Be the first to comment!