Discover the stunning transformation of FUNDBÜRO's design into a brand-new dream home!
Is FUNDBÜRO's new home the ultimate inspiration for the modern design?

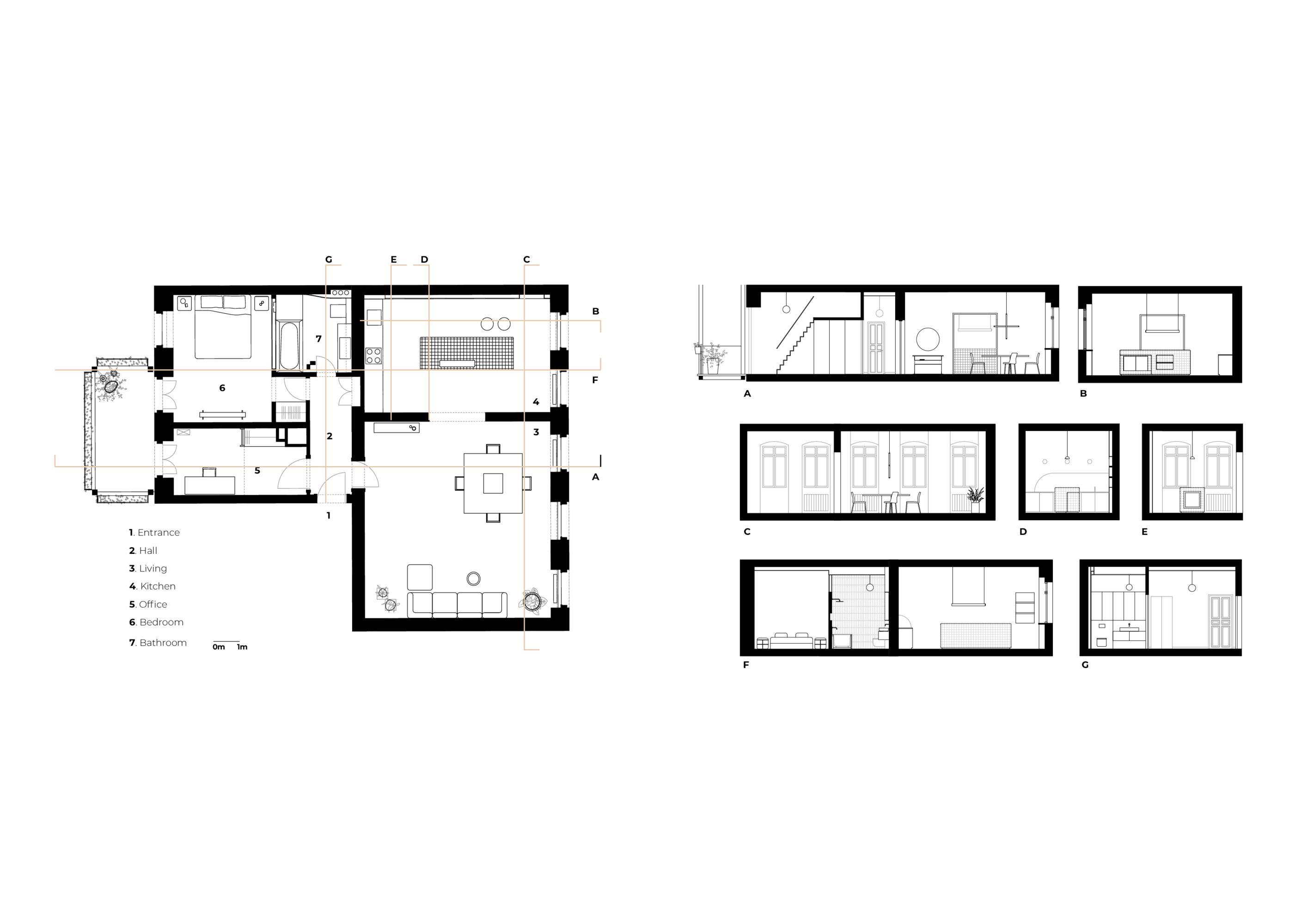
Neu Home, a renovated apartment located in the heart of Berlin, has been garnering attention for its contemporary interior design. The 82.5 m² space, situated in a historic building dating back to 1875, was redesigned by a team of architects and designers to meet the needs of its client, a well-known audiovisual artist.
The brief was clear: to create a warm and welcoming atmosphere in the midst of the grey capital city. To achieve this, the design team employed a concept of pure geometric lines that contrasts with the classical features of late 19th-century architecture. The result is a sequence of spaces that are visually connected and characterized by playful shapes, giving each room its unique purpose and personality.
The living room and kitchen were given priority to enable the client to host receptions and events. To this end, a large tiled island was introduced, which doubles as a bar. The design team collaborated with renowned brands such as Bolia, Bo-Concept, and Noah Living to bring the vision to life. Additionally, the team's colleagues and collaborators from Rlon created an incredible cross lamp that reinforces the concept of oppositions of this amazing house.
The master bedroom was designed with calm colours to create an ideal space for relaxation. Playful shapes were used to separate the sleeping area from the dressing area, giving the room character and purpose. The office, following the neutral style, was transformed into a multi-functional space with a second height that accommodates a guest bed and wardrobes on the ground floor.
The bathroom, on the other hand, was designed to create a spa-like experience at home. Pink terrazzo floors in combination with a 3.5 m tiled wall add grandiosity and serenity to the space. It is worth noting that only natural or semi-natural materials and finishes were used in the construction of this flat. Second-hand historical elements such as doors or lamps were also used to maintain the classic character of the building.
Overall, Neu Home is a stunning example of how contemporary interior design can breathe new life into a historical building. The use of pure geometric lines, playful shapes, and natural materials has created a warm and welcoming atmosphere that perfectly balances the classic and contemporary. The space is ideal for hosting events or simply relaxing after a long day in the bustling city.


























Popular Articles
Popular articles from the community
On the Brooks House by Monsoon Collective – A Contemporary Kerala Home Rooted in Tradition
Kerala home blending tradition and modernity with water-inspired design, brick architecture, courtyard planning, and sustainable rainwater harvesting strategies.
The Ken Roberts Memorial Delineation Competition (Krob)
As the most senior architectural drawing competition currently in operation anywhere in the world, it draws hundreds of entries each year, awarding the very best submissions in a series of medium-based categories.
Atelier Macri Concept Store Interior Design by CASE-REAL
Atelier Macri store features a "ko" counter, walnut wood details, cork displays, blending retail, gallery, and seamless customer experiences.
Louis Malle Cinema: A Limestone Cultural Landmark Revitalizing Community Life in Prayssac
Limestone cinema extension with public forecourt, blending heritage and modern design to create flexible cultural spaces and strengthen community interaction.
Similar Reads
You might also enjoy these articles
Zhuxi Wonderland: Reimagining Traditional Chinese Gardens by Doarchi Architects
Zhuxi Wonderland by Doarchi Architects reinterprets traditional Yangzhou gardens, integrating courtyards, pavilions, and tea houses in modern cultural design.
Doble Soga House: A Contemporary Brick Residence Rooted in Landscape in Quito, Ecuador
Brick house in Quito integrating nature, flexible living spaces, exposed materials, and rooftop terrace, creating warm contemporary architecture for modern family life.
Al Gharra Mosque in Medina Redefining Contemporary Islamic Architecture
Minimalist Medina mosque using concrete, light, and landscape to reinterpret Islamic worship spaces through symbolic spiritual transitions and contemporary architecture.
Viczonecode Villa by DDconcept – Tropical Family Living in Ho Chi Minh City
Tropical family villa in Ho Chi Minh City featuring courtyards, skylights, natural ventilation, elevated flooring, and seamless indoor–outdoor living surrounded by greenery.
Explore Architecture Competitions
Discover active competitions in this discipline
The International Standard for Design Portfolios
The Global Benchmark for Architecture Dissertation Awards
The Global Benchmark for Graduation Excellence
Challenge to design luxury tourism on rails
Comments (0)
Please login or sign up to add comments
No comments yet. Be the first to comment!