Genesis International School Turkayamjal: A Model of Sustainable School Architecture
Genesis International School Turkayamjal redefines sustainable school architecture by integrating passive cooling, biophilic design, and locally sourced materials.
The Evolution of Educational Spaces in Hyderabad
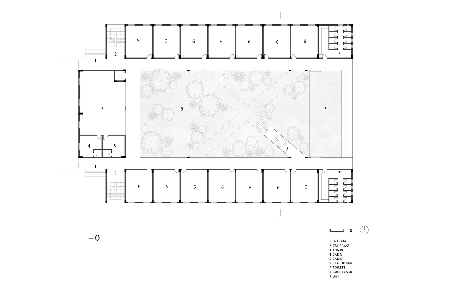
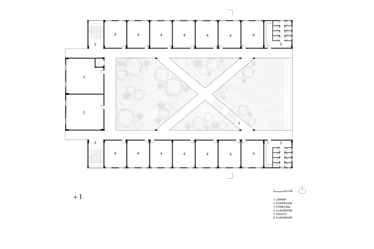
With the rapid urban expansion of Hyderabad, the need for innovative educational spaces has grown significantly. Genesis International School Turkayamjal, designed by Studio Sacred Geometry, represents a forward-thinking approach to sustainable school architecture. This project redefines learning environments by integrating nature, local craftsmanship, and climate-responsive design strategies to create a nurturing and functional space for students.




A Thoughtful Approach to Spatial Planning
The school follows a simple U-shaped layout that optimizes functionality while fostering interaction with nature. The design prioritizes open courtyards, allowing ample sunlight and wind to flow through the space. These green pockets serve as more than just aesthetic elements; they enhance the well-being of students by providing shaded areas for outdoor learning, play, and relaxation. The seamless blending of built and natural environments ensures an immersive spatial experience across multiple scales.



A Facade That Celebrates Tradition and Innovation
The striking brick facade stands as a defining element of the school’s identity. The intricate patterns and geometric motifs reflect traditional craftsmanship while embodying contemporary architectural principles. Large glass panels and deep recesses establish a rhythmic interplay between solidity and transparency, symbolizing the balance between heritage and modernity. The result is an expressive architectural language that reinforces the school’s commitment to sustainable school architecture.



Passive Cooling Strategies for Energy Efficiency
Sustainability is at the core of the school’s design. The stairwells incorporate perforated brickwork, which allows natural light to filter in while promoting cross-ventilation. This passive cooling technique not only enhances indoor air quality but also reduces the reliance on artificial lighting and mechanical ventilation. By embracing a bioclimatic approach, the design ensures thermal comfort while minimizing energy consumption.

The corridors function as transition spaces that regulate internal temperatures. Acting as buffer zones, they intercept direct sunlight and limit heat gain, keeping classrooms cooler throughout the day. This thoughtful strategy enhances natural ventilation and daylighting, reducing the school’s environmental footprint while fostering a comfortable learning atmosphere.

Integrating Nature for a Holistic Learning Environment
One of the most defining aspects of sustainable school architecture is its ability to foster a connection between students and nature. Genesis International School Turkayamjal achieves this by integrating lush tropical greenery along its corridors and outdoor spaces. These green buffers enhance air quality, create a calming atmosphere, and encourage students to engage with their surroundings.

The brick-clad walls of the corridors, adorned with vibrant student artwork, transform these transitional spaces into dynamic learning zones. By merging architectural design with nature, the school cultivates an environment that promotes creativity, well-being, and active learning.

Locally Sourced Materials for Longevity and Sustainability
The extensive use of locally sourced bricks reinforces the school’s commitment to sustainability. Not only do these materials ground the design in its cultural context, but they also offer durability and thermal efficiency. The earthy tones and tactile textures of the bricks create a warm and inviting atmosphere while reducing the building’s ecological impact.


By integrating traditional materials with modern construction techniques, the project exemplifies how educational spaces can be both environmentally responsible and aesthetically compelling. The school is a testament to the potential of sustainable school architecture to shape the future of learning environments.


A Benchmark for Future Educational Architecture
Genesis International School Turkayamjal sets a new standard for sustainable school architecture by demonstrating how thoughtful design can enhance the educational experience. Through passive cooling strategies, integrated greenery, and locally sourced materials, the school achieves a balance between functionality, sustainability, and aesthetic appeal.


As urban landscapes continue to evolve, projects like this serve as blueprints for the next generation of educational spaces—ones that prioritize environmental stewardship, student well-being, and architectural innovation. This school is not just a place of learning; it is a living, breathing example of how architecture can shape a sustainable future for education.

All Photographs are works of Vivek Eadara
Popular Articles
Popular articles from the community
Flamboyant House by Juliana Camargo + Prumo Projetos
Modern Brazilian house integrating existing tree, pool, and volumes with glass, wood, and transitional spaces blending interior, exterior, and landscape seamlessly.
Louis Malle Cinema: A Limestone Cultural Landmark Revitalizing Community Life in Prayssac
Limestone cinema extension with public forecourt, blending heritage and modern design to create flexible cultural spaces and strengthen community interaction.
A Contemporary Take on Iranian Residential Architecture
A modern interior design in Mashhad that reinterprets brick, light, and spatial flow to create a warm, contemporary residential architecture.
Treehouse Apartment: A Warm Timber Interior Blending Craft, Play, and Contemporary Living
Warm timber apartment with integrated treehouse, combining natural materials, craftsmanship, and playful design to create a flexible, family-oriented living environment.
Similar Reads
You might also enjoy these articles
The Ken Roberts Memorial Delineation Competition (Krob)
As the most senior architectural drawing competition currently in operation anywhere in the world, it draws hundreds of entries each year, awarding the very best submissions in a series of medium-based categories.
Waterfront Redevelopment and Urban Revitalization in Mumbai: Forging a New Dawn for Darukhana
A transformative waterfront redevelopment project reimagining Darukhana’s shipbreaking heritage into an inclusive urban future.
OUT-OF-MAP: A Call for Postcards on Feminist Narratives of Public Space
Rhizoma Design and Research Lab invites artists, designers, architects, researchers, and students to reflect on how feminist perspectives can reshape public space. Selected works will be exhibited in Barcelona, October 2026. Submissions open until 15 April 2026.
Documentation Work on Buddhist Wooden Temple
Architectural syncretism and cultural hybridity: A comparative study of the Buddhist temples in Chattogram Hill tracks
Explore Architecture Competitions
Discover active competitions in this discipline
The International Standard for Design Portfolios
The Global Benchmark for Architecture Dissertation Awards
The Global Benchmark for Graduation Excellence
Challenge to design public laboratory
Comments (0)
Please login or sign up to add comments
No comments yet. Be the first to comment!