Haimen Agricultural Exhibition Hall is a one-stop shop for all your agricultural needs
See all the latest and greatest in agricultural technology!
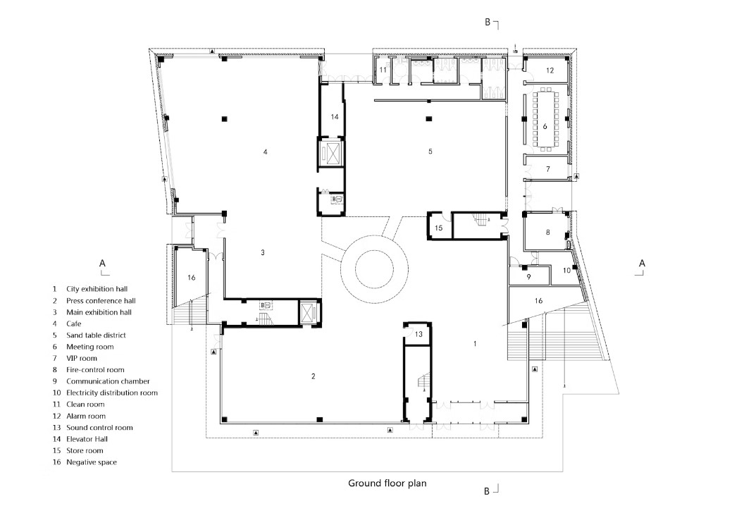
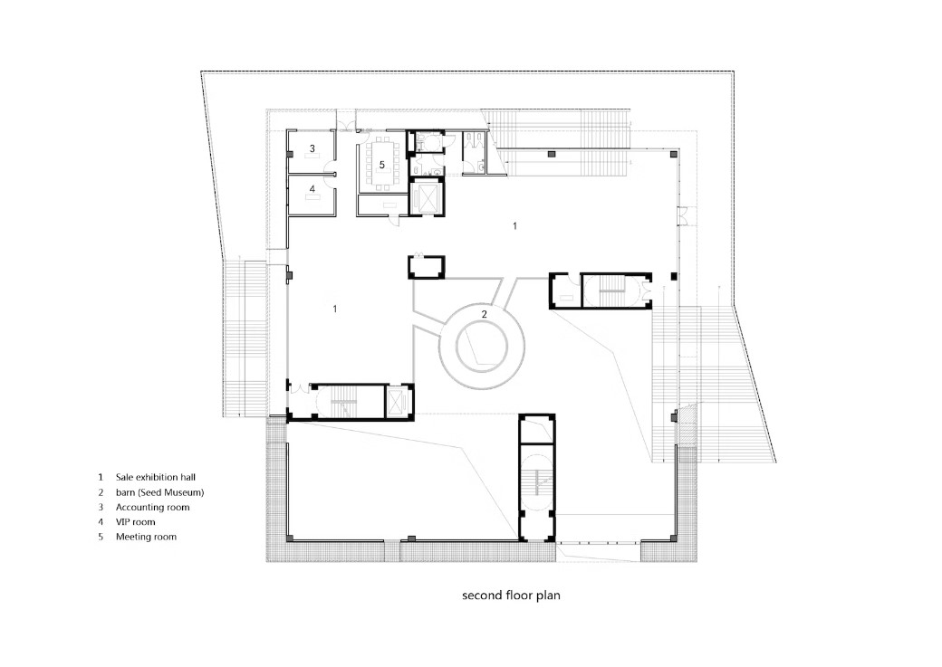
The architectural design of the agricultural exhibition hall is inspired by the barns of traditional Chinese agriculture. Its square shape with a central round silo echoes the legalist philosophy of "full granaries and orderly conduct", as well as the new era's emphasis on spiritual civilization.
The barn's footprint is maximized to create a skylight in the centre, providing natural ventilation and lighting.


The circular silo is a unique space with natural lighting and ventilation. As a seed Museum, it provides a place to display and communicate; The rotating open stairs connect the various functions in the vertical direction of the building. The visitors step up, just like stepping on a seed journey, and their desire for viewing and exploration is constantly stimulated.


The mortise and tenon structure of the silo dispels the divinity of the space with the colour and touch of old wood, making the barn warm and amiable.


The two sets of indoor and outdoor stairs provide a parallel viewing moving line that overlooks the pastoral scenery, the surrounding buildings, and the internal activities of the agricultural exhibition hall. The outer skin is made of UHPC material, which is low in porosity and has a warmth similar to jade. This material highlights the shape and lines of the building.


Haimen Agricultural Exhibition Hall Gallery










From a distance, it looks like it has sharp edges and corners, but upon closer inspection, you'll notice it's actually quite soft and fuzzy. The faint sense of permeability blurs the line between the building and its surroundings, creating a visual contrast with the glass curtain wall. This contrast vividly illustrates the relationship between enclosure and connection, closure and permeability.
References (1)
Popular Articles
Popular articles from the community
Louis Malle Cinema: A Limestone Cultural Landmark Revitalizing Community Life in Prayssac
Limestone cinema extension with public forecourt, blending heritage and modern design to create flexible cultural spaces and strengthen community interaction.
Atelier Macri Concept Store Interior Design by CASE-REAL
Atelier Macri store features a "ko" counter, walnut wood details, cork displays, blending retail, gallery, and seamless customer experiences.
Treehouse Apartment: A Warm Timber Interior Blending Craft, Play, and Contemporary Living
Warm timber apartment with integrated treehouse, combining natural materials, craftsmanship, and playful design to create a flexible, family-oriented living environment.
A Contemporary Take on Iranian Residential Architecture
A modern interior design in Mashhad that reinterprets brick, light, and spatial flow to create a warm, contemporary residential architecture.
Similar Reads
You might also enjoy these articles
Zhuxi Wonderland: Reimagining Traditional Chinese Gardens by Doarchi Architects
Zhuxi Wonderland by Doarchi Architects reinterprets traditional Yangzhou gardens, integrating courtyards, pavilions, and tea houses in modern cultural design.
Doble Soga House: A Contemporary Brick Residence Rooted in Landscape in Quito, Ecuador
Brick house in Quito integrating nature, flexible living spaces, exposed materials, and rooftop terrace, creating warm contemporary architecture for modern family life.
Al Gharra Mosque in Medina Redefining Contemporary Islamic Architecture
Minimalist Medina mosque using concrete, light, and landscape to reinterpret Islamic worship spaces through symbolic spiritual transitions and contemporary architecture.
Viczonecode Villa by DDconcept – Tropical Family Living in Ho Chi Minh City
Tropical family villa in Ho Chi Minh City featuring courtyards, skylights, natural ventilation, elevated flooring, and seamless indoor–outdoor living surrounded by greenery.
Explore Architecture Competitions
Discover active competitions in this discipline
The International Standard for Design Portfolios
The Global Benchmark for Architecture Dissertation Awards
The Global Benchmark for Graduation Excellence
Challenge to design an urban locus of culture and heritage
Comments (0)
Please login or sign up to add comments
No comments yet. Be the first to comment!