Historical Educational Architecture: The Sille Primary School by TEGET
The article describes Sille Primary School by TEGET, blending historical architecture with modern education in Turkey, honoring heritage while serving contemporary needs.
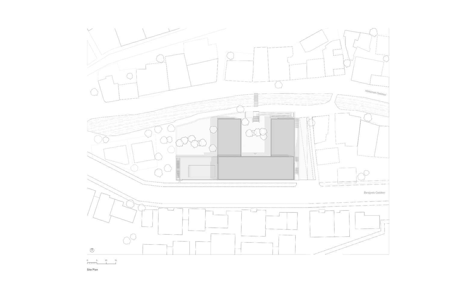
In the heart of Turkey lies a remarkable example of historical educational architecture, the Sille Primary School designed by TEGET. This project embodies the fusion of rich historical context with the needs of contemporary education, nestled in the village of Sille with a legacy dating back to the Neolithic era.




Preserving History in Modern Education
The Legacy of Sille
Sille's vibrant history, from its Roman roots to its diverse cultural tapestry in the late 1900s, sets the stage for the school's design. TEGET's approach honors the area's architectural and cultural heritage, once home to a bustling community with numerous churches and hans.




The Design Philosophy
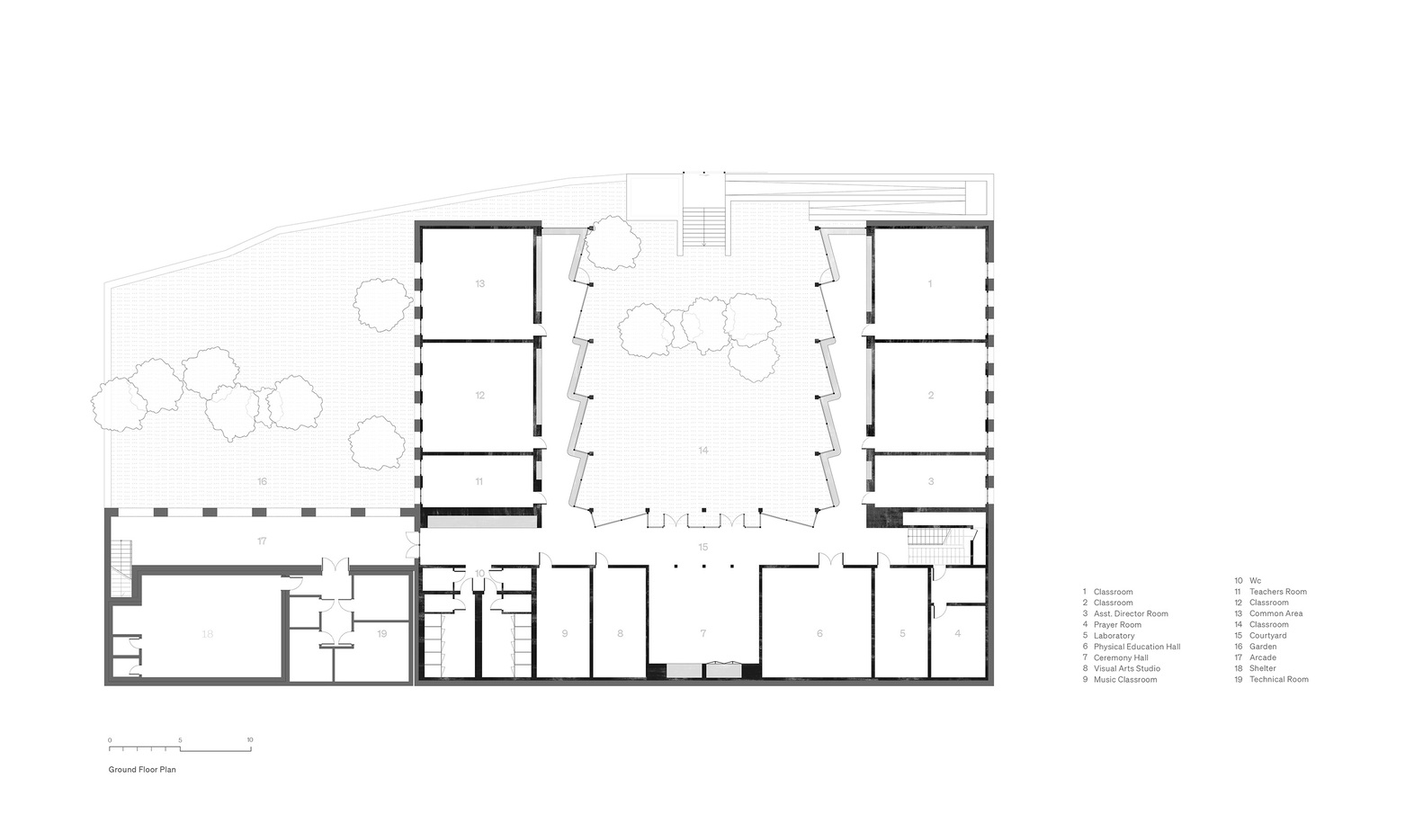
The Sille Primary School is an informal reconstruction of a former han, positioned on sloping land to minimize disturbance. Its U-shaped structure with a courtyard centers on creating a dialogue between the old and the new, integrating traditional stone and wood with modern educational facilities.




Architectural Features and Functionality
A Blend of Stone and Wood
The school's architecture contrasts sturdy stone walls with a flexible wooden framework, reflecting the traditional materials of the region while accommodating modern functions. Classrooms, offices, and multipurpose halls benefit from this harmonious blend, offering spaces that are both functional and steeped in history.





Creating Multifunctional Spaces
The design includes concealed closets and benches, transforming corridors into versatile areas for learning and interaction. Wood is used extensively, not just in the structure and cladding but also as furniture, adding warmth and adaptability to the interior spaces.


Bridging the Past with the Present
Dual Entrances and Public Access
With two entrances at different levels, the school effectively bridges the street and the stream, symbolically uniting two sides of the valley. This setup allows for varied uses, including educational, cultural, and artistic activities, highlighting the building's role in the community.






A Commitment to Heritage and Education
The Sille Primary School stands as a testament to the potential of historical educational architecture to preserve local heritage while fulfilling modern educational needs. Through its thoughtful design, the school serves as a bridge between past and present, offering a fully equipped educational facility within a setting rich in history.





All photographs are work of Egemen Karakaya
Popular Articles
Popular articles from the community
On the Brooks House by Monsoon Collective – A Contemporary Kerala Home Rooted in Tradition
Kerala home blending tradition and modernity with water-inspired design, brick architecture, courtyard planning, and sustainable rainwater harvesting strategies.
Flamboyant House by Juliana Camargo + Prumo Projetos
Modern Brazilian house integrating existing tree, pool, and volumes with glass, wood, and transitional spaces blending interior, exterior, and landscape seamlessly.
Atelier Macri Concept Store Interior Design by CASE-REAL
Atelier Macri store features a "ko" counter, walnut wood details, cork displays, blending retail, gallery, and seamless customer experiences.
A Contemporary Take on Iranian Residential Architecture
A modern interior design in Mashhad that reinterprets brick, light, and spatial flow to create a warm, contemporary residential architecture.
Similar Reads
You might also enjoy these articles
The Ken Roberts Memorial Delineation Competition (Krob)
As the most senior architectural drawing competition currently in operation anywhere in the world, it draws hundreds of entries each year, awarding the very best submissions in a series of medium-based categories.
Waterfront Redevelopment and Urban Revitalization in Mumbai: Forging a New Dawn for Darukhana
A transformative waterfront redevelopment project reimagining Darukhana’s shipbreaking heritage into an inclusive urban future.
OUT-OF-MAP: A Call for Postcards on Feminist Narratives of Public Space
Rhizoma Design and Research Lab invites artists, designers, architects, researchers, and students to reflect on how feminist perspectives can reshape public space. Selected works will be exhibited in Barcelona, October 2026. Submissions open until 15 April 2026.
Documentation Work on Buddhist Wooden Temple
Architectural syncretism and cultural hybridity: A comparative study of the Buddhist temples in Chattogram Hill tracks
Explore Architecture Competitions
Discover active competitions in this discipline
The International Standard for Design Portfolios
The Global Benchmark for Architecture Dissertation Awards
The Global Benchmark for Graduation Excellence
Challenge to reimagine the Iron Throne
Comments (0)
Please login or sign up to add comments
No comments yet. Be the first to comment!